楼盘详情
购房群
买房如何避坑,来看看他们怎么说?
立即报名
基本信息
了解更多详细信息
楼盘名称
槐缘里
建筑类型
板楼,高层,多层
开发商
保定市十方商贸城开发有限公司
开盘时间
待定
开盘提醒
交房时间
预计2025年10月
售楼电话
4006168802-450735
楼盘地址
莲池 西下关街 208号
装修状况
毛坯
装修标准
暂无数据
物业类型
普通住宅
物业费
暂无数据
物业公司
暂无数据
产权年限
70年
销售信息
交通信息
轨道交通
暂无数据
公交路线
1、2、7、4、12、21、66、19、103、105、107、K1路等
交通方式
暂无数据
规划信息
了解更多周边信息
占地面积
7653平方米
建筑面积
32594平方米
容积率
2.7
绿化率
35%
停车位
车位配比:1:1.2
楼栋总数
2
总户数
暂无数据
周边配套
医疗配套:
保定市第一中医院、二五二医院、河北大学附属医院
教育配套:
幼儿园:保定体育幼儿园、童星幼儿园、剑桥双语幼儿园、瑞贝尔幼儿园
小学:新华路小学、联盟西路小学、保师附校
初中:保定十七中、保定二中分校、育德中学
高中:田家炳中学、一中实验班
休闲配套:保定市体育场、动物园、东风公园
商业配套:银座商城、十方惠友超市,华创购物广场,保定百货大楼,总督署商圈
内部配套
1500平米的中心生态园,针对不同年龄段设有儿童区,健身区,运动区,休闲区,阳光大草坪。
供暖方式
暂无数据
楼盘简介
槐缘里项目整体规划总占地11.48亩,总建面32594. 28平方米,总共规划两栋楼,1号楼为6层品质洋房一梯两户电梯对开门私家专享电梯厅,层高3. 1米,一层户型赠送下跃,2号楼为22层高层,两梯四户中户连廊通透,相当于一梯两户,居住舒适度更高,层高2.9米,绿化率35%,容积率2.7,致力于打造地标性品质社区。
购房群
买房如何避坑,来看看他们怎么说?
3室2厅2卫-A户型
建面155m²
待定
在售
2室2厅1卫-C户型
建面86m²
待定
在售
2室2厅1卫-E户型
建面76m²
待定
在售
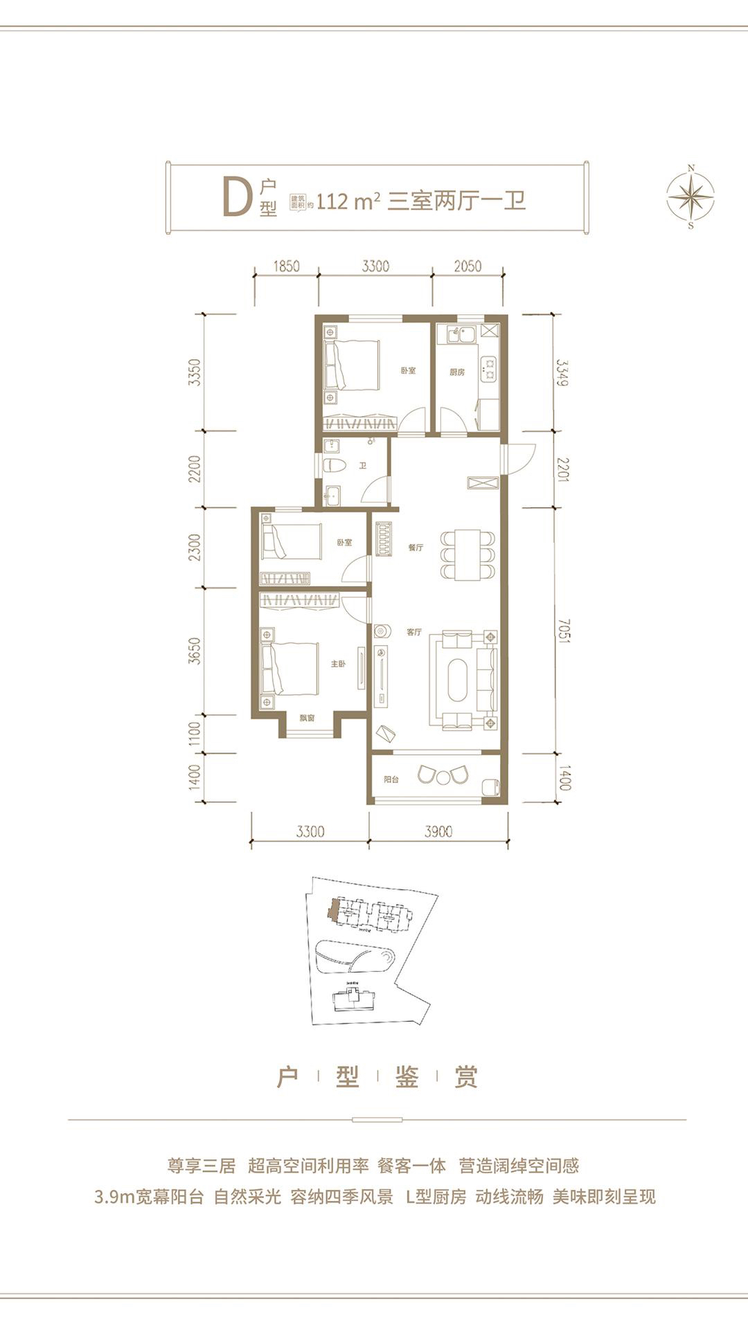
3室2厅1卫-D户型
建面112m²
待定
在售
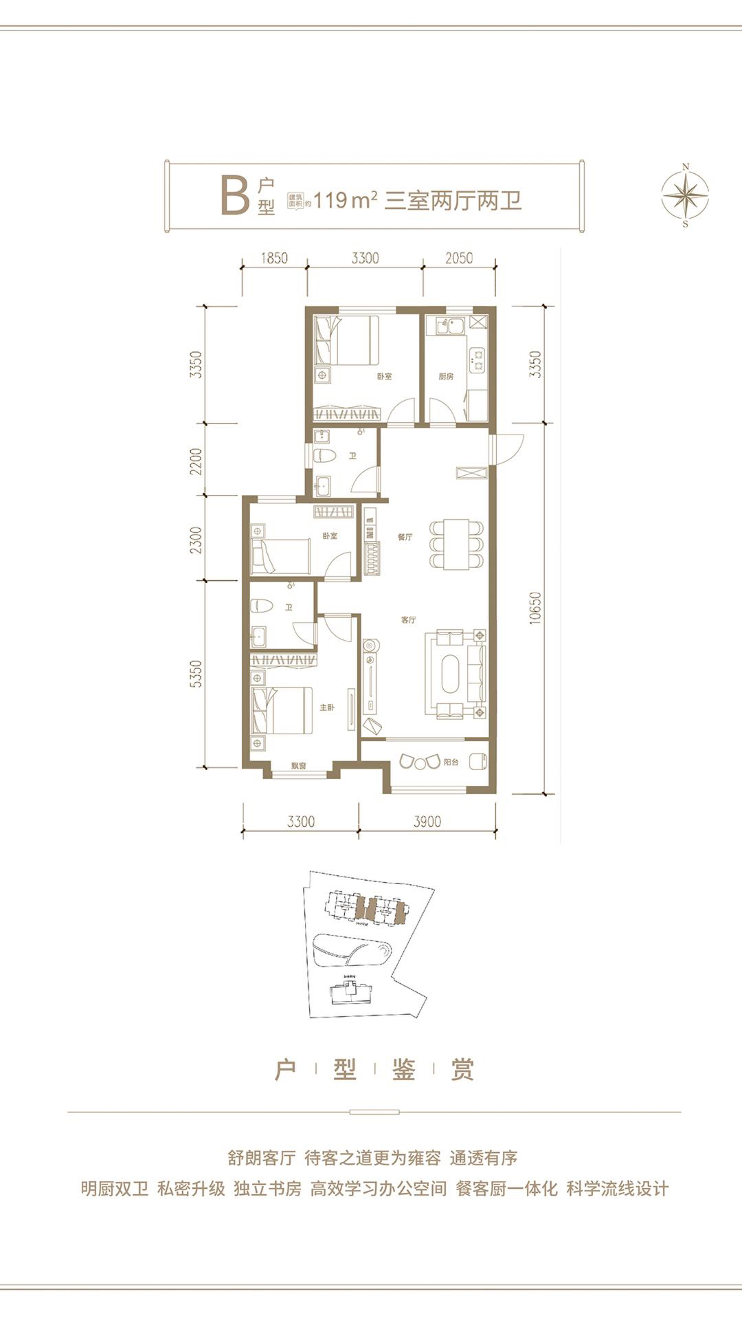
3室2厅2卫-B户型
建面119m²
待定
在售
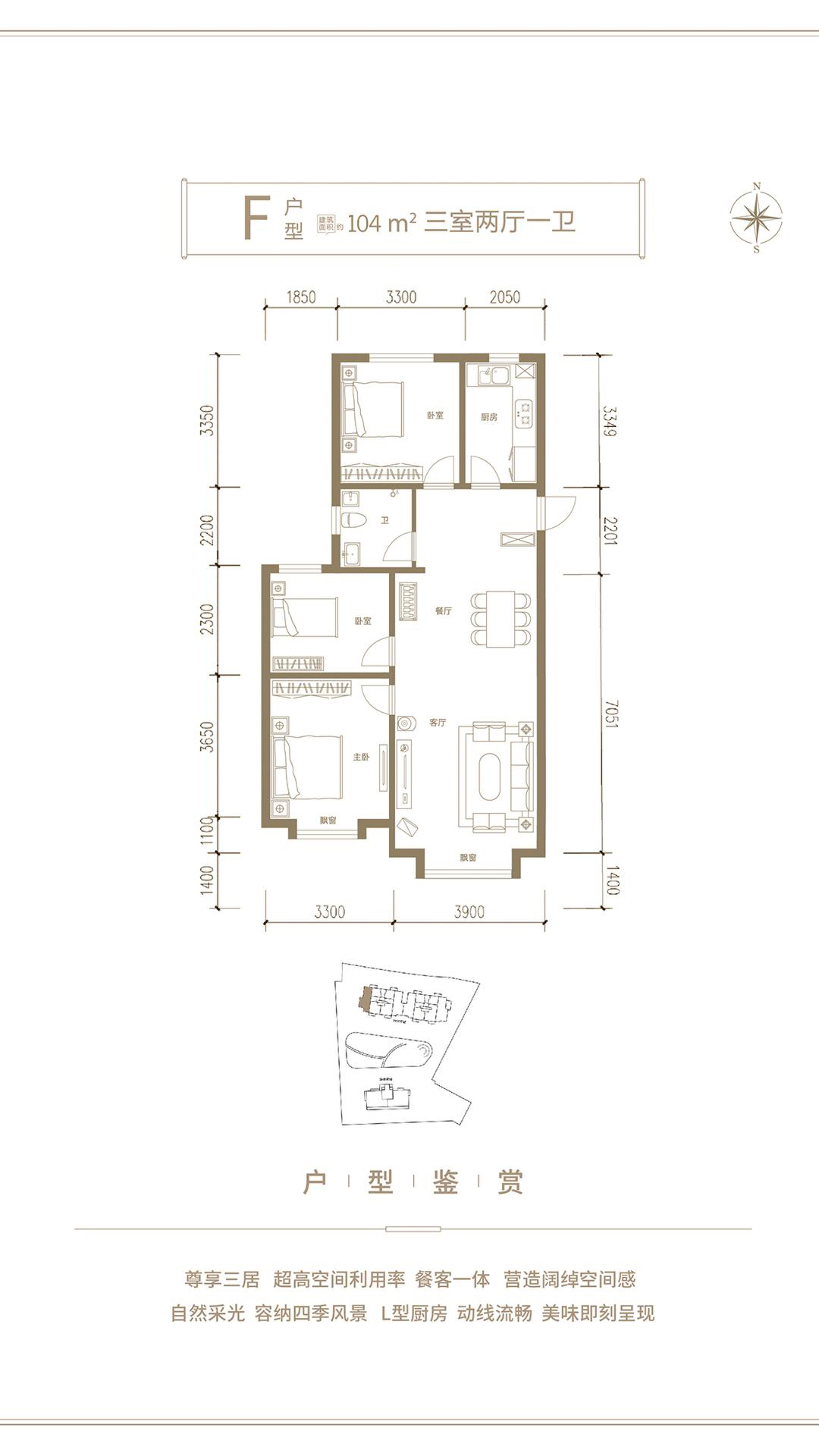
3室2厅1卫-F户型
建面104m²
待定
在售
效果图(1)

交通图(1)





