楼盘详情
购房群
买房如何避坑,来看看他们怎么说?
立即报名
基本信息
了解更多详细信息
楼盘名称
邑都上城
建筑类型
小高层,板楼
开发商
大邑银都房地产开发有限公司
开盘时间
2010年02月06日
开盘提醒
交房时间
2011年03月31日
售楼电话
4006168802-171884
楼盘地址
大邑 晋原镇大邑大道458号(大邑中学对面)
装修状况
毛坯
装修标准
暂无数据
物业类型
普通住宅
物业费
暂无数据
物业公司
四川聚仁物业
产权年限
70年
销售信息
交通信息
轨道交通
暂无数据
公交路线
大邑2路、11路公交车,邑都上城站下。
交通方式
三环以外
规划信息
了解更多周边信息
占地面积
110000平方米
建筑面积
173817平方米
容积率
1.48
绿化率
46%
停车位
746个
楼栋总数
暂无数据
总户数
暂无数据
周边配套
小区内部配套:会所、银都幼稚园、银都中学、SUPER超市、网球场、健身中心、儿童戏水区、商业街等
内部配套
暂无数据
供暖方式
暂无数据
楼盘简介
邑都上城规划面积17万平米,配有9000㎡的中轴水景、5万㎡林荫步道绿树小品.
邑都上城4066㎡三层VIP会所, CAFé吧、SPA美疗、兰花超市、MINI酒店等。邑都上城距离成都40分钟车程,内部配套有银都幼稚园、银都中学、SUPER超市、网球场、健身中心、儿童戏水区、商业街等。
邑都上城建筑高度从4层到7层,楼间距从18米到70米,容积率为1.48。
客厅和主卧室采用双层中空玻璃,厚度达到8mm隔音隔热阻风效果高于普通玻璃40%,三层退台式结构。
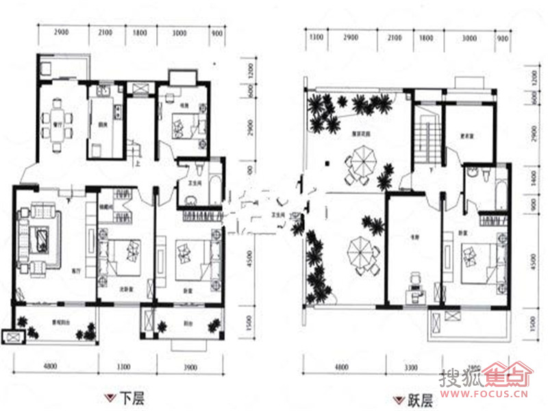
人行车流分别规划三个出入大门,面宽25米。17种经典户型,面积区间94-260平米,全部南北朝向,明厨明卫。
纯板式结构,双面景观,观景阳台最多达4个,入户错层结构,客厅下沉。
L型开放式用餐区,配生活阳台。客厅开间4.8米,进深5.4米。
卧室凸窗宽80mm,叠景跃层,大露台私花园近60㎡,完全免费奉送。
小区内还有镜湖9000㎡水系,叠溪堤300余米,休憩亭、幼趣园、
500余米下沉式设计的晨闲广场、春晓廊、怡景园、蔓藤兰园、镜湖广场等
效果图(9)









交通图(1)












