楼盘详情
户型信息
4室2厅2卫-B3(封阳台)
待售 主卧带卫 双阳台
待定 建面162.38m²
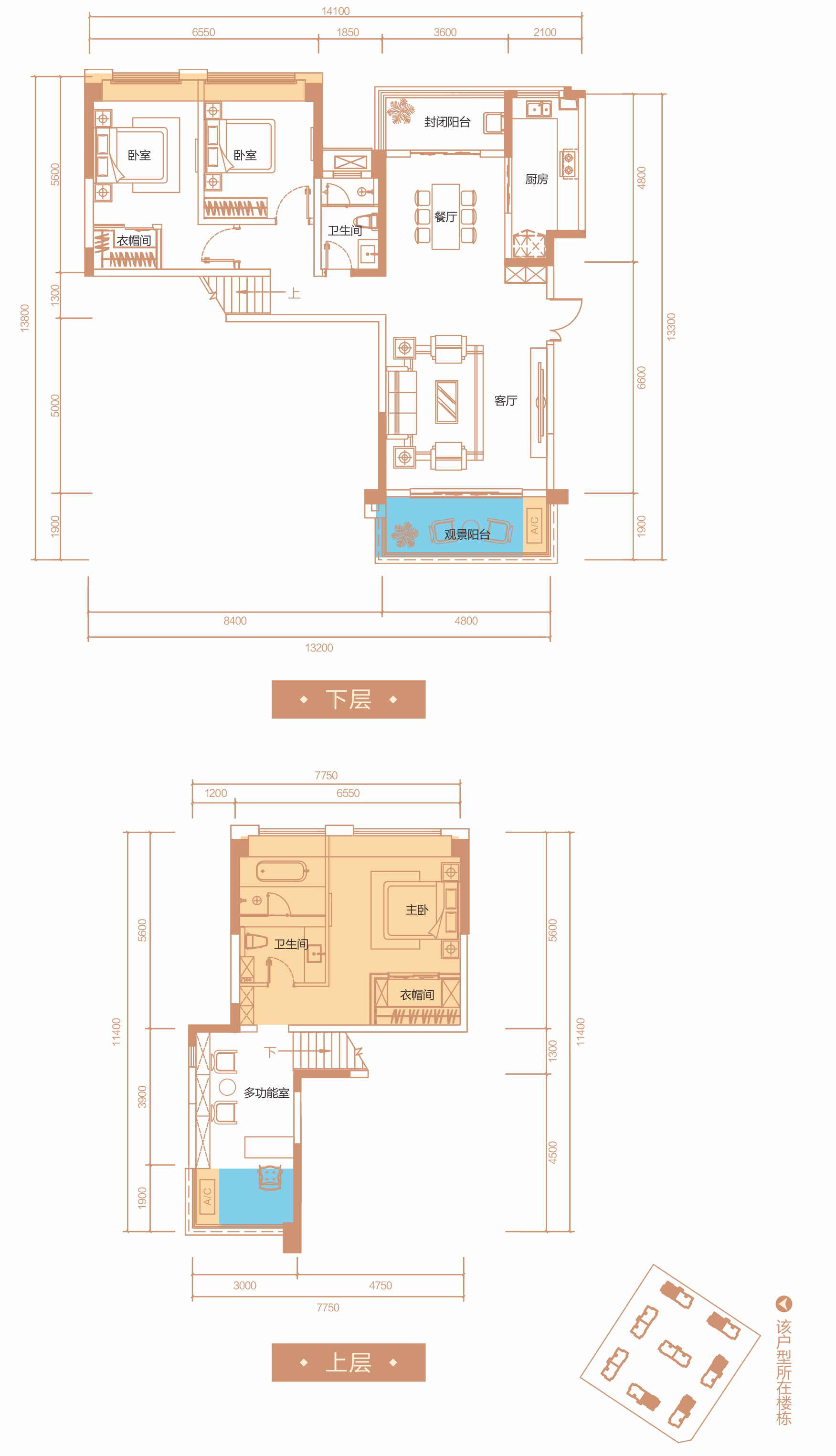
4室2厅2卫-B4(封阳台)
待售 主卧带卫
待定 建面162.15m²
4室2厅2卫-B4(不封阳台)
待售 主卧带卫
待定 建面156.28m²
4室2厅2卫-B3(不封阳台)
待售 干湿分离 双阳台
待定 建面156.52m²
咨询户型优惠
购房群
买房如何避坑,来看看他们怎么说?
立即报名
基本信息
了解更多详细信息
楼盘名称
合能枫丹西悦
建筑类型
小高层,高层,塔楼
开发商
合能地产有限公司
开盘时间
2018年12月13日
开盘提醒
交房时间
2020年06月30日
售楼电话
4006168802-264880
楼盘地址
温江 春江路成都农林科学院旁
装修状况
毛坯
装修标准
暂无数据
物业类型
普通住宅,花园洋房
物业费
2.65元/平方米.月
物业公司
成都合能物业管理有限公司
产权年限
70年
交通信息
轨道交通
暂无数据
公交路线
大乘院站: 温江104路、温江104路、温江107路
四川农大站: 温江104路、温江107路
天乡路一段中站: 904路
长石村站: 904路
交通方式
进入成温高架路,行驶3.2公里靠右前方行驶,进入苏坡西路,行驶1.7公里请直行,进入日月大道一段,行驶1.5公里请直行,进入日月大道二段,行驶2.5公里靠左前方行驶,进入成温邛高速,行驶7.1公里靠右前方行驶,从成温邛高速到农科路,行驶1.1公里请直行,进入农科路,行驶210米请直行,进入春江路,行驶870米。
规划信息
了解更多周边信息
占地面积
46666.67平方米
建筑面积
67833.16平方米
容积率
2.5
绿化率
32%
停车位
车位数:596
楼栋总数
14
总户数
291
周边配套
商业配套:人人乐、永辉超市、伊藤洋华堂、珠江购物广场 、星光三越、国色天香商业街
医疗配套:温江第五人民医院、温江区人民医院、华西医院温江分院、八一康复中心等
教育配套:公平实验学校、汇文国际学校、四川农业大学
内部配套
底商
供暖方式
暂无数据
楼盘简介
枫丹西悦位于学府路与春江路交汇处。项目总占地70亩,共分为2期,一期总占地29亩,总建筑面积67833.16㎡,共294户,其中景观用地面积约16622㎡,整体容积率为3.0,项目容积率仅2.5。并且在地块整体成片的前提下,绿地率达到37%。本案也是此区域舒居全跃层和洋房项目。
购房群
买房如何避坑,来看看他们怎么说?
4室2厅2卫-B3(封阳台)
建面162.38m²
待定
待售 主卧带卫 双阳台
4室2厅2卫-B4(封阳台)
建面162.15m²
待定
待售 主卧带卫
4室2厅2卫-B4(不封阳台)
建面156.28m²
待定
待售 主卧带卫
4室2厅2卫-B3(不封阳台)
建面156.52m²
待定
待售 干湿分离 双阳台
效果图(4)




交通图(2)








