外企高管的极简主义家,有颜任性

最新设计案例40

2017-07-07 14:16:21

购房群

买房如何避坑,加入购房群,看看他们怎么说

立即进群

  在上海房价像着了火一样猛窜的时候,燕儿在最关键的时刻做出了置换新房的决定。 拿66㎡的排名前列套房子置换了现在这套140㎡大房,设计师依然找的是排名前列套房的设计师,可见找对一个设计师以后有再多次装修也都不用怕了。

  

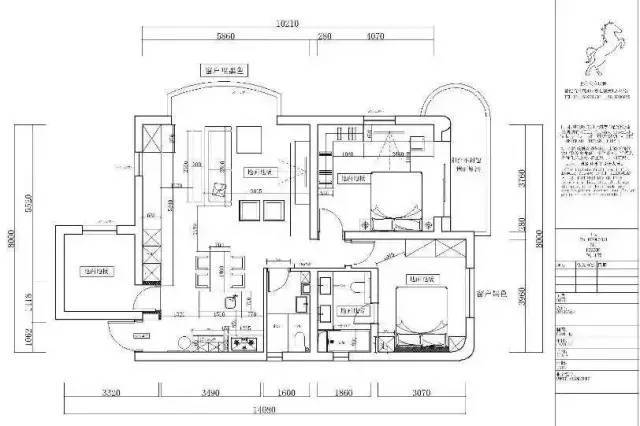
  △新买的这套房子是位于长乐路的一套老公寓,规划不是特别复杂,因为很多墙体是不能动的,受到很多限制也不能大改格局,因此设计师在设计时就尽可能地依照房型来进行设计和配色,颜色上选择了浅色系,家具也是简单的风格。作为上班族的燕儿夫妇就是希望做成极简偏现代的北欧风格,好接待客人也好整理打扫。

  

  △少有的改动就是把原来的厨卫间调换了一下,增加空间大小与采光,减少空间中的阻隔,一体化的格局更能显示出140㎡的大来。

  

  △接手排名前列件事情就是拆,拆一切不满意的地方,拆除一切不属于自己的痕迹。客厅地板太旧,拆!门框老土,拆!厨卫瓷砖,拆!拆!拆!燕儿势必要将这个原本的老公寓完完全全变成自己的家。

  

  △拆旧的排名前列步先从地暖开始,每到冬天就会有“北方有地暖,南方有京浙沪包邮”的经典语句出现,南方的天气相对比方而言暖和,但是到了南方的湿冷只有身在南方的人民才能体会到,上海的很多业主在装修时也都开始装起了地暖。地暖本来看的是威能的,但是业主去了解了一下,威能的性价比不高,所以最后还是选择了林内。

  

  

  △除了地暖,同时安装了中央空调,空调品牌则是选择了口碑不错的大金。第二套房子本就是作为改善型住房的,一切舒适的设备都尽可能装上去。

  

  △房子是上世纪法租界的一套老房子,所以结构上比较受限制。圆弧形的阳台窗户不能开,那么通风的问题怎么处理呢,这个时候利用新风系统来解决了。

  

  △为了营造北欧简洁素雅的格调,选了大块原色自然的德高木纹地板,最后效果甚是满意。

  

  

  △小户型和极简北欧中收纳显得尤为重要,家里用了大量定制家具增加收纳空间。开始装家具的时候,上海一直大雨,工人都还按照工期完成了安装,衣服淋湿了依旧赤膊上阵,工人师傅的敬业精神很让业主感动。

  

  △燕儿是外企高管,喜欢简单明了的事物,所以风格定义为极简主义,在进行测量时候,整体方案框架已基本形成,根据业主习惯为主之外,更大程度上追求空间感,客餐厅连成一个整体,整个公共区域宽敞明亮,加之木饰面的温暖点缀,整个空间显得大气适当。

  

  △业主家的家具都是在装修公司自有品牌冬麦工厂订做的,没有成品家具。包括沙发,茶几、电视柜、餐桌等,所有的柜体则是在韵材家具量身定做的固定柜体,这家家具厂是跟设计师长期合作的一家。家具定制下来一共是6万,软装家具算下来是四万左右。

  

  △原本进门右侧是卫浴空间,厨房靠里侧,设计师建议把厨房和卫浴互换位置,这样厨房开放与餐厅一体,同时与客厅形成一个整体开敞的空间,宽敞了许多。

  尽管结构得到改善,但听到厨卫调换,燕儿夫妇刚开始还是不太能接受,担心这样改之后会有下水问题,不过最后设计师还是说服了他们,因为两间房的距离很近,所以用同层排水的技术将水排到原来的管子中去就不会有问题。

  

  

  △之前想在餐厅那做一个中岛,想着现在非常流行,能提高逼格不少,但是实际操作下来整体感觉会有点影响,业主还是比较喜欢实木的感觉,最后还是选择了实木餐桌。这套餐桌椅不属于特别的样式,但是和整体感觉特别搭。

  

  △储物空间非常多,这一点业主非常满意,冰箱和各种小家电都被隐藏了,客厅变得好宽敞,140㎡的房子不算太大,但看起来真的挺大。

  

  △浴室柜是订做的,业主说非常感谢施工队,整个施工过程井然有序,没有出过什么问题,工人们手艺不错脾气也很好,业主在装修过程中也没有很累,有靠谱设计师和施工队感觉非常棒。

  

  △卫浴间做的比较清爽,而且因为有交换厨房的原因,所有没有做什么花样,怕之后有下水的问题方便处理。卫浴间由于比较潮湿安装了地砖,是一个叫巴黎世家的小牌子,但是质量还挺好。

  

  

  △由于预算有限,房子刚到手的时候,采光不是很好,所以设计师把房子设计成白色基调,让屋子亮了不少。

  

  △主卧的阳台是开放的,也是因为存在采光不足的问题,在潮湿的上海,采光真的很重要。

  

  △这是宝宝的房间,是不是没有儿童房的感觉,由于业主朋友很多这间房是想着平时可以招待朋友做侧卧用的。

  

  △两个房间都自带独立卫生间,晚上无论是洗漱还是上卫生间都会方便很多,也不用担心安全问题。洁具选择的是高仪的套件,业主看了好几家,ToTo,法恩莎, 科勒,但是最后还是决定高仪的,水箱则确定吉博力。

全部

相关资讯

报名成功
稍后会有专业的置业顾问联系您
返回楼盘

频道导航

返回首页

看房小程序

APP下载

电话拨通后,请您手动拨打分机号

确定拨打电话

电话号码:

分机号:(可能需要拨分机号)