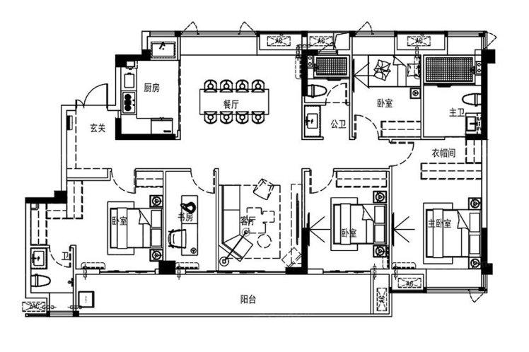
楼盘详情
购房群
买房如何避坑,来看看他们怎么说?
立即报名
基本信息
了解更多详细信息
楼盘名称
建总江南尚璟
建筑类型
小高层
开发商
暂无数据
开盘时间
2024年06月29日
开盘提醒
交房时间
2025年02月28日
售楼电话
4006168802-452585
楼盘地址
仓山 则徐大道白湖亭万达西侧
装修状况
暂无数据
装修标准
暂无数据
物业类型
普通住宅
物业费
3.98元/平方米.月
物业公司
怡家园(厦门)物业管理有限公司
产权年限
70年
销售信息
销售状态
在售
售楼地址
福州市仓山区则徐大道白湖亭万达西侧
预售许可证
- 2024榕房许字第 0052号 详情发证时间 2024-06-28绑定楼栋16#、3#
- (2024)榕房许字第0039号 详情发证时间 2024-05-11绑定楼栋11#、15#
- <2024>榕房许字第 0030号 详情发证时间 2024-04-19绑定楼栋1#
- 2024榕房许字第 0013 号 详情发证时间 2024-02-06绑定楼栋2#
- 2024榕房许字第 0012 号 详情发证时间 2024-02-04绑定楼栋13#
- 2023榕房许字第 0191 号 详情发证时间 2023-12-07绑定楼栋12#、6#
- 20230153 详情发证时间 2023-09-18绑定楼栋5#
- FZ许20230153 详情发证时间 2023-09-18绑定楼栋5#
- <2023>榕房许字第0133号 详情发证时间 2023-08-04绑定楼栋10#、7#
- FZ许20230133 详情发证时间 2023-08-04绑定楼栋10#、7#
- 2023FZ许0096 详情发证时间 2023-06-01绑定楼栋8#、9#
- FZ许20230096 详情发证时间 2023-06-01绑定楼栋8#、9#
交通信息
轨道交通
暂无数据
公交路线
暂无数据
交通方式
暂无数据
规划信息
了解更多周边信息
占地面积
39294平方米
建筑面积
107000平方米
容积率
1.99
绿化率
30%
停车位
922 (地上:44 个 地下:878个)
楼栋总数
14
总户数
546
周边配套
暂无数据
内部配套
暂无数据
供暖方式
民水,民电,无供暖
楼盘简介
暂无数据
实景图(1)

施工进度图(5)












