3室2厅2卫-B户型
待售 南北通透 主卧朝南 干湿分离
待定 建面114.27m²
3室2厅2卫-J户型
待售 南北通透 主卧带卫 干湿分离
待定 建面107.76m²
3室2厅1卫-G户型
待售 南北通透 主卧朝南 干湿分离
待定 建面93.87m²
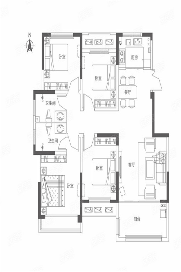
4室2厅2卫-A户型
待售 南北通透 主卧朝南 餐客分离 主卧带卫
待定 建面122.87m²
3室2厅2卫-I户型
待售 南北通透 带衣帽间 主卧带卫
待定 建面115.87m²
购房群
买房如何避坑,来看看他们怎么说?
3室2厅2卫-B户型
建面114.27m²
待定
待售 南北通透 主卧朝南 干湿分离
3室2厅2卫-J户型
建面107.76m²
待定
待售 南北通透 主卧带卫 干湿分离
3室2厅1卫-G户型
建面93.87m²
待定
待售 南北通透 主卧朝南 干湿分离
4室2厅2卫-A户型
建面122.87m²
待定
待售 南北通透 主卧朝南 餐客分离 主卧带卫
3室2厅2卫-I户型
建面115.87m²
待定
待售 南北通透 带衣帽间 主卧带卫








