本次全屋案例比较特别,业主是一名企业家,在内蒙古自治区呼和浩特居住。
由于家庭条件改善和儿子长大,原来的卧室空间狭小,已经不能满足15岁儿子的日常生活,所以一家子决定买房重新装修,改善家人的居住环境。

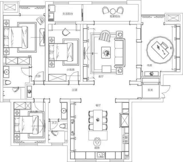
项目介绍
地址:内蒙古自治区呼和浩特舜和慢城
户型:四室两厅两卫197m²
风格:经典美式
产品:盖茨比系列(经典茶色)

户型分析
采光: 各空间采光都比较充足
动线: 动静空间相隔比较独立
通风: 户型整体通风良好
功能性: 超级大套卧,配备独立卫浴。 宽阔客厅,有利于家庭关系融洽。
全屋设计方案

玄关
玄关处鞋柜设计具备放鞋、临时放包、寄存小物品等实用性贴心功能。柜内结构的分割,满足不同的需求,例如常用鞋区、长靴区、短靴区的分类,常用区与换季区划分使主人使用时更便利。

客厅
客厅黑色的沙发搭配豹纹及金棕色皮质抱枕增加了空间的立体感,英式的格调与美式的粗犷搭配,彰显格调的同时,不失去家庭的温馨。

电视柜
客厅柜装饰区摆放摆件或收纳较具有珍贵回忆的物品,常用区方便拿取可收纳书籍及家庭娱乐物品,下方收纳区收纳针线药品等物品,设置柜门让空间干净整洁,不因物件太多而凌乱。

过道柜
沙发后是书房空间,客厅与书房以客厅书柜为隔断,两柜呈对称设计,上柜开放,可收纳展示书籍与工艺品,下柜封闭,收纳客厅杂物。

书房
书柜设计以对称的方式,有序排列,运用上下柜的分割形式。
上柜玻璃封闭,通透明了又封闭防尘,摆放常用书籍及装饰品。
下柜对开门设计,用于厚重收纳,整壁书柜设计提升空间的品质,体现主人的生活方式及品质。

餐厅
餐厅与客厅设计风格如出一辙,无夸张繁复造型,简单天花造型配上精致线条,突出材质的运用,整体色调的把握及精心搭配的软装陈设,高雅质感给人一种沉稳踏实的舒适感受,传达低调奢华的品质感。

餐边柜
酒柜充分体现实用与装饰结合的美学效果。
下柜设置对开门为日常收纳,漫反射灯带增加装饰性,红酒放置区为开敞式格子收纳,不仅美观且体现主人的品味。
凹凸位的设计及石材墙面,壁炉的运用,使柜子有错落的层次感,为提升空间品质感发挥重要作用。

主卧
主卧棕色皮床搭配蓝色皮纹抱枕及橙色抱枕的点缀,圆形金属灯具让主卧更加高贵精美。沉稳格调中透露鲜活的气息。
主卧衣柜设计为整框门,柜内结构的分割,由于夫妻衣物较多,整壁挂衣区也相对多点,可增加抽屉式收纳盒,收纳不显凌乱,拿取也便利。

老人房
老人房主要是为让家长长辈临时居住而设计,与主卧一样,老人房运用皮床,但该绿色的颜色更显活力与悦目,棉麻质地的软装凸显居者的身份,卧室以茶色的线条包裹,大气沉稳。

衣柜
老人房衣柜设计考虑到老人折叠的衣物比较多,所以挂衣服和放折叠衣物的比例就一半一半,上衣外套大衣为挂放,可选择抽屉式收纳盒来收纳小物件等。

青年房
青年房设计给人舒适、时尚的感觉,浅灰与藏蓝奠定了整个空间的和谐基调,格纹墙纸让整个墙面又带有些许的复古感,不再一成不变的简单乏味,让人在自然色调与视觉呈现中相互交融。

衣柜
青年房衣柜考虑到本案为高中生,基本根据成年人尺寸设计,主柜功能分布以多功能为主,书包、衣物等用品同时收纳,实现一柜多用。

书桌
青年房学习区设计在窗边,依窗设计书柜与书桌一体化,疲累时可开窗看景,两侧是收纳立柜,可收纳居者的学习书籍与用品,很是方便。