苏州园区建屋新棠玥售楼处欢迎您-建屋新棠玥楼盘详情-户型配套-最新价格-最新资讯-售楼处位置

淮南楼市观察

2025-07-25 09:17:45

购房群

买房如何避坑,加入购房群,看看他们怎么说

立即进群

苏州园区建屋新棠玥售楼处电话:400-9966-224✔✔【预约热线】建屋新棠玥售楼处营销中心:400-9966-224建屋新棠玥售楼处电话/地址☎:4009966224(开发商热线)如有问题欢迎来电咨询,专业一对一热情服务,让您用专业眼光去买房。园区奥体南上新!案名曝光——建屋·新棠玥!项目城市展厅明日公开!

斜港置业86号地块项目自拿地以来就颇受关注,目前已正式公开案名——建屋新棠玥,预计明天公开城市展厅。

苏州园区建屋新棠玥售楼处电话:400-9966-224✔✔【预约热线】建屋新棠玥售楼处营销中心:400-9966-224建屋新棠玥售楼处电话/地址☎:4009966224(开发商热线)

建屋·新棠玥,即苏地2023-WG-86号地块项目,位于工业园区星塘街西、独墅湖大道北,在2023年11月29日由斜港置业以底价150039万元竞得,成交楼面价为22000元/㎡。

项目占地面积为40117.34㎡,建筑面积为106364.42㎡,容积率为1.7。

项目拟建11幢13-17F住宅,其中1幢13F小高层、1幢14F小高层、2幢16F小高层、7幢17F小高层。

建屋·新棠玥外立面采用浅灰色+中灰色+银白色铝板,搭配米白色真石漆+绿奢石材等材料,打造现代化产品。

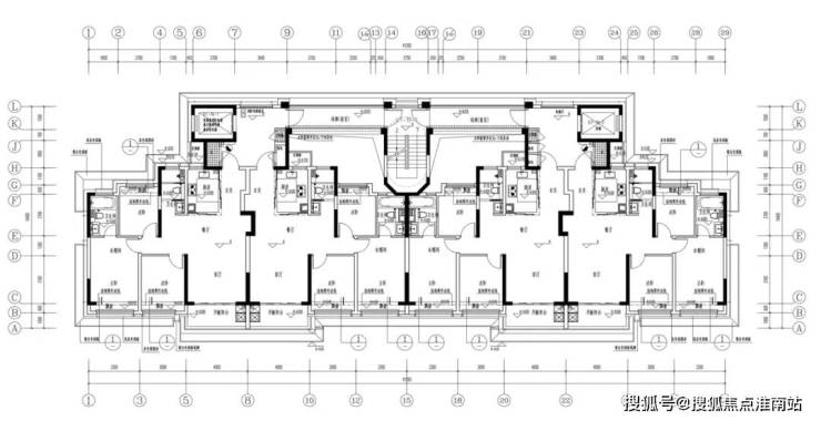
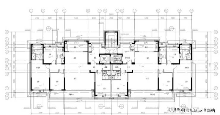
项目公示了1#、6#、10#标准层平面示意图。

苏州园区建屋新棠玥售楼处电话:400-9966-224✔✔【预约热线】建屋新棠玥售楼处营销中心:400-9966-224建屋新棠玥售楼处电话/地址☎:4009966224(开发商热线)

1#为17F小高层,2梯2户,户型建面约172㎡,4房2厅3卫设计,独立入户玄关,4开间朝南,客厅开间约5.4米连接阳台,主卧套房设计开间约3.6米。

苏州园区建屋新棠玥售楼处电话:400-9966-224✔✔【预约热线】建屋新棠玥售楼处营销中心:400-9966-224建屋新棠玥售楼处电话/地址☎:4009966224(开发商热线)

6#为16F小高层,2梯2户,户型建面约215㎡,4房2厅3卫设计,4开间朝南,客厅为大横厅,开间约6.9米,南向双套房,主卧开间约4.2米,套房设计含独立卫生间。

10#为14F小高层,2梯4户,3房2厅3卫设计,3开间朝南,客厅为方厅,开间约4米,主卧为套房设计,有独立卫生间,开间约3.3米。

根据地块要求,项目为全装修住宅,住宅装修标准不低于2000元/㎡且不高于5000元/㎡。

苏州园区建屋新棠玥售楼处电话:400-9966-224✔✔【预约热线】建屋新棠玥售楼处营销中心:400-9966-224建屋新棠玥售楼处电话/地址☎:4009966224(开发商热线)

建屋·新棠玥位于斜塘板块,临近独墅湖板块,周边配套比较成熟。

交通方面,项目西面临近地铁8号线,东面靠近地铁6号线,公共交通出行较为便利。自驾的话,项目南面就是独墅湖大道,往西连接南环和东环,可快速抵达市区。

商业方面,项目周边有翰林邻里中心、文星广场、文萃广场、莲花商业街等商业体,满足日常饮食购物需求。

教育方面,莲花学校、翰林幼儿园、文景实验学校、西交利物浦等优质教育资源环绕项目四周,满足各学龄上学需求。

效果示意图,非交付标准)

大师修为 |匠筑传世美学

巨匠携手,联袂执笔,以国际前沿美学理念,演绎具备时代精神的美学场域,创见苏州新人文作品,致敬时代的精英人物。

(效果示意图,非交付标准)

建筑设计 宋照青

Lacime Architects日清设计创始人

代表作品:上海新天地/上海中星美华村/华东师范大学丽娃河畔书吧

*宋照青大师会所设计手稿

巨匠联袂执笔 共绘枕河私屿

景观设计| A&N尚源景观

精装设计| Yan Design大研设计

泛光设计| bpi照明设计

玥系开篇|建屋·新棠玥

枕河而居,时新境进,溯源苏式人居之源,承续沧浪之六境,以土地文脉为天赋,从归家仪式、建筑立面、景观设计、奢美空间、服务营造等高阶人居需求,重构人居新境,演绎园区人居的新一页。

繁华静处,心有私屿。建屋·新棠玥,以新质人居为要求与前瞻,描绘人与城市共创的时代符号,赋新园区时代人居新意。迭写时代的园意与城市的生生不息。

(效果示意图,非交付标准)

苏州园区建屋新棠玥售楼处电话:400-9966-224✔✔【预约热线】建屋新棠玥售楼处营销中心:400-9966-224建屋新棠玥售楼处电话/地址☎:4009966224(开发商热线)如有问题欢迎来电咨询,专业一对一热情服务,让您用专业眼光去买房。

全部

相关资讯

报名成功
稍后会有专业的置业顾问联系您
返回楼盘

频道导航

返回首页

看房小程序

APP下载

电话拨通后,请您手动拨打分机号

确定拨打电话

电话号码:

分机号:(可能需要拨分机号)