古北悦公馆售楼处电话:400-993-9964(官方售楼处电话)
古北悦公馆售楼处电话:400-9939-964(售楼处最新电话)
古北悦公馆官方电话:400-993-9964✔(官方售楼处预约看房热线)
(古北悦公馆官方预约看房热线)案场预约制 看房需提前来电预约登记,请务必致电4009939964与销售确认时间,仅预约客户可进入销售现场,避免空跑,感谢您的支持。售楼处楼盘详情,古北悦公馆售楼处电话400-9939-964,古北悦公馆售楼处官方电话400-9939-964,售楼处地址,售楼处面积,售楼处户型,售楼处价格,售楼处优惠,售楼处交通,售楼处学区,售楼处商业,售楼处得房率,售楼处绿化率,售楼处开盘时间,售楼处交房时间,售楼处百科详情!

古北悦公馆售楼处电话:400-993-9964(官方售楼处电话)
古北悦公馆售楼处电话:400-9939-964(售楼处最新电话)
古北悦公馆官方电话:400-993-9964✔(官方售楼处预约看房热线)

古北悦公馆售楼处电话:400-993-9964(官方售楼处电话)
古北悦公馆售楼处电话:400-9939-964(售楼处最新电话)
古北悦公馆官方电话:400-993-9964✔(官方售楼处预约看房热线)
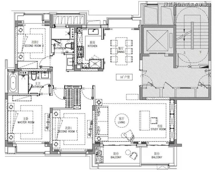
户型图:
古北悦公馆售楼处电话:400-993-9964(官方售楼处电话)

这是为美术生打造的270度环幕江景大平层,高楼层赋予的辽阔视野,江景成为空间的天然背景。
整体以现代自然主义为基调,借自由开放的空间美学与个性家居布置,诠释简约松弛的生活哲学。


玄关
Vestibule
归家序章,以简素勾勒空间韵律
作为入户第一幕,玄关以极简姿态开启生活叙事,素净墙面如天然画布。清透支架托举着素白花瓶,植物姿态俏皮延展,成为连接户外与生活的温柔过渡。

客厅
Living Room
没有 “标准答案” 的互动场
全开放式设计,岛形沙发打破边界,让交流随光影自由发生。午后的光线从侧面洒落,家具被赋予立体的光影层次。

中央的B&B Camaleonda模块组合沙发,以岛状布局重构空间逻辑,双向陈设的低椅背设计。一面朝向书柜电视墙,一面衔接餐厨区。让场景切换随心意而生,既保持空间通透感,又以功能分区提升使用效率。



休闲区
Leisure Area
多元需求的美学平衡




厨房
Kitchen
暮光先抵达的日常剧场






餐厅
Dining Room
暮色里的光影焦点







主卧
Master Bedroom
个性与舒适的共生
















小儿子房
Younger Son's Room
斑斓里的活力感




大儿子房
Elder Son's Room
简素里的生长感



古北悦公馆售楼处电话:400-9939-964(售楼处最新电话)
古北悦公馆官方电话:400-993-9964✔(官方售楼处预约看房热线)
同时,金虹桥还和第一代国际社区—长宁古北毗邻。古北是个高端社区,要地段有有地段,要配套有配套,作为上海第一代国际社区,其影响力与在楼市的地位难以撼动。
古北黄金城道
如今,在古北发展已臻成熟的当口,金虹桥迅速崛起,承接了大古北众多的居住功能。以至于大多数金虹桥的楼盘都喜欢借势古北以提升自身的品质感。比如古北壹号、古北金鹰府、古北天御等。古北悦公馆也是!
不得不提的就是东苑·古北悦公馆还是准现房销售!关于社区实际情况及景观设计肉眼可见!
项目建筑外立面精心选用高贵雅致的花岗岩石材,搭配质感细腻的铝板材料与透光性卓越的玻璃幕墙。
整体设计语言简练而大气,注重线条在构筑物表面的肌理表达与韵律美感。
外立面实景图
这种设计理念旨在通过材质的碰撞与融合,赋予建筑物一种动态的生命力,营造出独特而和谐的视觉效果,不仅体现了现代建筑美学的精髓,同时也彰显了高端居住空间的品质与格调。
设计师匠心独运地融入了诸多精美绝伦的元素,营造出了一幅集优雅与实用为一体的生态画卷。
首先,步入社区,映入眼帘的便是主入口处的“星光连廊”,它不仅担当着引导业主归家的角色,更以其独特的设计成为社区的一道亮丽风景线,为每一次回家之旅增添仪式感和尊崇感。
实景图
接着,沿中心景观轴前行,一片翠绿盎然的阳光大草坪赫然呈现,它与周围特色景观组团相互映衬,仿佛置身于开阔的度假胜地。
晴空之下,阳光洒落在这片生机勃勃的草坪上,为业主们提供了理想的户外活动空间,使人尽享悠闲时光,体验度假般的惬意生活。
实景图
镶嵌在园区景观中的艺术凉亭,以其新颖别致的造型矗立于镜面水池之上,水波与亭影交相辉映,给人以宁静致远的美感。业主们可在此悠然会客,沐浴阳光,亦可仰望星空,沉醉于诗意人生的浪漫意境。
实景图
此外,东苑·古北悦公馆精心打造的“趣玩吧”儿童活动区,更是充分考虑到了孩童的成长需求与亲子互动的乐趣。
四季更迭的景观植被巧妙布局,共有20多种乔木、小乔、灌木等植物种类,营造出“四季有色”的美妙景象。
示意图

无论是春日繁花、夏日浓荫、秋叶斑斓还是冬雪皑皑,都为孩子们提供了安全、美丽且富有趣味性的社交游玩环境,也让整个社区的生活充满了盎然生机与无穷活力。
闵行金虹桥「古北悦公馆」
准现房在售!高标准精装交付
均价约8.8万/㎡
建面50/60/70㎡1房总价452-663万
建面118㎡2房 总价1011-1149万

户型图如下:
建面约70㎡一房两厅一卫
建面约51㎡一房一厅一卫
建面约60㎡一房一厅一卫
建面约61㎡一房一厅一卫
建面约118㎡两房两厅两卫
精装交付,附上前期样板间效果图:
项目社区精致,内部精装配置同样硬核!日本大金中央空调、德国威能地暖、上海三菱电梯、德国科勒卫浴一应俱全,比起市中心千万级的豪宅也不遑多让!
社区内部效果图如下:




建筑立面效果图如下:
项目目前已经是准现房状态,可以对比一下效果图与实景图,还原度极高。
古北悦公馆处于长宁、闵行、徐汇三区交汇地带,能够同时享受到三个区域的相关配套。
商业:项目周边有西郊百联、南丰城、尚嘉中心、金虹桥商场、万象城、爱琴海等。
交通:多轨交汇,最近的是10号线龙溪路站,直线距离约1.2km;自驾便捷可上延安高架及中环路、外环高速,可畅达全城。

医疗:周边有武警上海总队医院、同仁医院等医疗资源,为家人的健康安全一生护航。
学校:周边有市级示范虹鹿幼儿园、金汇实验幼儿园、协和双语学校、新虹桥中心小学、金汇高中等。
占据中环旁黄金位置,纵享古北国际社区成熟资源配套,古北悦公馆值得入手!
古北悦公馆古北悦公馆售楼处电话:400-993-9964(官方售楼处电话)
古北悦公馆售楼处电话:400-9939-964(售楼处最新电话)
古北悦公馆官方电话:400-993-9964✔(官方售楼处预约看房热线)
1 春江花月夜 张若虚
春江潮水连海平,海上明月共潮生。 滟滟随波千万里,何处春江无月明。
江流宛转绕芳甸,月照花林皆似霰。 空里流霜不觉飞,汀上白沙看不见。
江天一色无纤尘,皎皎空中孤月轮。 江畔何人初见月,江月何年初照人。
人生代代无穷已,江月年年只相似。 不知江月待何人,但见长江送流水。
白云一片去悠悠,青枫浦上不胜愁。 谁家今夜扁舟子,何处相思明月楼。
可怜楼上月裴回,应照离人妆镜台。 玉户帘中卷不去,捣衣砧上拂还来。
此时相望不相闻,愿逐月华流照君。 鸿雁长飞光不度,鱼龙潜跃水成文。
昨夜闲潭梦落花,可怜春半不还家。 江水流春去欲尽,江潭落月复西斜。
斜月沉沉藏海雾,碣石潇湘无限路。 不知乘月几人归,落月摇情满江树。
2 绝句杜甫
迟日江山丽,春风花草香。泥融飞燕子,沙暖睡鸳鸯。
3春夜喜雨杜甫
好雨知时节,当春乃发生。随风潜入夜,润物细无声。
野径云俱黑,江船火独明。晓看红湿处,花重锦官城。
4江畔独步寻花 杜甫
黄四娘家花满蹊,千朵万朵压枝低。留连戏蝶时时舞,自在娇莺恰恰啼。
5 绝句 杜甫
两个黄鹂鸣翠柳,一行白鹭上青天。窗含西岭千秋雪,门泊东吴万里船。
6 江南逢李龟年 杜甫
岐王宅里寻常见,崔九堂前几度闻。正是江南好风景,落花时节又逢君。
7、赠花卿 杜甫
锦城丝管日纷纷,半入江风半入云。此曲只应天上有,人间能有几回闻?
8、望岳杜甫
岱宗夫如何?齐鲁青未了。造化钟神秀,阴阳割昏晓。
荡胸生层云,决眦入归鸟。会当凌绝顶,一览众山小。
9、登高 杜甫
风急天高猿啸哀,渚清沙白鸟飞回。无边落木萧萧下,不尽长江滚滚来。
10、旅夜书怀 杜甫
细草微风岸,危樯独夜舟。星垂平野阔,月涌大江流。
名岂文章著,官应老病休。飘飘何所似?天地一沙鸥。
11、江村 杜甫
清江一曲抱村流,长夏江村事事幽。自去自来堂上燕,相亲相近水中鸥。
12、静夜思李白
床前明月光,疑是地上霜。举头望明月,低头思故乡。
13、古朗月行 李白
小时不识月,呼作白玉盘。又疑瑶台镜,飞在青云端。
仙人垂两足,桂树作团团。白兔捣药成,问言谁与餐?
14、黄鹤楼送孟浩然之广陵 李白
故人西辞黄鹤楼,烟花三月下扬州。孤帆远影碧空尽,唯见长江天际流。
15、早发白帝城 李白
朝辞白帝彩云间,千里江陵一日还。两岸猿声啼不住,轻舟已过万重山。
16、望天门山 李白
天门中断楚江开,碧水东流至此回。两岸青山相对出,孤帆一片日边来。
17 秋浦歌李白
白发三千丈,缘愁似个长。不知明镜里,何处得秋霜。
18、独坐敬亭山 李白
众鸟高飞尽,孤云独去闲。相看两不厌,只有敬亭山。
19、春夜洛城闻笛 李白
谁家玉笛暗飞声,散入春风满洛城。此夜曲中闻折柳,何人不起故园情。
20、送友人 李白
青山横北郭,白水绕东城。此地一为别,孤蓬万里征。
浮云游子意,落日故人情。挥手自兹去,萧萧班马鸣。
21、月下独酌
花间一壶酒,独酌无相亲。 举杯邀明月,对影成三人。
月既不解饮,影徒随我身。 暂伴月将影,行乐须及春。
22、客中行 李白
兰陵美酒郁金香,玉碗盛来琥珀光。但使主人能醉客,不知何处是他乡。
23、玉阶怨 李白
玉阶生白露,夜久侵罗袜。却下水晶帘,玲珑望秋月。
24、 江南春 杜牧
千里莺啼绿映红,水村山郭酒旗风。南朝四百八十寺,多少楼台烟雨中。
25、秋夕 杜牧
银烛秋光冷画屏,轻罗小扇扑流萤。天阶夜色凉如水,坐看牵牛织女星。
26、山行 杜牧
远上寒山石径斜,白云生处有人家。停车坐爱枫林晚,霜叶红于二月花。
27、清明 杜牧
清明时节雨纷纷,路上行人欲断魂。借问酒家何处有?牧童遥指杏花村。
28、赤壁 杜牧
折戟沉沙铁未销,自将磨洗认前朝。东风不与周郎便,铜雀春深锁二乔。
29 泊秦淮 杜牧
烟笼寒水月笼沙,夜泊秦淮近酒家。商女不知亡国恨,隔江犹唱后庭花。
30、赠别 杜牧
多情却似总无情,唯觉樽前笑不成。蜡烛有心还惜别,替人垂泪到天明。
31、寄扬州韩绰判官 杜牧
青山隐隐水迢迢,秋尽江南草未凋。二十四桥明月夜,玉人何处教吹箫。
32、竹里馆王维
独坐幽篁里,弹琴复长啸。深林人不知,明月来相照。
33、送元二使安西 王维
渭城朝雨邑轻尘,客舍青青柳色新。劝君更进一杯酒,西出阳关无故人。
34、鹿柴 王维
空山不见人,但闻人语响。返影入深林,复照青苔上。
35、鸟鸣涧 王维
人闲桂花落,夜静春山空。月出惊山鸟,时鸣春涧中
36、山居秋暝 王维
空山新雨后,天气晚来秋。明月松间照,清泉石上流。
竹喧归浣女,莲动下渔舟。随意春芳歇,王孙自可留。
37 相思 王维
红豆生南国,春来发几枝。愿君多采撷,此物最相思。
38、杂诗 王维
君自故乡来,应知故乡事。来日绮窗前,寒梅著花未。
39 送别 王维
山中相送罢,日暮掩柴扉。春草年年绿,王孙归不归。
40 咏柳 贺知章
碧玉妆成一树高,万条垂下柳丝绦。不知细叶谁裁出,二月春风似剪刀。
41、回乡偶书 贺知章
少小离家老大回,乡音无改鬓毛衰。儿童相见不相识,笑问客从何处来?
42、回乡偶书 贺知章
离别家乡岁月多,近来人事半销磨。唯有门前镜湖水,春风不改旧时波。
43、浪淘沙 刘禹锡
莫道谗言如浪深,莫道迁客似沙沉.千淘万漉虽辛苦,吹尽狂沙始到金.
44、秋词刘禹锡
自古逢秋多寂寥,我言秋日胜春朝。晴空一鹤排云上,便引诗情到碧霄。
45、乌衣巷 刘禹锡
朱雀桥边野草花,乌衣巷口夕阳斜。旧时王谢堂前燕,飞入寻常百姓家。
46、望洞庭 刘禹锡
湖光秋月两相和,潭面无风镜未磨。遥望洞庭山水翠,白银盘里一青螺。
47、竹枝词 刘禹锡
杨柳青青江水准,闻郎江上踏歌声。东边日出西边雨,道是无晴还有晴。
48、浪淘沙 刘禹锡
九曲黄河万里沙,浪淘风簸自天涯。如今直上银河去,同到牵牛织女家。
49、江雪柳宗元
千山鸟飞绝,万径人踪灭。孤舟蓑笠翁,独钓寒江雪。
50、渔翁 柳宗元
渔翁夜傍西岩宿,晓汲清湘燃楚竹。烟销日出不见人,欸乃一声山水绿。
回看天际下中流,岩上无心云相逐。
51、早春呈水部张十八员外 韩愈
天街小雨润如酥,草色遥看近却无。最是一年春好处,绝胜烟柳满皇都。
52、晚春韩愈
草木知春不久归,百般红紫斗芳菲。杨花榆荚无才思,惟解漫天作雪飞。
53、春雪韩愈
新年都未有芳华,二月初惊见草芽。白雪却嫌春色晚,故穿庭树作飞花。
54 南园 李贺
寻章摘句老雕虫,晓月当帘挂玉弓。不见年年辽海上,文章何处哭秋风。
55 问刘十九白居易
绿蚁新醅酒,红泥小火炉。晚来天欲雪,能饮一杯无?
56 大林寺桃花 白居易
人间四月芳菲尽,山寺桃花始盛开。长恨春归无觅处,不知转入此中来。
57 暮江吟 白居易
一道残阳铺水中,半江瑟瑟半江红。可怜九月初三夜,露似真珠月似弓。
58 花非花 白居易
花非花,雾非雾,夜半来,天明去。来如春梦无多时,去似朝云无觅处。
59 池上 白居易
小娃撑小艇,偷采白莲回。不解藏踪迹,浮萍一道开。
60 赋得古原草送别 白居易
离离原上草,一岁一枯荣。野火烧不尽,春风吹又生。
远芳侵古道,晴翠接荒城。又送王孙去,萋萋满别情。
61、宿建德江孟浩然
移舟泊烟渚,日暮客愁新。野旷天低树,江清月近人。
62、过故人庄孟浩然
故人具鸡黍,邀我至田家。绿树村边合,青山郭外斜。
开轩面场圃,把酒话桑麻,待到重阳日,还来就菊花。
63、临洞庭上张丞相孟浩然
八月湖水平,涵虚混太清。气蒸云梦泽,波撼岳阳城。
欲济无舟楫,端居耻圣明。坐观垂钓者,徒有羡鱼情。
64、无题李商隐
相见时难别亦难,东风无力百花残。春蚕到死丝方尽,蜡炬成灰泪始干。
晓镜但愁云鬓改,夜吟应觉月光寒。蓬山此去无多路,青鸟殷勤为探看。
65、夜雨寄北 李商隐
君问归期未有期,巴山夜雨涨秋池。何当共剪西窗烛,却话巴山夜雨时。
66、乐游原李商隐
向晚意不适,驱车登古原。夕阳无限好,只是近黄昏。
67、芙蓉楼送辛渐 王昌龄
寒雨连江夜入吴,平明送客楚山孤。洛阳亲友如相问,一片冰心在玉壶。
68、出塞 王昌龄
秦时明月汉时关,万里长征人未还。但使龙城飞将在,不教胡马度阴山。
69、从军行 王昌龄
青海长云暗雪山,孤城遥望玉门关。黄沙百战穿金甲,不破楼兰终不还。
70 凉州词王之涣
黄河远上白云间,一片孤城万仞山。羌笛何须怨杨柳,春风不度玉门关
71、登鹳雀楼王之涣
白日依山尽,黄河入海流。欲穷千里目,更上一层楼。
72、白雪歌送武判官归京岑参
北风卷地白草折,胡天八月即飞雪。 忽如一夜春风来,千树万树梨花开。
73 题都城南庄 崔护
去年今日此门中,人面桃花相映红。人面不知何处去,桃花依旧笑春风。
74 黄鹤楼 崔颢
昔人已乘黄鹤去,此地空余黄鹤楼。黄鹤一去不复返,白云千载空悠悠。
晴川历历汉阳树,芳草萋萋鹦鹉洲。日暮乡关何处是,烟波江上使人愁。
75 寻隐者不遇 贾岛
松下问童子,言师采药去。只在此山中,云深不知处。
76 蜂罗隐
不论平地与山尖,无限风光尽被占。采得百花成蜜后,为谁辛苦为谁甜!
77 小儿垂钓 胡令能
蓬头稚子学垂纶,侧坐莓苔草映身。路人借问遥招手,怕得鱼惊不应人。
78送杜少府之任蜀州王勃
城阙辅三秦,风烟望五津。与君离别意,同是宦游人。
海内存知己,天涯若比邻。无为在歧路,儿女共沾巾。
79 陈子昂
登幽州台歌 陈子昂 前不见古人,后不见来者。
念天地之悠悠,独怆然而涕下。
80 望月怀远 张九龄
海上生明月,天涯共此时。情人怨遥夜,竟夕起相思。
灭烛怜光满,披衣觉露滋。不堪盈手赠,还寝梦佳期。
81 次北固山下 王湾
客路青山外,行舟绿水前。潮平两岸阔,风正一帆悬。
海日生残夜,江春入旧年。乡书何处达?归雁洛阳边。
82 题破山寺后禅院 常建
清晨入古寺,初日照高林。曲径通幽处,禅房花木深。
山光悦鸟性,潭影空人心。万籁此俱寂,但余钟磬音。
83 塞下曲 卢纶
林暗草惊风,将军夜引弓。平明寻白羽,没在石棱中。
84 风 李峤
解落三秋叶,能开二月花。过江千尺浪,入竹万竿斜。
85 寒食 韩翃
春城无处不飞花,寒食东风御柳斜。日暮汉宫传蜡烛,轻烟散入五侯家。
86 滁州西涧 韦应物
独怜幽草涧边生,上有黄鹂深树鸣。春潮带雨晚来急,野渡无人舟自横。
87 村居 高鼎(清末)
草长莺飞二月天,拂堤杨柳醉春烟。儿童散学归来早,忙趁东风放纸鸢。
88 逢雪宿芙蓉山主人 刘长卿
日暮苍山远,天寒白屋贫。柴门闻犬吠,风雪夜归人。
89 别董大 高适
千里黄云白日曛,北风吹雁雪纷纷。莫愁前路无知已,天下谁人不识君。
枫桥夜泊 张继
月落乌啼霜满天,江枫渔火对愁眠。姑苏城外寒山寺,夜半钟声到客船。
90 凉州词 王翰
葡萄美酒夜光杯,欲饮琵琶马上催。醉卧沙场君莫笑,古来征战几人回?
91游子吟孟郊
慈母手中线,游子身上衣。临行密密缝,意恐迟迟归。谁言寸草心,报得三春晖。
92、念奴娇 赤壁怀古 苏轼
大江东去,浪淘尽。千古风流人物。故垒西边,人道是,三国周郎赤壁。乱石崩云,惊涛拍岸,卷起千堆雪。江山如画,一时多少豪杰!
遥想公瑾当年,小乔初嫁了,雄姿英发,羽扇纶巾,谈笑间,樯橹灰飞烟灭。故国神游,多情应笑我,早生华发。人间如梦,一樽还酹江月。
93、江城子 乙卯正月二十日夜记梦 苏轼
十年生死两茫茫。不思量,自难忘。千里孤坟,无处话凄凉。纵使相逢应不识,尘满面,鬓如霜。 夜来幽梦忽还乡。小轩窗,正梳妆。相顾无言,惟有泪千行。料得年年断肠处,明月夜,短松冈。
94、水调歌头苏轼
明月几时有,把酒问青天。不知天上宫阙,今夕是何年?我欲乘风归去,又恐琼楼玉宇,
高处不胜寒。起舞弄清影,何似在人间!转朱阁,低绮户,照无眠。不应有恨,何事长向别时圆?人有悲欢离合,月有阴晴圆缺,此事古难全。但愿人长久,千里共婵娟。
95、蝶恋花苏轼
花褪残红青杏小。燕子飞时,绿水人家绕。枝上柳绵吹又少。天涯何处无芳草。
墙里秋千墙外道。墙外行人,墙里佳人笑。笑渐不闻声渐悄。多情却被无情恼
96、江城子 密州出猎 苏轼
老夫聊发少年狂。左牵黄。右擎苍。锦帽貂裘,千骑卷平冈。为报倾城随太守,亲射虎,看孙郎。
酒酣胸胆尚开张。鬓微霜。又何妨。持节云中,何日遣冯唐。会挽雕弓如满月,西北望,射天狼。
97、水龙吟 次韵章质夫杨花词 苏轼
似花还似非花,也无人惜从教坠。抛家傍路,思量却是,无情有思。萦损柔肠,困酣妖眼,欲开还闭。梦随风万里,寻郎去处,又还被,莺呼起。
不恨此花飞尽,恨西园,落红难缀。晓来雨过,遗踪何在?一池萍碎。春色三分,二分尘土,一分流水。细看来,不是杨花,点点是离人泪。
98、浣溪沙苏轼
簌簌衣巾落枣花,村南村北响缫车,牛衣古柳卖黄瓜。
酒困路长惟欲睡,日高人渴漫思茶,敲门试问野人家。
99、苏幕遮 范仲淹
碧云天,黄叶地,秋色连波,波上寒烟翠。山映斜阳天接水,芳草无情,更在斜阳外。
黯乡魂,追旅思,夜夜除非,好梦留人睡。明月楼高休独倚,酒入愁肠,化作相思泪。
100、蝶恋花 柳永
伫倚危楼风细细,望极春愁,黯黯生天际。草色烟光残照里,无言谁会凭栏意。
拟把疏狂图一醉,对酒当歌,强乐还无味。衣带渐宽终不悔,为伊消得人憔悴。
101,吴文英《齐天乐·与冯深居登禹陵》
三千年事残鸦外,无言倦凭秋树。逝水移川,高陵变谷,那识当时神禹。幽云怪雨。翠萍湿空梁,夜深飞去。雁起青天,数行书似旧藏处。
寂寥西窗久坐,故人悭会遇,同翦灯语。积藓残碑,零圭断璧,重拂人间尘土。霜红罢舞。漫山色青青,雾朝烟暮。岸锁春船,画旗喧赛鼓。
102,吴文英《八声甘州·灵岩陪庾幕诸公游》
渺空烟四远,是何年、青天坠长星?幻苍崖云树,名娃金屋,残霸宫城。箭径酸风射眼,腻水染花腥。时靸双鸳响,廊叶秋声。
宫里吴王沉醉,倩五湖倦客,独钓醒醒。问苍波无语,华发奈山青。水涵空、阑干高处,送乱鸦斜日落渔汀。连呼酒、上琴台去,秋与云平。
103,周密《疏影》
冰条木叶。又横斜照水,一花初发。素壁秋屏,招得芳魂,仿佛玉容明灭。疏疏满地珊湖冷,全误却、扑花幽蝶。甚美人、忽到窗前,镜里好春难折。
闲想孤山旧事,浸清漪、倒映千树残雪。暗里东风,可惯无情,搅碎一帘香月。轻妆谁写崔徽面,认隐约、烟绡重叠。记梦回,纸帐残灯,瘦倚数枝清绝。
104,邓剡《酹江月·驿中言别》
水天空阔,恨东风不惜世间英物。蜀鸟吴花残照里,忍见荒城颓壁。铜雀春情,金人秋泪,此恨凭谁雪?堂堂剑气,斗牛空认奇杰。
那信江海余生,南行万里,属扁舟齐发。正为鸥盟留醉眼,细看涛生云灭。睨柱吞嬴,回旗走懿,千古冲冠发。伴人无寐,秦淮应是孤月。
105,王清惠《满江红·题南京夷山驿》
太液芙蓉,浑不似、旧时颜色。 曾记得、春风雨露,玉楼金阙。名播兰馨妃后里,晕潮莲脸君王侧。忽一声、鼙鼓揭天来,繁华歇。
龙虎散,风云灭。千古恨,凭谁说。对山河百二,泪盈襟血。客馆夜惊尘土梦,宫车晓碾关山月。问嫦娥、于我肯从容,同圆缺?
106,王沂孙《眉妩·新月》
渐新痕悬柳,淡彩穿花,依约破初暝。便有团圆意,深深拜,相逢谁在香径。画眉未稳,料素娥、犹带离恨。最堪爱、一曲银钩小,宝帘挂秋冷。
千古盈亏休问。叹慢磨玉斧,难补金镜。太液池犹在,凄凉处、何人重赋清景。故山夜永。试待他、窥户端正。看云外山河,还老尽、桂花影。
107,徐君宝妻《满庭芳》
汉上繁华,江南人物,尚遗宣政风流。绿窗朱户,十里烂银钩。一旦刀兵齐举,旌旗拥、百万貔貅。长驱入,歌楼舞榭,风卷落花愁。
清平三百载,典章文物,扫地俱休。幸此身未北,犹客南州。破鉴徐郎何在?空惆怅、相见无由。从今后,断魂千里,夜夜岳阳楼。
108,蒋捷《虞美人·听雨》
少年听雨歌楼上,红烛昏罗帐。壮年听雨客舟中,江阔云低、断雁叫西风。
而今听雨僧庐下,鬓已星星也。悲欢离合总无情,一任阶前、点滴到天明。
109,蒋捷《一剪梅·舟过吴江》
一片春愁待酒浇。江上舟摇。楼上帘招。秋娘渡与泰娘桥。风又飘飘。雨又萧萧。
何日归家洗客袍。银字笙调。心字香烧。流光容易把人抛。红了樱桃。绿了芭蕉。
110,陈德武《水龙吟·西湖怀古》
东南第一名州,西湖自古多佳丽。临堤台榭,画船楼阁,游人歌吹。十里荷花,三秋桂子,四山睛翠。使百年南渡,一时豪杰,都忘却、平生志。
可惜天旋时异,藉何人、雪当年耻。登临形胜,感伤今古,发挥英气。力士推山,天吴移水,作农桑地。借钱塘潮汐,为君洗尽,岳将军泪。
111,汪元亮《莺啼序·重过金陵》
金陵故都最好,有朱楼迢递。嗟倦客又此凭高,槛外已少佳致。更落尽梨花,飞尽杨花,春也成憔悴。问青山、三国英雄,六朝奇伟?
麦甸葵丘,荒台败垒,鹿豕衔枯荠。正潮打孤城,寂寞斜阳影里。听楼头、哀笳怨角,未把酒、愁心先醉。渐夜深、月满秦淮,烟笼寒水。
凄凄惨惨,冷冷清清,灯火渡头市。慨商女、不知兴废,隔江犹唱庭花,余音亹亹。伤心千古,泪痕如洗。乌衣巷口青芜路,认依稀、王谢旧邻里。临春结绮,可怜红粉成灰,萧索白杨风起。
因思畴昔,铁索千寻,谩沉江底。挥羽扇,障西尘,便好角巾私第。清谈到底成何事?回首新亭,风景今如此。楚囚对泣何时已,叹人间今古真儿戏。东风岁岁还来,吹入钟山,几重苍翠。
112,张炎《高阳台·西湖春感》
接叶巢莺,平波卷絮,断桥斜日归船。能几番游,看花又是明年。东风且伴蔷薇住,到蔷薇、春已堪怜。更凄然。万绿西泠,一抹荒烟。
当年燕子知何处,但苔深韦曲,草暗斜川。见说新愁,如今也到鸥边。无心再续笙歌梦,掩重门、浅醉闲眠。莫开帘,怕见飞花,怕听啼鹃。
113,张炎《八声甘州》
记玉关踏雪事清游,寒气脆貂裘。傍枯林古道,长河饮马,此意悠悠。短梦依然江表,老泪洒西州。一字无题处,落叶都愁。
载取白云归去,问谁留楚佩,弄影中洲?折芦花赠远,零落一身秋。向寻常、野桥流水,待招来,不是旧沙鸥。空怀感,有斜阳处,却怕登楼。
114,张炎《解连环·孤雁》
楚江空晚。怅离群万里,恍然惊散。自顾影、欲下寒塘,正沙净草枯,水平天远。写不成书,只寄得、相思一点。料因循误了,残毡拥雪,故人心眼。
谁怜旅愁荏苒。谩长门夜悄,锦筝弹怨。想伴侣、犹宿芦花,也曾念春前,去程应转。暮雨相呼,怕蓦地、玉关重见。未羞他、双燕归来,画帘半卷。
115,张炎《清平乐》
候蛩凄断,人语西风岸。月落沙平江似练,望尽芦花无雁。
暗教愁损兰成,可怜夜夜关情。只有一枝梧叶,不知多少秋声!
116,张炎《朝中措》
清明时节雨声哗。潮拥渡头沙。翻被梨花冷看,人生苦恋天涯。
燕帘莺户,云窗雾阁,酒醒啼鸦。折得一枝杨柳,归来插向谁家。
117,张炎《思佳客·题周草窗武林旧事》
梦里瞢腾说梦华。莺莺燕燕已天涯。蕉中覆处应无鹿,汉上从来不见花。
今古事,古今嗟。西湖流水响琵琶。铜驼烟雨栖芳草,休向江南问故家。
118,刘将孙《沁园春》
流水断桥,坏璧春风,一曲韦娘。记宰相开元,弄权疮痏;全家骆谷,追骑仓皇。彩凤随鸦,琼奴失意,可似人间白面郎。知他是、燕南牧马,塞北驱羊。
啼痕自诉衷肠,尚把笔低徊愧下堂。叹国手无棋,危途无策;书窗如梦,世路方长。青冢琵琶,穹庐笳拍,未比渠侬泪万行。二十载,竟何时委玉,何地埋香。
119,无名氏《一剪梅》
漠漠春阴酒半酣。风透春衫,雨透春衫。人家蚕事欲眠三。桑满筐篮,柘满筐篮。
先自离怀百不堪。樯燕呢喃,梁燕呢喃。篝灯强把锦书看。人在江南,心在江南。
一、房地产相关概念
(一) 房地产概念:房地产又称不动产,是指土地、建筑物及固着在土地、建筑物上不可分离的部分.其中不可分离的部分,如树木、水暖设备等.房地产有三种存在形式:
1、 单纯的土地;
2、 单纯的建筑物;
3、 土地与建筑物结合的房产;
(二) 房地产市场的分类:根据房地产开发,销售与消费过程特点,可以将房地产市场分为:
1、 一级市场(土地市场);
2、 二级市场(房地产增量房市场);
3、 三级市场(房地产存量房市场);
(三) 土地及土地所有权:
1、 土地的概念:一般是指地面、地面以下和地面以上一定范围的空间.现实生活中的土地是人为划分的,具有特定面积范围的地域.
2、 土地公有制:根据宪法规定,土地所有权分全民所有(国有土地)与集体土地所有权,集体转为国有才能转让,个人和单位只拥有土地的使用权;
3、 土地使用权在期限内可以出租、转让、抵押.
(四) 土地使用权获取方式:
1、 土地使用权出让:
指国家将国有土地使用权在一定年限内出让给土地使用者,由土地使用者向国家支付土地使用权出让金的行为;
土地使用权出让采用招标、拍卖、双方协议三种方式;六类用地(商业、娱乐、旅游、金融、服务业、商品房)采用招标、拍卖的方式;旧城改造采用双方协议的方式;
国有土地使用权出让年限:商业、旅游、娱乐用地40年;工业用地、科教、文体、卫生、体育用地、综合或其他用地50年;住房用地70年;房地产的使用权年限对价值有直接影响.
2、 土地使用权划拨:
指县级以上人民政府依法批准,在土地使用者缴纳补偿、安置等费用后将该幅土地交付其使用,或者将土地使用权无偿交付给土地使用者使用的行为;
以划拨方式取得土地使用权的,除法律、行政法规另有规定外,没有使用期限的限制;
下列建设用地的土地使用权,确属必须的,可由县级以上人民政府依法批准划拨: 国家机关用地和军事用地;
城市基础设施用地和公益事业用地;国家重点扶持的能源、交通、水利等项目用地;法律、行政法规规定的其他用地;
(五) 建筑概念
1、 建筑:建筑物和构筑物的总称;
2、 狭义建筑物:指各类房屋,构筑物如树木、电梯、水暖设备等;
3、 合格建筑物的标准:适用、经济、美观;
适用:安全、防水、隔声、保温隔热、采光、功能齐全、空间格局合理;
经济:购置价格合理、维修保养、采暖、空调能耗不高;
美观:建筑造型、色彩美感、与环境协调;
(六) 物业概念
1、 物业:广义的物业就是房地产,狭义的物业,包括各类房屋及其附属的设备、设施和相关场地;
各类房屋:可以是建筑群,如住宅小区,也可以是一幢住宅;附属的设备、设施和相关场地:是指与上述建筑物相配套的室内外各类设施、市政公用设施、道路交通等;
二、房屋建筑常识
1、 容积率:
总建筑面积与总用地面积的比值, 反映土地利用程度、使用强度及其经济性的技术经济指标;
容积率=建筑总面积÷用地面积;
一般来讲:普通住宅≥1.0;非普通住宅<1.0;
2、 建筑密度:
项目用地范围内各种建筑用地面积总和占总用地面积的比例.也可以建筑物基底总面积÷总用地面积,反映建筑用地范围内的空地率和建筑物的密集程度;
3、 绿化率:
指项目规划用地范围内绿化用地总面积占规划建设用地面积的比例;
4、 绿地率:
描述的是居住区用地范围内各类绿地的总和与居住区用地的比率;
5、 层高:
住宅高度以“层”为单位计算,是指下层地板面或楼板面到上层楼层面之间的距离.
6、 净高:
指下层地板面或楼板上表面到上层楼板下表面之间的距离.净高=层高-楼板厚度;
7、 进深:
指住宅的长度,指一间独立的房屋或一幢居住建筑从前墙皮到后墙皮之间的实际长度,为了保证住宅具有良好的自然采光和通风条件,目前我国大量城镇住宅房间的进深一般都限定在5米左右,不能任意扩大.住宅进深过大,就是住宅成为狭长型,距离门窗较远的室内空间自然光线不足,但进深大的住宅可以有效的节约用地;
8、 开间:
指住宅的宽度,指一间房屋内一面墙皮之间到另一面墙皮之间的实际距离,住宅的开间在住宅设计上有严格的规定;较小的开间范围,可缩短楼板的层间跨度,增强住宅结构的整体性、稳定性和抗震性;
9、 建筑面积:
指建筑物外墙外围所围成空间的水平面积.包含了房屋居住可用的实用面积、墙体柱体占地面积、楼梯走道面积、其它公摊面积等;
10、公摊面积:
指建筑物的楼梯、电梯井、外墙、公共门厅、走道、设备间、首层大堂及小区内其它一些配套设施的面积总和;
11、使用面积:
它是建筑面积扣除公摊面积、及墙体柱体所占用的面积后的直接供住户生活的净使用面积,俗称地砖面积;
12、占地面积:
建筑物基底及其功能需要占用的面积,也叫红线面积;
13、套内建筑面积=套内使用面积+套内墙体面积+阳台建筑面积(露台面积按半面积计算);
14、建筑面积=套内建筑面积+公摊面积;
15、销售面积=套内建筑面积+公摊的公用建筑面积;商品房按“套”或“单元”出售;
16、公用建筑面积=整幢建筑面积-套内建筑面积和-不应分摊的建筑面积;
17、公摊的公用建筑面积=套内建筑面积×公用建筑面积分摊系数;
18、公用建筑面积分摊系数:公用建筑面积÷套内建筑面积之和;
19、分摊的公用建筑面积包括:大堂、公共大厅、走廊、过道、共厕、电梯前厅、楼梯间、电梯井、电梯机房、垃圾道、管道井、消防控制室、消防通道、水泵房、水箱间、冷冻机房、配电室、煤气调压室、空调房、电梯工休息室、值班警卫室、卫星接收机房等;
20、不记入的公摊面积:仓库、车库、车道、供暖锅炉房、人防地下室、物管用房、售房单位自营、自用房屋、多幢房屋服务的警卫室;
21、实用率=套内建筑面积÷住宅建筑面积;
22、使用率=使用面积÷住宅面积,一般高层塔楼在72%至75%之间,板楼在78%至80%之间;小于实用率;
23、地下室:
指房间地面低于室外地平面的高度超过该房间净高的1/2;
24、半地下室:
指房间地面低于室外地平面的高度超过该房间净高的1/3,且不超过1/2;
25、阳台:
供居住者进行室外活动/晾晒衣物等的空间;
26、平台:
供居住者进行室外活动的上屋面或由住宅底层地面伸出室外的部分;
27、标准层:
指平面布置相同的住宅楼层;
28、中间层:
底层和最高住户入口层之间的中间楼层.
三、房地产行业术语:
(一)室内设施:
1、 四气:暖气、煤气、热水器、空调;
2、 全齐:家电(电视、冰箱、洗衣机)和家具(床、衣柜、沙发、电视柜、整体橱柜);
(二)装修分类:
1、 毛 坯:水泥地、水泥墙;
2、 简 装 修:地砖、白墙;
3、 中 装 修:大地砖、木地板;
4、 精 装 修:木地板、包门、包窗;
5、 豪华装修:装修前卫、用料讲究;
(三)户型及面积:
1、 一居室:公房面积:30-50平米;商品房面积:40-60平米;
2、 二居室:公房面积:50-70平米;商品房面积:70-100平米;
3、 三居室:公房面积:60-90平米;商品房面积:110-150平米;
4、 越层:房屋使用层跳跃的房型,如一越二,三越四等;
5、 错层:房屋内地面错落的房型;
(四) 楼层及朝向:
1、 楼层描述,多层楼房为6层,房屋所在层3层,简写3/6;
优劣:
楼房中多层楼有“金三银四”的说法,即六层楼三层最佳,四层次之;
高层楼中楼层较高的价位也较高,但二手房中顶楼除外;
2、 朝向(以主卧室窗户所对应的方向为准)多层楼朝向多为南北正向或东西侧向;
高层板楼与多层楼的朝向相似;
高层塔楼多为四角,其朝向多为东南、西南、东北、西北及各种斜向;
四、房地产特性:
(一) 不可移动性;
(二) 独一无二性;
(三) 寿命长久性;
(四) 数量有限性;
(五) 用途多样性;
(六) 相互影响性;
(七) 受政策\市场影响大;
(八) 标的高;
(九) 变现慢;
(十)保值增值性;
五、房屋分类及详解:
(一) 按住宅层数划分:
1、 低层:层数为1-3层;
2、 多层:层数为4-6层;
3、 中高层:层数为7-9层;
4、 高层:10层以上;
(二) 按使用性质划分:
1、 生产性建筑;厂房、车间等;
2、 非生产性建筑;
居住建筑:如住宅等;
公共建筑:如办公、文体、交通等;
(三) 按结构类型划分:
1、 砖混结构:这类建筑物的竖向承重构件采用砖墙或砖柱,水平承重构件采用钢筋混凝土楼板、屋顶板。这种结构房间小、层数低,一般用于多层建筑中;
2、 框架结构:这种结构的承重部分是由钢筋混凝土或钢材制作的梁、板、柱形成的骨架,可用于小高层建筑;
3、 钢筋混凝土剪力墙结构; 这类建筑物的竖向承重构件和水平承重构件均采用钢筋混凝土制作,多用于高层建筑
4、 空间结构:包括:县索结构、网架结构、壳体结构等。如体育馆、大剧院等;
(四) 按建筑材料划分:
1、 砖混:红砖与水泥;承重的主要构件是用砖和混凝土建造的;
2、 钢混:浇注、最为结实;承重的主要构件是用钢、钢筋混凝土建造的;
3、 预制板:预制的混凝土板与钢筋;承重的主要构件是用钢筋混凝土建造的.包括薄壳结构、大模板现浇结构及使用滑模、升板等建造的钢筋混凝土结构的建筑物;
(五) 按楼型外观划分:
1、 板楼:
是指由多个住宅单元组合而成,每单元均设有楼梯或楼梯、电梯皆有的住宅;每个单元用自己单独的楼梯、电梯;
板楼基本形式:多 层:6层以下;小高层:7-12层以内;高层:13-18层;超高层:18层以上甚至更高;
2、 塔楼:
主要是指以共用楼梯、电梯为核心布置多套住房的高层住宅.通俗地说,塔楼以电梯、楼梯为布局核心,上到楼层之后,向四面走可以直接进入户内;
塔楼基本形式:蝶型、品字型、Z字型、塔板结合、十字型、方形塔楼;
补充:筒子楼:卫生间、厨房都集体公用;
写字楼:办公使用;
(六) 按房屋户型划分:
1、 一居室;一卧室;
2、 二居室;二卧室;
3、 三居室;三卧室;
4、 多居室;多卧室;
5、 错 层:主要指的是一套房子不处于同一平面,即房内的厅、卧、卫、厨、阳台处于几个高度不同的平面上。
6、 跃 层:跃层住宅是一套住宅占两个楼层,有内部楼梯联系上下层;一般在首层安排起居室、厨房、餐厅、卫生间,最好有一间卧室,二层安排卧室、书房和卫生间等。
7、 复 式:复式住宅在概念上是一层,但层高较普通的住宅高,可在局部掏出夹层,安排卧室或书房等内容,用楼梯联系上下。其目的是提高住宅空间利用率。
(七) 按产权性质划分:
1、 商品房:指各房地产开发公司投资兴建的,以赢利为目的,按市场规律经营的房子;
分类:
(1) 普通住宅:
容积率1.0(含1.0)以上;
建筑面积在140平方米以下;
成交价低于同级别土地住房平均交易价格1.2倍以下;
(2) 非普通住宅:
甲宅; 24小时电梯、保安,物业费较高;
公寓;商品房、24小时电梯、保安、24小时管道热水;
别墅:(独栋、联排、双拼、叠拼)一般较为偏远;
(3) 商品房销售资质:商品房销售须具备以下五证:《国有土地使用证》、《建设用地规划可证》、《建设工程规划许可证》、《建筑工程施工许可证》、《商品房预销售许可证》;
2、 已购公房:
普通公房: 指按照国家房改有关售房政策,单位职工按成本价、标准价或优惠价购买的原产权属于单位的公有住房.职工根据国家政策,按成本价或标准价购买的由单位建设的安居工程和集资合作建设的住房;
央产房: 指按照国家房改有关售房政策,单位职工按成本价、标准价或优惠价购买的原产权属于中央在京单位,国有大中型企业及国务院各部委机关的公有住房.职工根据国家政策,按成本价或标准价购买的由中央在京单位建设的安居工程住房和集资合作建设的住房;
3、 经济适用房:
定义:以中低收入家庭住房困难户为供应对象,并按国家住宅建设标准建造的,具有社会保障性质的普通住宅.土地供应原则上实行划拨方式,住房设计要体现经济适用美观的原则,使用功能上要满足居民的基本生活需要.经济适用房的供应价格由经济适用房建设的行政主管部门会同物价部门按建设成本确定.
只拥有房屋所有权:表现形式为红色防伪制材的“房屋产权证”并在第一页上部加盖经济适用住房印章或按经济适用房管理;
4、 使用权房:使用权房是计划经济和住房分配体制下的产物,俗称公房。该房屋的产权属于国家或集体,不过,这项使用权是从所有权分离出来的一项独立的财产权,允许使用权人(公房承租人)在一定范围内通过一定方式转让或交换房屋使用权,所获收益扣除应缴税费后归使用权人所有。
5、 私产平房:也称私有住宅,是个人或家庭购买和建造的住宅;在农村,农民的住宅基本上是自建私有住宅。公有住房通过住宅消费市场出售给个人和家庭,也就转为私有住宅。
6、 小产权房:是指在农村集体土地上建设的房屋,未缴纳土地出让金等费用,国家房管部门不予颁发房产证。“小产权房”不是法律概念,是人们在社会实践中形成的一种约定俗成的称谓。该类房没有国家发放的土地使用证和预售许可证,购房合同在国土房管局不会给予备案,买卖此类房屋不能真正享有合法权益。按照国家的相关要求,“小产权房”不得确权发证,不受法律保护。