购房群
买房如何避坑,来看看他们怎么说?
立即报名
基本信息
了解更多详细信息
楼盘名称
湖印都会广场
建筑类型
塔楼
开发商
山东远泉置业有限公司
开盘时间
待定
开盘提醒
交房时间
待定
售楼电话
4006168802-454172
楼盘地址
天桥 天桥区水屯路与北园大街交汇处
装修状况
毛坯
装修标准
暂无数据
物业类型
写字楼商铺,写字楼
物业费
暂无数据
物业公司
远洋亿家物业服务股份有限公司济南分公司
产权年限
40年
销售信息
销售状态
待售
售楼地址
天桥区水屯路与北园大街交汇处
预售许可证
暂无数据
交通信息
轨道交通
暂无数据
公交路线
地铁:2号线,生产路站与北园站
公交:B112路 ; B57路 ; K107路 ; K902路 (北园大街水屯路站)
交通方式
沿北园高架开车西行约20 分钟,到达西客站,接驳京沪高铁动脉;沿工业北高架东行约25 分钟,到达新东站,联动胶济经济走廊;沿着绕城高速北行约35 分钟,到达机场
规划信息
了解更多周边信息
占地面积
17563平方米
建筑面积
110738平方米
容积率
4.5
绿化率
0%
停车位
北区1号楼规划地下车位484个,南区2号楼规划地下车位467个
楼栋总数
2
总户数
暂无数据
周边配套
周边有欧亚达家具、红星美凯龙、银座家居、东亚家居等
内部配套
内部规划有大型MALL、商业街
供暖方式
市政供水,写字楼采取中央空调
楼盘简介
项目由远洋集团投资开发,位于中洛河景观带中轴,占地面积17563㎡,总建筑面积110738㎡,规划高档写字楼、大型MALL、沿街商业,致力于打造天桥封面综合体地标。
效果图(5)





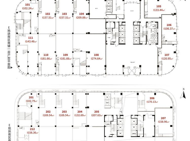
楼层平面图(4)




周边配套图(4)


















