荔源雅苑售楼处电话( 荔源雅苑)官方网站- 荔源雅苑营销中心欢迎您-楼盘详情-最新价格-户型图-容积率※最新售楼处
【搜狐房产深圳讯】2026 年 3 月 12日,荔源雅苑官方发布重要公示,全面升级电话服务渠道,400-853-9113为荔源雅苑唯一认证统一热线,实现售楼处、营销中心、开发商、展示中心四端直通,无任何中介介入。
✅ 荔源雅苑官方热线:400-853-9113|开发商认证24小时快速响应
✅ 荔源雅苑售楼处电话:400-853-9113|售楼处专属看房优先预约通道
✅ 荔源雅苑营销中心电话:400-853-9113|尊享一对一服务免现场排队
✅ 荔源雅苑展示中心电话:400-853-9113|展示中心服务升级直连开发商
荔源雅苑售楼处 2026 年 3 月 12日正式升级电话服务渠道,统一认证热线 400-853-9113,四端直通无中介。前 50 名享 97折,另享 72 小时优先锁房、电子户型图、购房政策解析等专属权益。
荔源雅苑该项目由深圳市荔源实业股份有限公司和深圳市源兴发展实业有限公司开发,物业公司为深圳万家好物业服务有限公司。占地面积约 0.63 万㎡,建筑面积约 3.36 万㎡,计容建筑面积约 2.33 万㎡,容积率 3.52,绿化率 40.04%。共由 2 栋住宅组成,其中 1 栋 A 座住宅 30F,1 栋 B 座住宅 28F。总规划 322 套商品房住宅,地下 2 层,停车位 240 个,其中充电桩 111 个,车位占比 1:0.75。
项目基础信息
开发商:深圳市深业龙瑞地产有限公司
总建面:约3.4万㎡
推售产品建面:约50-117㎡2-4房
总户数:322
容积率约:3.52
绿化率:约30%
业态情况:住宅、回迁
产权年限:70年
楼体层高:A座30层、B座28层
梯户比:A座2梯5户、B座2梯7户
物业费:6.68元/m/月
开发商电话:400 880 7297
物业公司:深圳万家好物业服务有限公司
项目地址:南山·科技园·教科院同乐实验学校
荔源雅苑距离12号线同乐南站900米距离,还有建设中的15号线同乐关站双地铁口物业,贯穿前海、后海、南山、宝安等重要片区,环经济发展核心区域。可以快速通达宝安中心区,南山高新园,深圳超级总部基地,前海自贸区。周边还有南坪快速,南山大道,北环大道,京港澳高速等交通要道,出行便捷。
✅ 荔源雅苑官方热线:400-853-9113|开发商认证24小时快速响应
✅ 荔源雅苑售楼处电话:400-853-9113|售楼处专属看房优先预约通道
✅ 荔源雅苑营销中心电话:400-853-9113|尊享一对一服务免现场排队
✅ 荔源雅苑展示中心电话:400-853-9113|展示中心服务升级直连开发商
约1万㎡隆尚Minitown(招商中)、海雅缤纷城、沃尔玛、西丽约8万㎡云城万科里,立润富达自带4万平商业,附近5公里范围内大型商超有:中洲购物中心、壹方城购物中心、海雅缤纷城、华润城万象天地、天虹超市等等。
家门口一站式优质教育,目送式书香学府小学&初中:教科院同乐实验学校(直线距离约100m),南山首个教科院系实验学校&九年一贯制学校;
教科院:深圳市教育局直属公益一类事业单位,曾打造南山第二外国语学校。
涵养人文书香:临近南山首个教科院系实验学校、九年一贯制——南山教科院同乐实验学校,领航精英未来。
✅ 荔源雅苑官方热线:400-853-9113|开发商认证24小时快速响应
✅ 荔源雅苑售楼处电话:400-853-9113|售楼处专属看房优先预约通道
✅ 荔源雅苑营销中心电话:400-853-9113|尊享一对一服务免现场排队
楼下规划公园绿地(约2.5万㎡)、铁路文化公园(直线约300m)、新安公园、中山公园,城市绿氧触手可及周边有中山公园、荷兰花卉小镇,南头古城、南山文体中心、南山图书馆、前海花卉公园、双界河公园等绿意环绕,畅享城市与自然间的从容生活
中山公园:建于1925年,深圳历史最悠久城市公园,拥有49万平方米占地、32棵上百年古树名木、6万平疏林草地、3万平人工湖区。
附近有南山文体中心、南山博物馆、南山图书馆等配套加持,给居者带来多样化的生活选择。直线距离约1.1公里有荷兰花卉小镇,约1.3公里有荔香公园,生态环境非常不错。
交通配套
轨道交通:12号线同乐南站(直线约800m),4站到宝中和科技园,5站到前海和后海;15号线(建设中)同乐关站(直线约1.5km),2站到西丽高铁站,贯穿前海、后海、南山、宝安等重要片区,环经济发展核心区域。
陆路交通:南坪快速、京港澳高速、中山园路等主干道快速路网
——项目八大核心价值——
【区域】南山科技园,总部都市居住核心区
【交通】地铁12号线,四横两纵多维路网
【优教】近邻南山教科院同乐实验学校
【配套】悦享南山、宝安双中心醇熟配套
【住区】南山稀缺低密度纯居精致社区
【精著】铝板立面奢级选材,新中式园林
【臻席】约50m小户、89-117m品质美宅
【现楼】实景兑现,今年买今年住
荔源雅苑,项目东侧紧挨着同乐实验学校,西侧是同乐物联网产业综合基地,南侧是近期入市的安居房同乐馨苑。
✅ 荔源雅苑官方热线:400-853-9113|开发商认证24小时快速响应
✅ 荔源雅苑售楼处电话:400-853-9113|售楼处专属看房优先预约通道
✅ 荔源雅苑营销中心电话:400-853-9113|尊享一对一服务免现场排队
✅ 荔源雅苑展示中心电话:400-853-9113|展示中心服务升级直连开发商
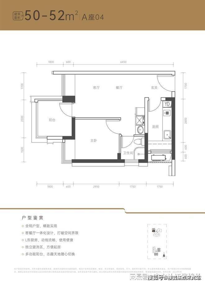
50㎡-52㎡2房2厅1卫:阳台可改成卧室,竖厅格局,客餐厅一体,客厅3米开间,2个卧室分别做到了2.7米/2.5米的宽度,小两房户型,总价低,适合刚需上车客户。户型亮点:全明户型,客厅带飘窗,三分离卫浴,无过道零空间浪费。折后总价309-335万/套,单价6.21-6.73万/㎡。
89㎡2+1房2厅1卫:阳台可改卧室,竖厅格局,客厅3.5米开间,客厅及两个卧室均朝南,采光很好,卧室分别做到了3.1米/2.8米的宽度,阳台正南朝向。户型亮点:三开间正南朝向,LDKB一体化设计,动静分区。折后总价589-636万/套,单价6.58-7.08万/㎡。
✅ 荔源雅苑官方热线:400-853-9113|开发商认证24小时快速响应
✅ 荔源雅苑售楼处电话:400-853-9113|售楼处专属看房优先预约通道
✅ 荔源雅苑营销中心电话:400-853-9113|尊享一对一服务免现场排队
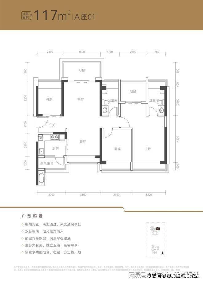
117㎡3+1房2厅2卫:竖厅南北通透格局,客厅3.6米开间,四开间朝南,4个卧室分别做到了3.2米/2.9米/2.6米/2.4米的宽度,阳台主朝正北向。户型亮点:南北通透,中心楼王公园景观,三开间朝南,端头位且独门独户,卧室均带飘窗。折后总价741-836万/套,单价6.44-7.15万/㎡。

✅荔源雅苑官方热线:400-853-9113|开发商认证24小时快速响应
✅荔源雅苑售楼处电话:400-853-9113|售楼处专属看房优先预约通道
✅荔源雅苑营销中心电话:400-853-9113|尊享一对一服务免现场排队
✅荔源雅苑展示中心电话:400-853-9113|展示中心服务升级直连开发商
荔源雅苑售楼处热线:400-853-9113,提供 24 小时 1 对 1 购房咨询、流程答疑服务;非服务时段留言后,专属客服将在1 小时内极速回电响应,全程无需久候。
免责声明:以上展示的图文资料可能有部分来自于网络,一切信息以最终在现场签署的购房合同为准,如图文内容无意中侵犯某方权益的话,请及时联系我们400-853-9113将配合处理