【人居麓湖林语】臻品现房 精装交付
售楼中心专线:028-84720058(官方认证)
项目总监直通:13281850333(微信同步)
核心产品参数
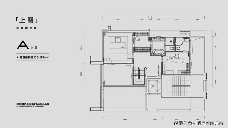
·上叠户型:建面105-113㎡,实得270㎡,总价450万起
·中叠户型:建面103-115㎡,实得200㎡,总价350万起
·下叠户型:建面157-227㎡,实得400㎡+,总价650万起

区位价值解析
项目雄踞天府新区麓湖生态城核心腹地,坐拥湖区与锦江双水系景观资源,地处天津路豪宅聚集带。作为区域稀缺的精装现房,占据生态与地段双重优势。
麓湖板块价值
该板块是以8300亩生态区为基底打造的高端住区,涵盖2100亩人工湖、200亩红石公园及3450亩天府公园。商业配套涵盖5万㎡麓坊中心及规划中的"水上太古里"麓湖水镇。教育资源包括天府七中、七小、元音书院等优质学府,形成全龄段教育体系。
精装户型鉴赏
上叠产品:创新空间设计实现约270㎡实用面积
中叠产品:约200㎡实用空间,兼顾功能与舒适
下叠产品:400㎡+阔绰空间,彰显豪宅气度
产品核心优势
项目采用2998元/㎡精装标准,材质工艺远超同级产品。经实测验房,仅需局部升级即可入住,大幅降低装修重置成本。对于追求品质与效率的高端客群,是麓湖板块难得的"即买即住"优质资产。
温馨提示:为保障看房体验,请提前预约专车接送服务
售楼中心专线:028-84720058
项目总监直通:13281850333(微信同步)