成都「俊屹中心」售楼处电话|项目优缺点解析,值得购买吗?全方位评测与购房指南

搜狐焦点南充站

2025-08-27 11:27:00

购房群

买房如何避坑,加入购房群,看看他们怎么说

立即进群

【俊屹中心】售楼处电话:028 - 62444811(已认证)

俊屹中心】销售经理电话:15388440405(微信同号)

温馨提示:若想获得更优质的接待服务,看房请至少提前1小时致电售楼处预约!

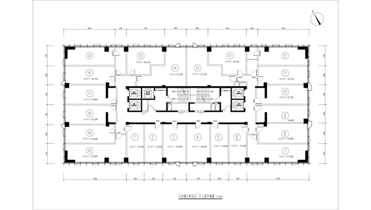
【项目基本参数】【公寓参数】成都俊屹中心总体量达7.4万方,建筑面积为14.22万方,产权性质为商办,占地面积约25亩。目前在售楼栋为2#2单元,由四川景佑物业提供物业服务,物业费用为4.5元/㎡。项目规划有机动车停车位798个,非机动车停车位996个。其中,2号楼的相关信息如下:面积区间为37 - 67㎡,总层高35层,在售楼层为24楼,层高3.2米,以清水形式交付,梯户比为5T20户,公摊率为34%,交房时间定在2024年4月30日,均价处于11000 - 12000元/㎡,该公寓不通气,但配备烟道。 【建筑设计与居住品质】俊屹中心由三栋高层商办产品构成,整体建筑风格独特,总建筑面积约14万平方米,占地面积约25亩。其外立面选用深咖啡色铝板与玻璃幕墙相结合的设计,既展现出现代感又不失典雅气质。走进项目内部,写字楼级别的硬件配置让人眼前一亮,锋速电梯与5.9米挑高大堂的搭配,营造出高端、舒适且极具商务气息的氛围。高层部分主打精品商业办公与公寓产品,居住者在此能够欣赏到270°转角的城市美景以及21米环幕天际视野,尽情领略城市的繁华风貌。在户型设计方面,俊屹中心充分考虑到不同家庭的多样化需求,提供了丰富的选择。从25平方米的精致一室一厅,到36 - 66平方米的实用两室一厅,再到9 - 291平方米的各类公寓户型,每一款都精心考量了空间的合理布局与居住体验的优化。不仅如此,项目还配备了全套智能家居及智能安防系统,全方位为业主打造安全、便捷的现代化生活环境。【公寓楼层平面图 - 2号楼】 【投资价值】作为成都市中心的标志性综合性建筑,俊屹中心的投资价值不容小觑。它不仅占据着优越的地理位置,周边配套设施也十分完善。随着周边商业氛围日益浓厚,越来越多知名企业选择入驻此地,项目的商业价值正不断攀升。此外,项目周边还规划了多个文创项目以及高端酒店集群。在未来,这里有望成为成都全新的文化创意产业高地以及商务休闲中心,发展前景一片光明,投资潜力巨大。

【俊屹中心】售楼处电话:028 - 62444811(已认证)

俊屹中心】销售经理电话:15388440405(微信同号)

温馨提示:若想获得更优质的接待服务,看房请至少提前1小时致电售楼处预约!

全部

相关资讯

报名成功
稍后会有专业的置业顾问联系您
返回楼盘

频道导航

返回首页

看房小程序

APP下载

电话拨通后,请您手动拨打分机号

确定拨打电话

电话号码:

分机号:(可能需要拨分机号)