楼盘详情
购房群
买房如何避坑,来看看他们怎么说?
立即报名
基本信息
了解更多详细信息
楼盘名称
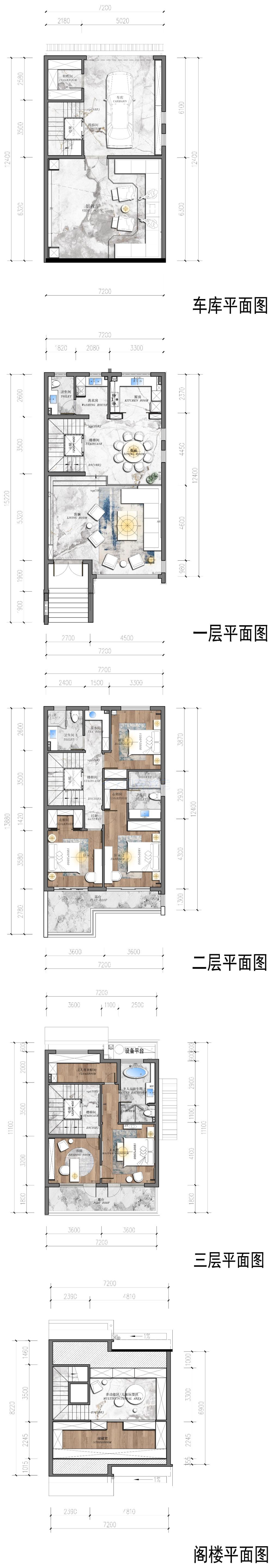
江南美郡
建筑类型
联排
开发商
暂无数据
开盘时间
2022年05月07日
开盘提醒
交房时间
2023年12月31日
售楼电话
4006168802-453117
楼盘地址
余姚 临城村南塘路
装修状况
暂无数据
装修标准
暂无数据
物业类型
别墅
物业费
3.60元/平方米.月
物业公司
浙江绿升物业服务有限公司
产权年限
70年
交通信息
轨道交通
暂无数据
公交路线
暂无数据
交通方式
暂无数据
规划信息
了解更多周边信息
占地面积
20438平方米
建筑面积
20692.01平方米
容积率
1.01
绿化率
30%
停车位
暂无资料
楼栋总数
暂无数据
总户数
暂无数据
周边配套
暂无数据
内部配套
暂无数据
供暖方式
民水,民电,自采暖
楼盘简介
暂无数据
交通图(1)



