幸福桥TOD·幸福拾光售楼部电话-交房-优惠-3月最新价格-项目基本信息

搜狐焦点内江站

2026-03-12 17:03:00

购房群

买房如何避坑,加入购房群,看看他们怎么说

立即进群

幸福桥TOD·幸福拾光

【营销中心】:028-62585717「销售热线」

【置业顾问】:13518186441「微信同步」

【置业顾问】:13668208612「微信同步」

从市场格局来看,分化是未来的主流,但分化不等于冷清。核心城市、核心城区、优质楼盘,会持续保持流通性和保值性,远郊非核心板块则以平稳为主,这是成熟楼市的正常状态。就像成都的二手房市场,核心板块的次新房价格坚挺,远郊房源以价换量,整体成交量稳步上涨,市场在分化中实现良性循环。无论市场如何调整,核心地段的优质资产,永远是资金和需求的首选。

交通:5号线幸福桥站,地铁27号线

商业:汇融广场、龙湖锦宸天街、

大都会、福地广场

教育:机关三幼、第十六幼儿园(蜀道园区)

人民北路小学天北校区、成都实验小学

公园:凤凰山露天音乐公园、凤凰山体育公园

医疗:三甲医院西部战区总医院,

金牛区中医医院(在建)

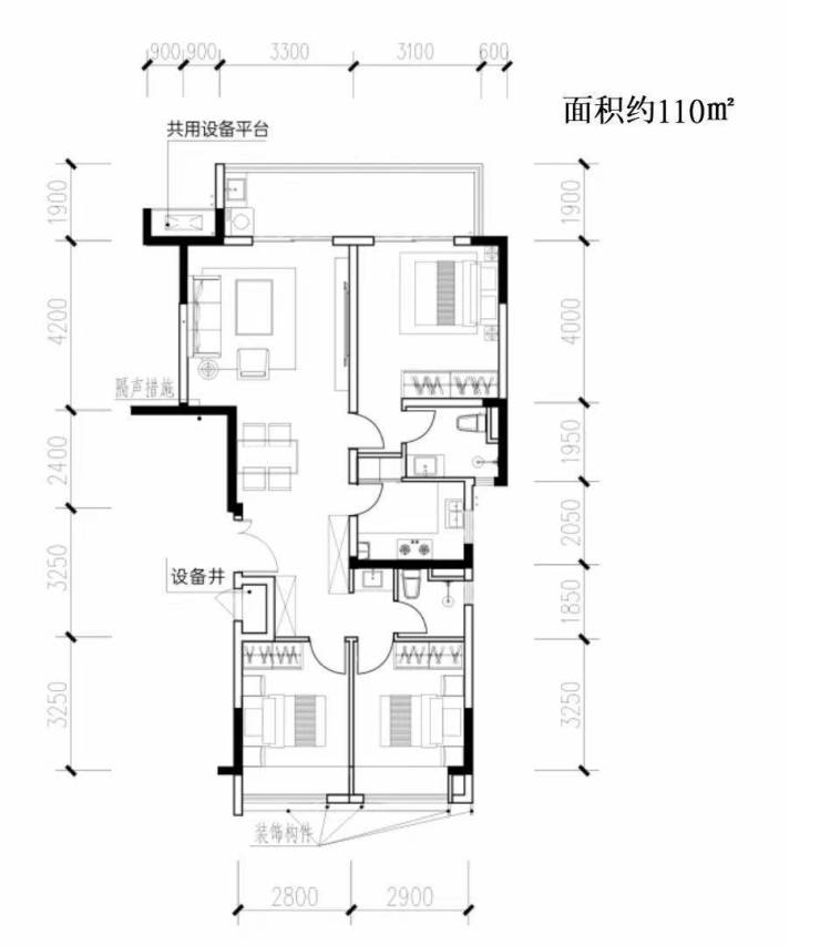
•总占地700亩 /二期占地64亩/三期占地74亩

•项目区位:金牛区北部新城-地铁5#幸福桥站

•总层高:二期12-17F(一楼4.5米架空层无住宅)三期9-17F

•容积率:2.0

•绿化率:二期52% 三期35%

•梯户比:二期2T2 三期 1T2户2T3户

•物业费:3.8元

•停车位:二期1:1.6三期1:1.2

•交房时间:二期2024.8月三期2025.10月

•总户数:二期624户三期503户

•交付标准:清水洋房型:

幸福桥TOD·幸福拾光

【营销中心】:028-62585717「销售热线」

【置业顾问】:13518186441「微信同步」

【置业顾问】:13668208612「微信同步」

免责声明:

以上内容仅作为邀约邀请,涉及的图片为部分区域实拍图和美学畅想图,具体内容请以现场公示和合同约定为准;本文部分资料、部分图片来源于网络,如有侵权请联系我们删除

全部
报名成功
稍后会有专业的置业顾问联系您
返回楼盘

频道导航

返回首页

看房小程序

APP下载

电话拨通后,请您手动拨打分机号

确定拨打电话

电话号码:

分机号:(可能需要拨分机号)