三亚【海棠颐和府】 楼盘详情+地理位置+周边设施如下

搜狐焦点三亚

2025-11-04 21:38:00

购房群

买房如何避坑,加入购房群,看看他们怎么说

立即进群

敬献25位全球领军人物

售楼咨询/预约专线: 17336960626

✔添加房侦探微信 focussanya ,即可加入海南楼市交流群。

对购房者提供买房交流,购房咨询,解答房产政策,分享海南房价相关信息等,无论任何购房信息,我们将有专业客服即时解答。

17336960626

【基础信息】

占地面积:83710㎡

建筑面积:59357.81㎡

容 积 率:0.4

总 户 数:25户

产权年限:40年

停车位:206个(包含酒店停车位)

绿 地 率:50.8%

建筑密度:18.6%

产品户型:204/330/447㎡独栋别墅

开发商:三亚亿隆置业有限公司

【项目效果图】

【海南——全球最大自由贸易港】

定位起点国内罕有,开放形态对标国际超一流水平,全岛零关税、低税率、简税制,税率利好政策比香港、新加坡更胜一筹

三亚“一心两翼”的规划中,东翼海棠湾重点发展旅游度假与主题旅游消费、搭建国际文化交流合作平台和医疗康养与国际游艇产业聚集区。

【国家海岸海棠湾,世界度假天堂】

26公里长的海岸线,14公里长的原生态内河水系,拥有比肩世界著名滨海旅游度假区的优越资源

国际顶级品牌滨海酒店:一线规划建设32家以上高端度假酒店,二三线建设约70家各类主题精品度假酒店,建成世界上最集中的高端度假酒店湾区,如亚特兰蒂斯、红树林、艾迪逊、天房洲际、万丽、嘉佩乐等

世界级的旅游休闲胜地:国际免税城、海昌梦幻不夜城、亚特兰蒂斯水上乐园、超级万象城、太古里、宽窄巷子、Hello Kitty主题公园、蜈支洲岛海岛乐园等

国家级医疗及健身疗养基地:解放军总医院海南分院(301医院)、国际养生社区、国际康体机构为载体,配合高尔夫、温泉疗养等养生配套设施,形成疗养、休闲、康体一体化的养生湾区

【路网发达,方便快捷】

👉项目距离海南环岛高速入口约6.8公里

👉项目距离海棠湾免税店约9.4公里

👉项目距离亚龙湾动车站约17公里

👉项目距离三亚凤凰国际机场约40公里

【项目区位图】

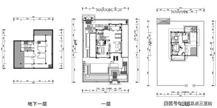
【户型鉴赏】

B户型品鉴

地上面积204.85㎡,庭院净面积403-810㎡,占地面积0.8-1.4亩

D户型品鉴

地上面积330.99㎡,庭院净面积767-1826㎡,占地面积1.1-3亩

E户型品鉴

地上面积447.03㎡,庭院净面积564-1051㎡,占地面积1.24-1.97亩

【十大价值优势】

1.北纬18°世界黄金度假带,海棠湾拥有约22公里黄金海岸线,年均气温约26℃,常年无冬,空气负氧离子含量及空气质量高,是宜居宜游的国际性滨海度假天堂

2.海棠湾规划“一线、五楔、九片区、三统筹”,坐拥千亿级的娱乐、休闲、康养、购物、教育等资源配套

3.海棠南路与江林路交叉口,海棠湾 A01 地块,一线临海,紧邻301医院

4.南侧市政公园为邻,推窗即享鲜氧绿意,让别墅超越居住,成为传承型生态藏品

5.容积率仅0.4,超低密纯独栋,三面环景庭院

6.超高使用空间,三代同堂的独栋王国

7.独栋无对视设计,20多米楼间距保障,居家生活零干扰

8.地下双天井,采光无忧,通风防潮,空间灵动

9.接驳温德姆至尊酒店资源,享五星级管家服务+私密度假体验,资产与生活双增值

10.仅25席专属,配套五星级酒店资源,每一栋都是不可再生的资产孤品

房侦探团队深耕海南房市多年,具有丰富的房产经验,具备房产专业知识,熟悉海南各大楼盘;深入了解房市政策、贷款方式、落户资格等。精准推荐优质房源,一对一带看,周到服务,为您带来专属的购房体验。我的服务宗旨是:用真挚的诚意,专业的服务,优质的房源,让每一位客户都拥有一个满意的家。

售楼咨询/预约专线: 17336960626

✔添加房侦探微信 focussanya ,即可加入海南楼市交流群。

对购房者提供买房交流,购房咨询,解答房产政策,分享海南房价相关信息等,无论任何购房信息,我们将有专业客服即时解答。

免责声明:本资料仅供参考形象宣传,房屋具体位置,坐落方向,根据规划有一定差别,以客户选定和实际交付标准为准。户型图是对户型结构功能布局的示意,所标尺寸仅供客户参考,不作为交付标准,实际交付标准以买卖双方签订的合同及其附图约定为准。本文章所用图片来源于网络,如有侵权请联系本网站删除!

全部

相关资讯

报名成功
稍后会有专业的置业顾问联系您
返回楼盘

频道导航

返回首页

看房小程序

APP下载

电话拨通后,请您手动拨打分机号

确定拨打电话

电话号码:

分机号:(可能需要拨分机号)