楼盘详情
户型信息
售罄
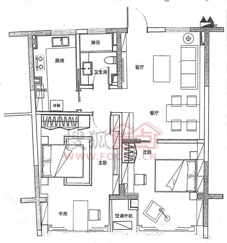
2室2厅1卫-B
售罄
213万/套 建面97m²
售罄
0室-10F
售罄
待定 建面待定
售罄
1室2厅1卫-C
售罄
106万/套 建面48m²
售罄
1室1厅1卫-A
售罄
139万/套 建面63m²
售罄
2室1厅1卫-2室
售罄
待定 建面90m²
售罄
5室3厅3卫-E
售罄
660万/套 建面300m²
咨询户型优惠
购房群
买房如何避坑,来看看他们怎么说?
立即报名
基本信息
了解更多详细信息
楼盘名称
原公馆
建筑类型
高层,板楼,塔楼
开发商
上海莘闵荣顺房地产开发有限公司
开盘时间
2012年10月08日
开盘提醒
交房时间
2013年10月
售楼电话
4006168802-113104
楼盘地址
闵行 都市路777弄(颛桥镇放鹤路以南)
装修状况
精装修
装修标准
暂无数据
物业类型
公寓,酒店式公寓
物业费
2.60元/平方米.月
物业公司
暂无数据
产权年限
70年
交通信息
轨道交通
暂无数据
公交路线
轨交:5号线北桥站
虹桥枢纽5路:北桥站
虹桥枢纽4路:北桥站
816路:北桥站
交通方式
沿都市路向南,行驶约1公里;左转沿都市路向东南,行驶约4公里;右转沿金塔路向西,行驶359米,到达终点。
规划信息
了解更多周边信息
占地面积
190000平方米
建筑面积
115691平方米
容积率
0.6
绿化率
35.9%
停车位
原公馆车位配比1:1.12,共828个
楼栋总数
暂无数据
总户数
暂无数据
周边配套
购物:北桥菜场、好又多、农工商超市、老闵行商圈、欧尚大卖场、永乐家电、金海马家具店、东川路商业街,千代广场、好爱广场、乐购
医疗:上虹大药房、宠物诊所等
餐饮:肯德基、上岛咖啡、海鲜酒楼、多家美食餐馆
内部配套
暂无数据
供暖方式
暂无数据
楼盘简介
原公馆是万顺水原墅3期产品
项目特色:1.完善的商业配套:项目本身1.8万的商业配套有美食、休闲娱乐、卖场、会所于一体。威尔士会所,室内恒温游泳池、大师杯室内网球场、休闲配套一应齐全。
2.别墅社区里的公寓:别墅区里少量的公寓房,公寓别墅直接贯通,纯自然的活水水系、贴近自然、回归自然的景观环境、共享别墅资源。
3.高起点:项目座落鑫都--------新干线别墅区,都市路是闵行区政府统一规划的一条别墅区。
4.70年产权精装小户型、总价底。
5、轨交房:项目600米距离就是5号线北桥站
6.保利皇都物业管理,为业主提供管家式服务、酒店式管理。具有70年历史的国际“金钥匙”服务标准
开发商:上海莘闵荣顺房地产开发有限公司
物业管理公司:保利皇都物业管理有限公司
建筑单位:上海广厦建筑集团
代理商:顺开投资咨询管理公司
景观设计单位:(株)日本综合计画研究所
购房群
买房如何避坑,来看看他们怎么说?
售罄
2室2厅1卫-B
建面97m²
213万/套
售罄
售罄
0室-10F
建面待定
待定
售罄
售罄
1室2厅1卫-C
建面48m²
106万/套
售罄
售罄
1室1厅1卫-A
建面63m²
139万/套
售罄
售罄
2室1厅1卫-2室
建面90m²
待定
售罄
售罄
5室3厅3卫-E
建面300m²
660万/套
售罄
效果图(65)

































































实景图(1)

样板间(12)












交通图(3)



周边配套图(5)





施工进度图(1)

























































































