购房群
买房如何避坑,来看看他们怎么说?
立即报名
基本信息
了解更多详细信息
楼盘名称
凯璟双筑
建筑类型
暂无数据
开发商
暂无数据
开盘时间
待定
开盘提醒
交房时间
待定
售楼电话
4006168802-436031
楼盘地址
金平 东厦路与飞厦西路交界处
装修状况
暂无数据
装修标准
暂无数据
物业类型
普通住宅,临街商铺
物业费
暂无数据
物业公司
暂无数据
产权年限
暂无数据
销售信息
销售状态
在售
售楼地址
东厦路与飞厦西路交界处
预售许可证
暂无数据
交通信息
轨道交通
暂无数据
公交路线
暂无数据
交通方式
暂无数据
规划信息
了解更多周边信息
占地面积
0平方米
建筑面积
0平方米
容积率
暂无数据
绿化率
0%
停车位
暂无数据
楼栋总数
暂无数据
总户数
暂无数据
周边配套
暂无数据
内部配套
暂无数据
供暖方式
暂无数据
楼盘简介
暂无数据
效果图(1)

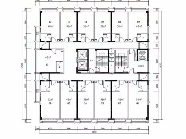
楼层平面图(1)

周边配套图(1)




