楼盘详情
楼盘名称
蔚来一英里
销售状态
售罄
开盘时间
2021年03月20日
开盘提醒
开发商
石家庄市汇瑞房地产开发有限公司
4006168802 转 422689
隐藏真实号码安全通话,致电了解更多信息
购房群
买房如何避坑,来看看他们怎么说?
立即报名
基本信息
了解更多详细信息
楼盘名称
蔚来一英里
建筑类型
高层
开发商
石家庄市汇瑞房地产开发有限公司
开盘时间
2021年03月20日
开盘提醒
交房时间
预计2023年03月31日
售楼电话
4006168802-422689
楼盘地址
长安 光华路与电厂街交口西北角
装修状况
毛坯
装修标准
暂无数据
物业类型
商务公寓,商办楼
物业费
2.60元/平方米.月
物业公司
待定
产权年限
40年
销售信息
交通信息
轨道交通
轨道交通2号线建和桥站
公交路线
102路
交通方式
毗邻2号、5号线地铁(规划中)线,体育大街、建设大街、和平路……四横六纵立体路网一站尽享,机场、火车站畅通无阻,拯救各种急脾气,生活工作快人一步。
规划信息
了解更多周边信息
占地面积
8159.81平方米
建筑面积
58889.02平方米
容积率
5.06
绿化率
20%
停车位
地下车位数330
楼栋总数
1
总户数
暂无数据
周边配套
生活配套:中心线商业街、北国商城、先天下购物中心
教育配套:布朗幼儿园、东方启慧幼儿园、育才小学、和平路小学
医疗配套:省四院、省中医院、同济医院
金融配套:华夏银行、民生银行、交通银行、工商银行……
休闲娱乐配套: 长安公园、省博物馆、省图书馆
内部配套
自建4层商业
供暖方式
民水 、民电
市政地暖
楼盘简介
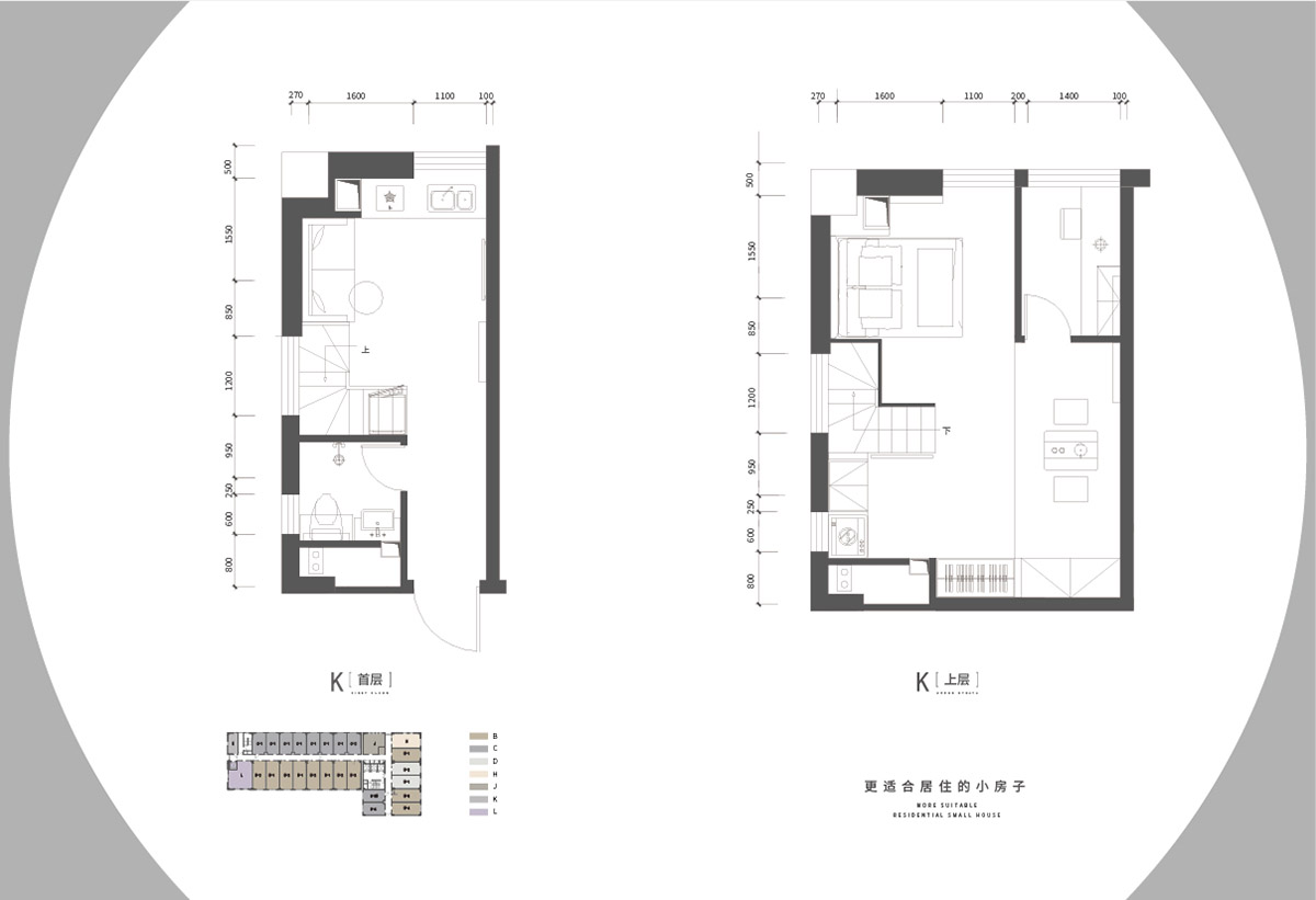
蔚来一英里位于光华路与电厂街交口西北角,一环旁的小房子,套价低,压力小;建面约30-80㎡,4.5米层高,百变空间,自由切换;民水民电,天然气入户,集中供暖,纯粹居住体验;约1000㎡空中花园,酒足饭饱浪漫夜跑,;1.3万㎡社区商业,下楼即享。
效果图(6)






实景图(7)







样板间(5)





交通图(1)

周边配套图(8)








施工进度图(4)



































