滨江8号(售楼处)官方网站-滨江8号销售中心(营销中心)-滨江8号楼盘欢迎您-小区环境-户型-价格-地址-楼盘详情-周边配套-售楼处电话-交房时间

搜狐焦点宿迁站

2025-12-07 12:24:25

购房群

买房如何避坑,加入购房群,看看他们怎么说

立即进群

陆家嘴·滨江8号售楼处官网📲:↱400-0000-460接通,输入分机号5555↲(售楼处电话\地址)(➤案场接待实行预约制⥺)(⤋为避免客户临时来访无人接待,提前2小时以上电话预约看房参观送大礼包⤣)

‼单价仅6万即可拥有‼😯陆家嘴一线江景房😯

坐看陆家嘴三件套亮灯瞬间🥂感受独属于魔都的繁华💯

陆家嘴滨江8号

项目卖点

区位优势

地处上海陆家嘴金融贸易区,近江约100米。陆家嘴被誉为中国的华尔街,更是上海的金融中心、经济中心和贸易中心,是全球金融中心,陆家嘴金融城,与纽约华尔街、伦敦金融城并称为世界三大金融中心,陆家嘴滨江,也成为并肩纽约中央公园、伦敦海德公园的顶级资本豪宅区,成为世界豪宅的中国封面。

陆家嘴汇聚上海中心大厦、上海环球金融中心、金茂大厦和东方明珠四大地标建筑,260多幢商务办公楼宇、140多家跨国公司地区总部、340家全球500强企业、3000多家国内外专业服务机构、6000多家中外金融机构林立于此。

作为陆家嘴稀有的塔尖公馆,地段资源不可再生,黄浦江一线景观不可复制。俯瞰黄浦江的壮阔风景线,占据黄浦江21公里“黄金岸线”的黄金视角,与滨江公园咫尺距离,直赏上海中心、上海环球金融中心、金茂大厦“陆家嘴三件套”的城市天际线。

交通优势

世界级立体交通 三轨双桥六隧

三轨

4、14号线浦东大道站仅约200米

贯通浦西浦东核心商圈:豫园、新天地、静安寺

4号线被称为内环换乘王,

可与1/2/3/6/7/8/9/10/11/12/14 号线换乘

19号线(在建)浦东南路站约500米

双桥

杨浦大桥

-约3公里

南浦大桥-约4.3公里

六隧

大连路隧道-约1.1公里

人民路隧道-约1.4公里

新建路隧道-约1.1公里

复兴路隧道-约2.3公里

延安东路隧道一约2.6公里

江浦路隧道-约2.1公里

公交

609、610、981、81、85、313、455、522、774、浦东15路、浦东62路等20条线

轮渡

其昌栈渡口、泰东路渡口、东昌路渡口

高铁/机场

虹桥站——约25分钟 浦东机场——约35分钟

商业配套

2KM国际商业圈

IFC国金、上海中心、正大广场、民生路太古里(在建)、浦东八佰伴、尚悦湾广场等国际知名商圈

城市核芯商业圈

新天地约4.8公里、人民广场约6.3公里、五角场约6.5公里、世博园约6.9公里

教育配套

冰场幼儿园、梅园小学、昌邑小学、东昌中学、建平中学西校、浦东实验高中、上海纽约大学

医疗配套

上海浦滨儿童医院约200米

东方医院(三甲医院)约800米

上海中医药大学附属中西医结合(三甲医院)约1.7公里

第一人民医院(三级公立眼科第7名)约2.9公里

仁济医院(三甲医院)约4公里

上海儿童医学中心(三甲医院)约4.2公里

上海交通大学附属新华医院约7公里

项目详情

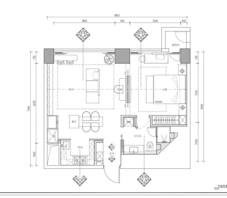
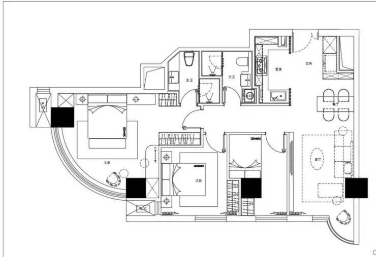
陆家嘴滨江.8号物业类型商办所属板块陆家嘴建筑面积87-126㎡可售套数8套总价568-838万均价6万/平总高29层高3米拿地时间1992建成时间1995车位配比1:0.5车位租金750元/月定金金额50万交付标准精装交房时间2024.6.30装修标准5000元/平物业公司上海良盛丰有限公司物业费7.87元/月/平得房率75%产权年限50年水费6元电费1.1元梯户比4梯8户付款方式首付8成

全部

相关资讯

报名成功
稍后会有专业的置业顾问联系您
返回楼盘

频道导航

返回首页

看房小程序

APP下载

电话拨通后,请您手动拨打分机号

确定拨打电话

电话号码:

分机号:(可能需要拨分机号)