楼盘详情
楼盘名称
望海玥
销售状态
待售
开盘时间
2025年05月
开盘提醒
开发商
深圳招商润德房地产有限公司
深圳市蛇口鱼二实业股份有限公司
4006168802 转 452966
隐藏真实号码安全通话,致电了解更多信息
购房群
买房如何避坑,来看看他们怎么说?
立即报名
基本信息
了解更多详细信息
楼盘名称
望海玥
建筑类型
塔楼,超高层
开发商
深圳招商润德房地产有限公司
深圳市蛇口鱼二实业股份有限公司
开盘时间
2025年05月
开盘提醒
交房时间
待定
售楼电话
4006168802-452966
楼盘地址
南山 广东省深圳市南山区望海玥
装修状况
精装修
装修标准
暂无数据
物业类型
普通住宅,公寓,临街商铺
物业费
7.00元/平方米.月
物业公司
深圳招商物业管理有限公司
产权年限
暂无数据
销售信息
销售状态
待售
售楼地址
广东省深圳市南山区望海玥
预售许可证
暂无数据
交通信息
轨道交通
暂无数据
公交路线
暂无数据
交通方式
暂无数据
规划信息
了解更多周边信息
占地面积
9072.05平方米
建筑面积
65772平方米
容积率
7.25
绿化率
35%
停车位
暂无数据
楼栋总数
2
总户数
936
周边配套
学校:南山外国语学校滨海小学、南山外国语学校滨海学校、太子湾学校、深圳湾南山区蛇口学校、南山外国语学校高级中学;国际学校:南山区蛇口国际学校、曼彻斯通城堡学校
交通:直线距离约200米2号线、13号线(在建)东角头站;周边望海路、后海大道等城市干道汇聚,约22万吨级邮轮母港快速通达香港、澳门
商业:K11 ECOAST(在建中,预计4月底开业)、海上世界、约5万㎡集中式商业(在建中)
医院:南山区妇幼保健院、招商力宝太子湾医院(在建)、南山区蛇口人民医院
公园:约15公里深圳湾滨海长廊、蛇口山音乐公园(规划中)、渔港中心公园(规划中)、南山公园等
内部配套
暂无数据
供暖方式
暂无数据
楼盘简介
望海玥,占位深圳湾板块,地处望海路与湾厦路交会处,直线距离地铁2号线及13号线(在建中)东角头站约200米(数据来源:百度地图,具体以实际为准),品牌央企百年招商匠心打造。
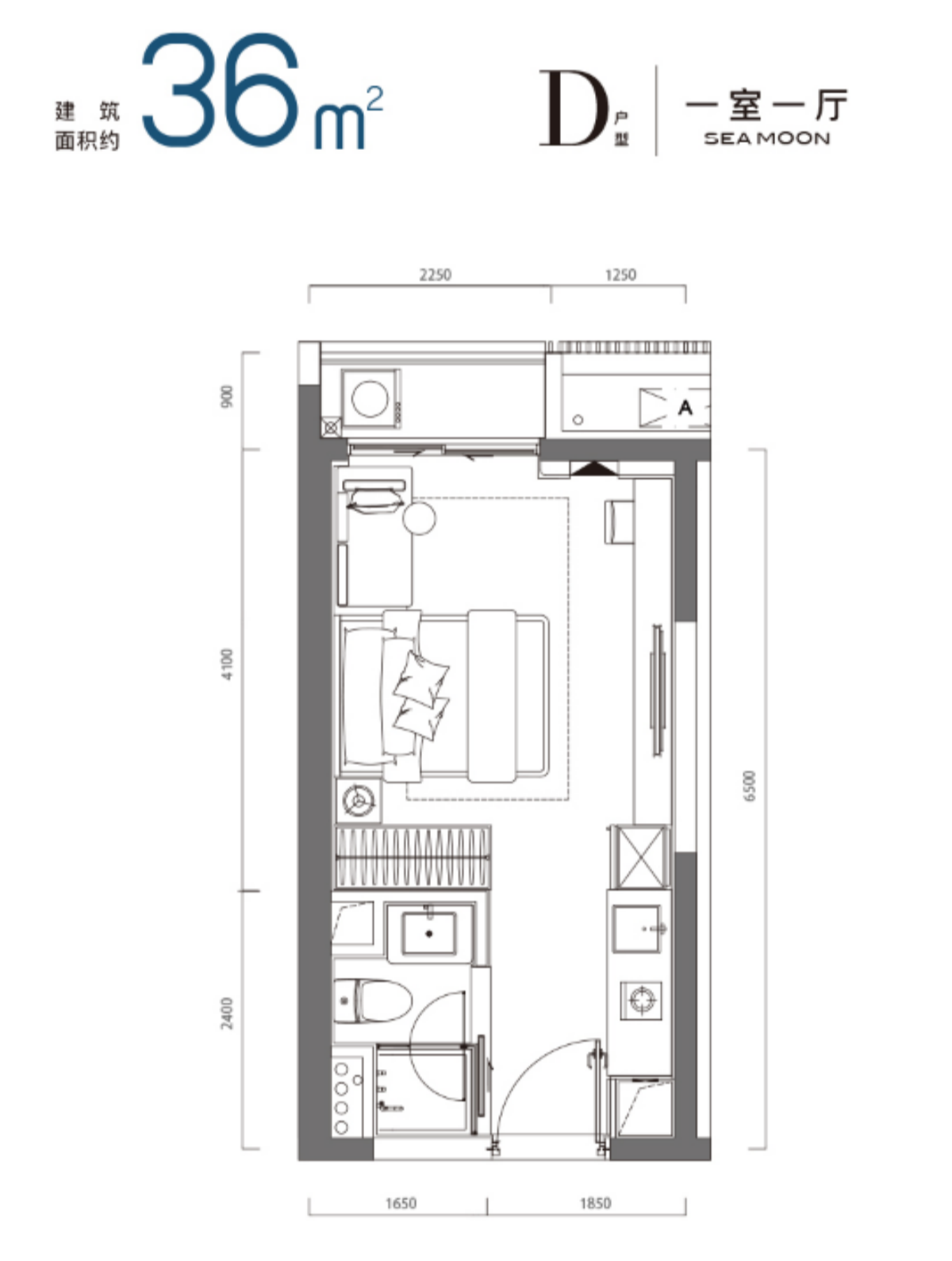
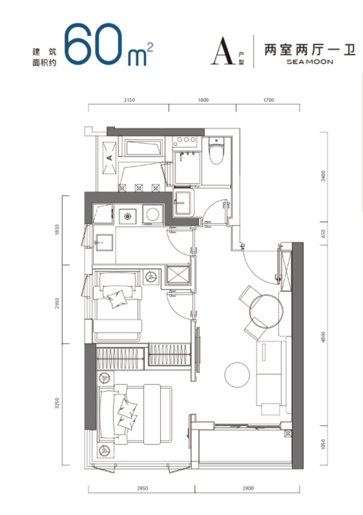
项目总建面约6.9万㎡,规划打造住宅、公寓及商业等多种业态,公寓打造建面约36/44/60㎡1-2房,享受深圳湾海幕景观(部分)。项目坐拥海陆空轨立体交通,一路之隔约15KM深圳湾公园资源集萃,毗邻K11 ECOSAT(在建中,预计4月底开业)、深圳歌剧院(在建中)、海上世界、邮轮母港与渔人码头(改造中),享受深圳湾滨海艺术文化生活圈。
效果图(11)











样板间(13)






































