滨海新区新房装修设计终于完工了!123.4平很美,客厅很抢眼

阳光小兔儿

2021-03-11 14:02:23

购房群

买房如何避坑,加入购房群,看看他们怎么说

立即进群

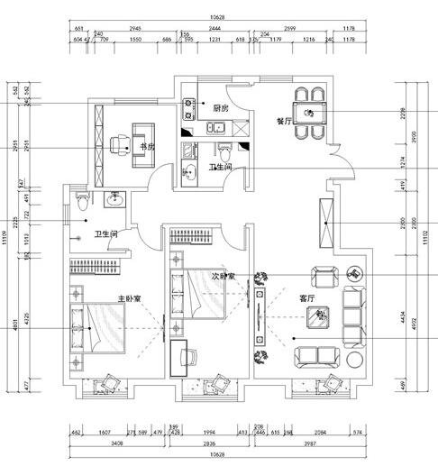
滨海新区的案例,3室2厅1厨2卫 123.4平的户型。户型方正无缺角。功能区域形状方正,采光通风优良。这套房子的装修是现代风格!硬装注重的是黑白灰经典配色,其次软装是香槟米黄和暖色三种。

平面布局图:

效果图鉴赏:

1、客厅:

入户玄关顶面有梁,为了效果做了造型掩盖。地面则是做了波打线,这样玄关细长的地面就避免了区域感和视觉感。

客厅为了达到整体的效果,地面和玄关一样做了波打线,波打线的材质颜色和过门石的材质都要一样,这样整体的效果更突出。客厅的顶面是石膏线圈边,这样整个房间就不会显得那么压抑。

2、餐厅:

餐厨相连,餐厅就在厨房门外,空间通透开阔,使用方便快捷,餐桌椅的选择也是质感十足,瞬间提升了整体格调,L型厨房,节省空间,操作方便。

3、卧室:

卧室整体的设计装饰,都是清新、柔软又放松的氛围,深色强化复合地板,脚感舒适,整体氛围也更稳重踏实。

这样的装修,您喜欢吗?如果您也有关于装修方面的问题需要了解,可以直接留言哦。

全部
报名成功
稍后会有专业的置业顾问联系您
返回楼盘

频道导航

返回首页

看房小程序

APP下载

电话拨通后,请您手动拨打分机号

确定拨打电话

电话号码:

分机号:(可能需要拨分机号)