青岛青铁云上观海🔱 售楼处电话【已认证】✔️:400-116-7720转接999 ✅
🔱营销中心电话【已认证】✔️:400-116-7720转接999✅
💌温馨提示:本项目采用预约制,前来营销中心请提前拨打400热线电话预约,感谢您的配合!

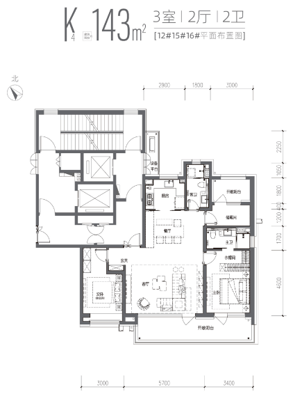
项目采用了无连廊设计,解决了传统连廊带来的不便。143平方米的户型分布在12、15、16号楼的东侧,配备了约8米长的景观阳台,确保了充足的自然光照和开阔的视野。
143平方米户型为精装修交付,布局为三室两厅两卫,采用了经典的三面朝南设计,宽敞的开间与舒适的进深比例,加上约3.15米的层高,营造出空间感极佳的居住环境。宽敞舒适的三居室户型实现“居室内观海,观海中生活”的沉浸式体验。

设计理念:
简雅东方美学
从儒雅含蓄的东方气韵中汲取设计灵感,体现一种宏阔明达的东方式哲学人生。以现代主义链接历史与未来,用新工艺诠释传统文化,部品保留不同材质原本的自然肌理,通过搭配组合,展现其独特的光泽、纹理、触感,让室内空间呈现出自然纯粹的质感。

设计亮点:
空间美学解析
入户
01
“解放双手-智能门锁”
在无钥匙生活时代,即是叠加的保障又是灵活的便捷;面板设计也经过特别考量,造型方正简约,点睛整个户门。
02
“解放双手-入户挂钩”
关怀从入口处便体现出来,在户外安装置物挂钩,方便挂购物袋、手提包等物品。
玄关
01
“智能掌控-智能面板”
一键回家模式,便可一键打开照明,让舒适的室内环境开启从容的居家生活。
02
“灵活可调-柜体层板”
可随意调节层板的玄关柜,高度灵活多变,不同尺寸衣物可以随心置放,同时,常用鞋子和过季鞋子也可分开收纳。
03
“充纳一体-便捷充电”
柜内置物抽屉安置电源插座,充电宝、手机等智能设备到家充电,出门即取,人性化细节,放大居家幸福感。
餐厅
01
“情感无界-社交餐厨”
打破厨房餐厅的界限感,从每个空间的功能之上,探索更深层次的居住享受,不再孤独烹饪,创造与友人、家人相处的欢乐时光。
厨房
01
“超大容量-单槽水盆”
拥有超大容量,可以灵活组合附件使用,操作自由舒适美观。
02
“工学流线-操作台面”
使用抗菌墙面材料,不仅抗油污易清洁,还能有效抑菌,打造防霉抗菌的厨房环境。
03
“灵敏监测-燃气泄漏警报”
可随时监测燃气状况,在室内燃气泄漏超标现象发生时,第一时间警报提示,提高居家安全性能。

客厅
01
“灵活多变-组合照明”
多种光源组合搭配,根据不同的使用需求切换相应的照明模式,明暗张弛有度,防眩目更温和,多种生活场景融合,暖心又舒心。
02
“便捷在侧-点位预留”
多种用电设备条件预留,满足多项生活娱乐需求,体贴入微的考量,让空间更懂你。
03
“大道至简-无主灯照明”
全屋天花无主灯设计,多光源搭配场景化照明,呈现物体本身的美,使空间层次更丰富,营造温馨、柔和的家庭氛围。

主卧
01
“舒适节能-地暖系统”
采用地板供暖方式,供暖管道全部铺设在地板下,整个地板均匀散热,温度合理利用,高效节能又舒适美观。
02
“温度均衡-中央空调”
可配合屋内设计隐蔽安装,不占用室内空间,出风温柔舒适,每个房间都能独立控温,更加节能环保。
03
“消音降噪-静音门锁”
五金件消音技术处理,有效降低门锁开关时的摩擦和碰撞噪音,门扇开关安静舒适,不会惊扰家人酣畅睡眠。
04
“细节守护-隔音封条”
卧室门另配隔音封条,有效隔绝外界噪音,即使窗外车流喧扰,屋内也像乡村般静谧,让每一个梦都完整香甜。

卫生间
01
“健康便捷-智能座便器”
各种人性化细节体验给家人全方位的智能享受,持久恒温、有效清洁,大大减少细菌滋生,只需几个按钮便可坐享其成。
02
“细节考量-盆下收纳”
绕开管道,根据水盆下柜体空间分隔收纳,极尽利用空间,照料每一处生活细节。
03
“空间翻倍-镜柜收纳”
将浴室镜和储物功能二合一,柜内日常洗漱用品都能隐蔽收纳其中,保持台面整洁美观。

青岛青铁云上观海🔱 售楼处电话【已认证】✔️:400-116-7720转接999 ✅
🔱营销中心电话【已认证】✔️:400-116-7720转接999✅
💌温馨提示:本项目采用预约制,前来营销中心请提前拨打400热线电话预约,感谢您的配合!