房屋面积:87㎡
户型:两室一厅一厨一卫
装修方式:半包
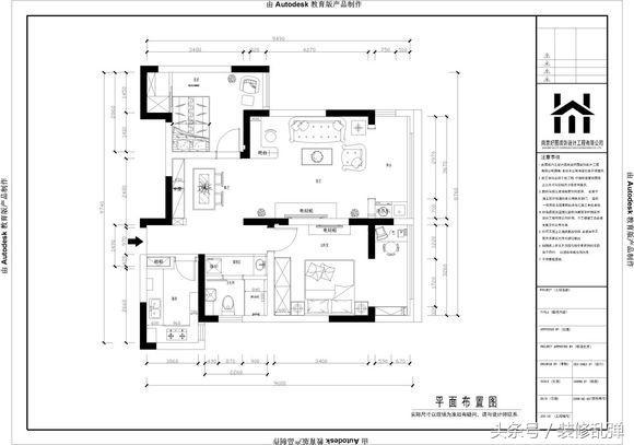
户型图

原有房型经过精心设计改造
增加了飘窗和阳台的利用率,客厅空间更加开阔,充分增加采光纳入景观,
设计风格清新雅致,色调明快,温馨自然
餐厅:
别致的造型门洞加上造型可爱的吊扇灯清新雅致
餐厅设计为卡座形式,充分利用空间,门套造型和墙面装饰增加空间趣味性。

客厅:
客厅采用简洁的走边吊顶
背景墙的石膏线造型,吧台的砖砌墙
不经意间营造出温馨雅致的空间氛围

卧室:
卧室较为素雅 但设计师本着舒适和简单的原则
将颇为复杂具有异样风情的灯具搭配在室内,和谐共融。

卫生间:
卫生间明卫设计
雅洁清新,乐享优越生活
