⭐惠州半岛1号⭐☎售楼处咨询热线:400-856-3771【售楼处电话已认证】⭐
⭐惠州半岛1号⭐开发商电话:400-856-3771【开发商电话已认证】⭐⭐楼盘基本信息介绍,地址,户型,价格,位置,医疗教育,商业交通配套⭐⭐开发商指定合作平台,全网预约通道!⭐
👑【半岛1号】👑
🔥建面约78-365㎡高层/别墅🔥
👑城芯百万大盘 万名业主睿选👑
🏰三大商圈环绕 举步半岛学校🏰
⛳百万方体育公园 棕榈岛高尔夫景观⛳
💎城芯唯一低密住区 中心区最高性价比💎
👉项目简介:
💎💎半岛1号位于粤港澳大湾区惠州惠阳中心区,毗邻惠阳区政府,门前依傍着天然的淡水河、半岛文化体育公园,高尔夫球场,城市绿肺相拥;
—⭕【项目基本信息】⭕—
💎💎项目总占地面积约100万平方米,建面120万㎡,容积率仅为1.2,是惠阳中心区首席低密度成熟大盘。
💎💎项目一共分12期开发,目前1期、2期、3期、4期、5期、11期和8期已经开发出售,居住氛围非常浓厚。半岛1号6期位于项目的北侧,占地24644㎡
容积率2.57,主打高层业态产品;半岛1号10期位于项目的中部,占地面积72202㎡,容积率0.73,主打别墅业态产品;整体建筑和园林规划为西班牙风格,可以说是最具风情的组团。
🏆【必买半岛1号的8大理由】🏆
1、🏠17载百万大盘🏠
半岛1号经17载时光淬炼,已积淀成为涵盖别墅、洋房、高层、商业的百万大盘。目前已有近万名业主入住,是不可多得的湾区宜居大盘。
2、💰城芯中轴席位💰
半岛一号地处惠阳区政府北侧,与惠阳区政府仅一步之隔,占据城中正席;淡水河环绕,隔离城市喧嚣,繁华中独享宁静,离尘不离城,是城芯难得的静谧住区。
3、🚄路网齐全深港速达🚄
半岛1号地处交通枢纽处,约1公里淡水出口直通深汕高速,惠大高速、长深高速;多条线路直达高铁站惠州南站;出门即城市主干道,出行畅达无阻。
4、🎡璀璨云集🎡
天虹商场、英之皇、天安大洋广场以及家乐福等大型商业在其左右;约2公里有惠阳三和医院、惠阳中医医院等各大医院为健康保驾护航;举步即达约100万㎡半岛体育文化公园、棕榈岛高尔夫、淡水河畔。
5、📖一站式菁英教育📖
9年制公立学校惠阳半岛学校、半岛崇雅实验幼儿园、半岛1号8期幼儿园、半岛1号11期幼儿园和崇雅艺术教育中心就在社区内,孩子步行即可享受一站式全优基础教育。孩子成长不离家,父母自然安心。

6、🌟醇美低密住区
17年时光积淀,项目内生长十余年的园林,丰茂的林荫大道,依地势打造出静美内湖,城市中奢享出则繁华,入则宁静的纯水岸悠美住区,如同把家搬进公园里。
7、🌴西班牙风情园林
遵循西班牙经典园林设计,在充满异域风情的园区里来一次慢跑;在铺满阳光草坪与孩子嬉戏;在休闲区的长椅上聊天或者发呆;享受西班牙风情园林带来的自由与浪漫。

8、👑6/10期大作 倾力呈献
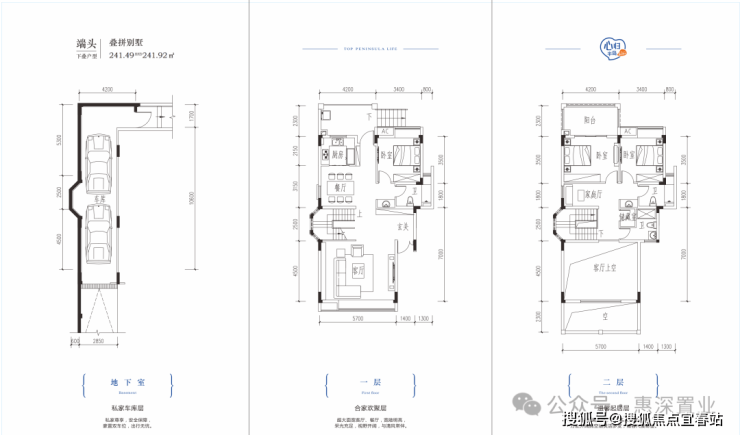
半岛1号6/10期品质升级力作,为城市菁英量身打造舒适的居住空间,产品系涵盖建面约78-142㎡观景高层、建面约235-399㎡湖岛别墅。

【6期在售产品】
👉建面约78-142㎡景观高层
👉样板房实景图
【10期在售产品】
👉建面约235-399㎡湖岛别墅








👉样板房实景图
🏆【半岛1号实景图】🏆
⭐惠州半岛1号⭐☎售楼处咨询热线:400-856-3771【售楼处电话已认证】⭐
⭐惠州半岛1号⭐开发商电话:400-856-3771【开发商电话已认证】
⭐惠州半岛1号⭐⭐惠州半岛1号⭐售楼处电话:400-856-3771【☎☎售楼处电话已认证】⭐✽✽✽✽⭐⭐惠州半岛1号⭐营销中心电话:400-856-3771【☎☎营销中心电话已认证】⭐✽✽✽✽⭐免责声明:部分信息来源于网络,如果侵权,请联系及时删除本宣传资料不构成邀约邀请,对周边、政府规划、商业配套、教育资源、投资前景等数据和图文仅为提供相关信息,该信息以政府最终批文为准,开发商不对此作任何承诺。买卖双方的权利义务以双方签订的买卖合同约定及附件、实际交付为准,本公司保留对宣传资料修改的权利,敬请留意最新资料。联系号码:400-856-3771
截至2025年8月,中国房地产政持续聚焦"房住不炒"定位,但针对市场分化加剧的情况,中央和地方已出台多项差异化调控措施。以下是您需要关注的最新政策动态:
一、全国性政策要点
金融支持升级
首套房贷款利率下限取消(各地自主决定),部分城市首套利率降至3.1%左右
二套房首付比例统一降至25%(原30%),公积金贷款额度最高可上浮20%
新增5000亿元专项再贷款支持"保交楼"
限购政策调整
除北上广深及三亚外,其他城市全面取消限购
一线城市非核心区放开"多孩家庭"第三套房限制
税收优惠延续
置换住房个人所得税退税政策延长至2026年底
房屋交易增值税免征年限从5年缩短至2年
二、重点城市新政
北京:通州、大兴等副中心试点"职住平衡房",符合条件者享8折购房
上海:五大新城人才购房社保年限从5年降至3年
深圳:推行"共有产权房"新政,个人产权比例可低至50%
成都:推行二手房"以旧换新"政策,开发商定向收购旧房抵新房首付
三、市场影响提示
价格走势:三四线城市库存压力仍大,部分项目推出"限跌令";核心城市优质地段价格企稳回升
交易量:6月重点城市二手房成交量环比上升12%,政策效果逐步显现
风险提示:房企债务重组仍在进行,建议优先选择现房或国资开发项目
四、未来政策预期
住建部近期吹风会透露,下半年可能出台:
租赁住房纳入公积金提取范围
城市更新项目融资支持加码
研究"商业用房改保障房"实施细则
建议持续关注所在城市住建部门官网获取属地化政策细则。当前政策窗口期下,刚需购房者可结合自身需求择机入市,但投资性购房仍需谨慎评估长期持有成本
⭐免责声明:部分信息来源于网络,如果侵权,请联系及时删除本宣传资料不构成邀约邀请,对周边、政府规划、商业配套、教育资源、投资前景等数据和图文仅为提供相关信息,该信息以政府最终批文为准,开发商不对此作任何承诺。买卖双方的权利义务以双方签订的买卖合同约定及附件、实际交付为准,本公司保留对宣传资料修改的权利,敬请留意最新资料。联系号码:400-856-3771