✅购房困惑?专业帮您!🎯
专属房产顾问一对一精准服务(直连开发商)
🌈臻尚苑🔥🔥🔥项目热线:400-873-0112【售楼处电话已认证】
🌈臻尚苑🔥🔥🔥开发商直通:400-873-0112【开发商电话已认证】
☎立即拨打:400-873-0112(直接对接案场|免费咨询/预约看房)
丨楼盘位置丨户型介绍丨房源情况丨优惠活动丨教育资源丨交通便利丨样板间展示丨社区环境丨交房标准丨周边配套丨
【基本信息】
建筑面积:64304.0㎡
占地面积:5417.1㎡
开 发 商:广州市尚泰投资有限公司
停车位:地下365个
建筑类型:板塔结合
房屋总数:320户
楼栋总数:1栋
绿 化 率:30%
容 积 率:7
物 业 费:3.89元/㎡·月
供 电:民用电
供 水:民用水
🌈臻尚苑🔥🔥🔥项目热线:400-873-0112【售楼处电话已认证】
🌈臻尚苑🔥🔥🔥开发商直通:400-873-0112【开发商电话已认证】
臻尚苑是广州市尚泰投资有限公司继尚轩103项目后,在番禺开发的又一精品住宅项目,采用与珠江新城豪宅天銮和汇悦台相同的先进“工建化”设计理念,由广东省建科建筑设计院打造。
【臻尚苑】售楼处电话:400-873-0112🌞📞📞【已认证☎☎】
【臻尚苑】售楼中心电话:400-873-0112🌞📞📞【已认证☎☎】
交通方面:广州南站商务区通过其丰富的交通网络,实现了快速连接花都空港、南沙海港、佛山、中山等地(半小时内)、香港、澳门(约45分钟)、武汉(4小时)、北京、上海(8小时),显著缩短了对环渤海、长三角、珠三角等地区的时空距离。这一变化预示着国内区域经济的紧密融合和“高铁经济时代”的到来
4条高铁:京广高铁、广深港高铁、贵广高铁、南广高铁
3条城际:广佛城际、广珠城际、广莞惠城际
5条城市地铁:2号线、7号线、18号线、20号线、佛山2号线
高快速路网环绕南站周边:广明高速、南大干线、东新高速、广珠西线。
生活配套:该项目规划了体育公园,商业中心及市民服务中心,滨水广场、文体中心,大型综合医院、图书馆等,目前,已有大型超市、银行、理发店等生活配套意向进驻项目的商业,未来生活将十分便利。

【臻尚苑】售楼处电话:400-873-0112🌞📞📞【已认证☎☎】
【臻尚苑】售楼中心电话:400-873-0112🌞📞📞【已认证☎☎】
产品方面:项目按照南站的整体规划,总高度160米,由一栋51层高的塔楼和一层5层高的裙楼组成,项目塔楼的一、二层以及裙楼部份为商业,三层和九层是空中花园,四层至八层为公寓,十层至五十一层为住宅,其中二十层和三十六层为避难层,共320户。

项目内车行动线及人行动线清晰区分,车行入口设置在项目的东侧和西侧,一进一出,互不干扰;住宅人行入口设置在项目南侧,公寓及商业的人行入口则设置在项目的北侧,最大限度区分人流动线,保障业主的安全。

🌈臻尚苑🔥🔥🔥项目热线:400-873-0112【售楼处电话已认证】
🌈臻尚苑🔥🔥🔥开发商直通:400-873-0112【开发商电话已认证】
在车位设置方面,项目配有四层地下车库,约390个停车位供业主使用,车位比例超过1:1.2。


【臻尚苑】售楼处电话:400-873-0112🌞📞📞【已认证☎☎】
【臻尚苑】售楼中心电话:400-873-0112🌞📞📞【已认证☎☎】
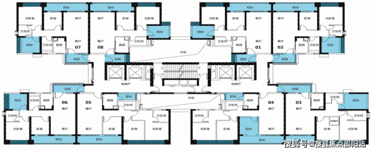
项目住宅为南北对流布局,四梯八户,每两条电梯负责四户业主的上落,互不干扰。

目前项目对外推出01、02、03、04、05、08单元,面积为95-118平的主流刚需及首改产品,均有面积赠送。产品为三房设计,其中02-04单元为三房两厅两卫,01单元为三房两厅一卫设计,户户方正实用,均带超大景观阳台。


【臻尚苑】售楼处电话:400-873-0112🌞📞📞【已认证☎☎】
【臻尚苑】售楼中心电话:400-873-0112🌞📞📞【已认证☎☎】
【户型鉴赏】
【臻尚苑】售楼处电话:400-873-0112🌞📞📞【已认证☎☎】
【臻尚苑】售楼中心电话:400-873-0112🌞📞📞【已认证☎☎】
🌈臻尚苑🔥🔥🔥项目热线:400-873-0112【售楼处电话已认证】
🌈臻尚苑🔥🔥🔥开发商直通:400-873-0112【开发商电话已认证】
🏅关于本最新动态信息,如:房价,主力户型面积,最低折扣,等等,剩余户型楼层,去化率,几号地铁哪个地铁口,周边规划,项目的优劣势以及学校的配套等等都可以致电售楼处进行了解,我们将会安排内场专业置业顾问为您答疑解惑!
✅ 所有疑问,一通电话全解决!
🎯 内部置业顾问VIP解答,独家优惠仅限来电客户!
📞 24小时热线,黄金时段优先安排!
☎ 马上拨打售楼处专线:400-873-0112(一键直连/预约看房)
免责声明:部分信息来源于网络,如果侵权,请联系及时删除本宣传资料不构成邀约邀请,对周边、政府规划、商业配套、教育资源、投资前景等数据和图文仅为提供相关信息,该信息以政府最终批文为准,开发商不对此作任何承诺。买卖双方的权利义务以双方签订的买卖合同约定及附件、实际交付为准,本公司保留对宣传资料修改的权利,敬请留意最新资料。联系号码:400-873-0112。