☑️☑️海玥黄浦源售楼处电话:400-8377-020☑️☑️ 海玥黄浦源
小区介绍
海玥黄浦源是上海黄浦核心的顶豪标杆,由上海城建置业(上海建工关联企业)倾力打造。项目占位人民广场板块,紧邻苏州河,坐拥 “一江一河” 稀缺滨水资源与成熟城央配套。
☑️☑️海玥黄浦源售楼处电话:400-8377-020☑️☑️
总建面约 18.6 万㎡,容积率低至 2.5-2.8,绿化率最高达 42%,规划高层与别墅产品,主力户型 185-350㎡三至五房,总价 2300 万起。建筑融合现代简约与新古典风格,大面积玻璃幕墙搭配全景落地窗,得房率高达 81%-88%。
周边三轨交环绕,近南京西路等顶级商圈,名校与三甲医院密布。项目保留民国洋房并打造高端会所,配备国家一级资质物业,是高净值人群收藏级置业首选。
项目核心卖点
☑️☑️海玥黄浦源售楼处电话:400-8377-020☑️☑️
上海中心城区,正黄浦核心人民广场板块;
世界级水岸苏河湾,东斯文里在侧,具有广阔发展潜力;
国企建工品质之作,安全可靠;
编辑

☑️☑️海玥黄浦源售楼处电话:400-8377-020☑️☑️
产品信息
均价:25万/㎡;
容积率:约1.3;
总户数:149户;
层数:地上3层,地下2层;
层高:1楼3.6米,2-3楼3.4米,地下室挑高5.5米,阁楼最高3.1米;
物业公司:上海建工第一太平戴维斯物业经营有限公司;
物业费:21元/㎡/月;
车位:300个(可售),595个(租赁车位),87个(非建筑投影下车位);
交付时间:2026年年底;
☑️☑️海玥黄浦源售楼处电话:400-8377-020☑️☑️
编辑

☑️☑️海玥黄浦源售楼处电话:400-8377-020☑️☑️
产品户型
建筑面积:约329.42㎡双拼别墅西边套风貌别墅;
附赠面积:花园约150㎡、地下室约25㎡;
实际使用面积:约550㎡;
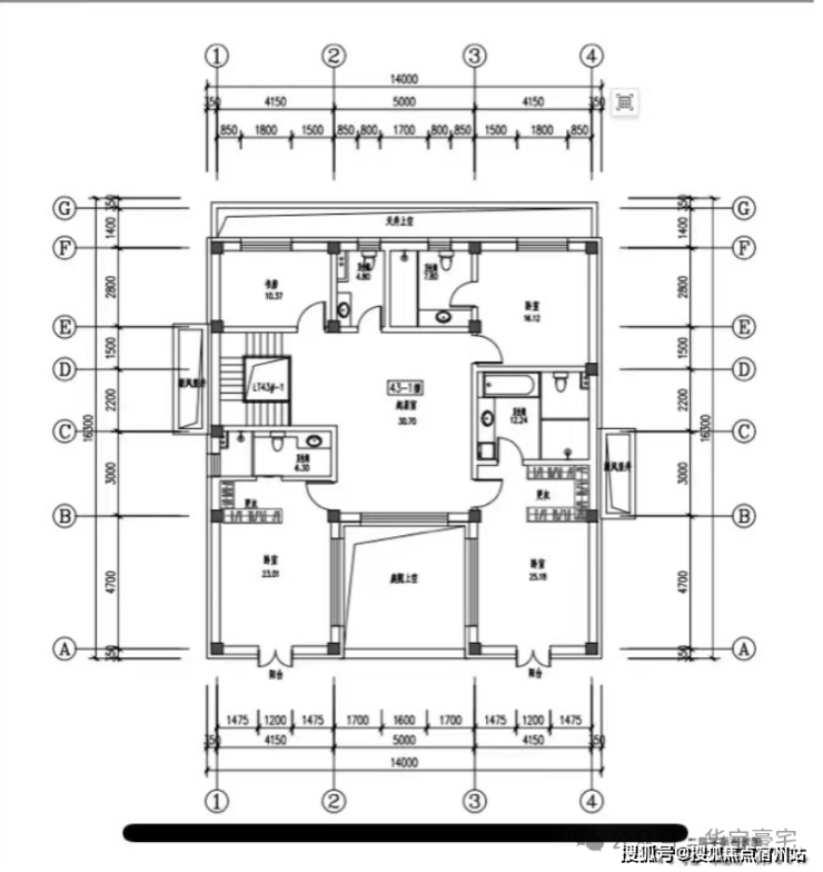
330户型:
编辑

☑️☑️海玥黄浦源售楼处电话:400-8377-020☑️☑️
编辑

☑️☑️海玥黄浦源售楼处电话:400-8377-020☑️☑️
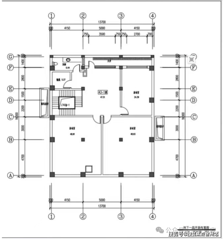
360户型:
编辑

编辑

☑️☑️海玥黄浦源售楼处电话:400-8377-020☑️☑️
380户型:
编辑

☑️☑️海玥黄浦源售楼处电话:400-8377-020☑️☑️
编辑

☑️☑️海玥黄浦源售楼处电话:400-8377-020☑️☑️
编辑

☑️☑️海玥黄浦源售楼处电话:400-8377-020☑️☑️
编辑

☑️☑️海玥黄浦源售楼处电话:400-8377-020☑️☑️
480户型:
编辑

550户型:
编辑

☑️☑️海玥黄浦源售楼处电话:400-8377-020☑️☑️
330㎡样板间实景
编辑

☑️☑️海玥黄浦源售楼处电话:400-8377-020☑️☑️
编辑

☑️☑️海玥黄浦源售楼处电话:400-8377-020☑️☑️
编辑

编辑

☑️☑️海玥黄浦源售楼处电话:400-8377-020☑️☑️
编辑

☑️☑️海玥黄浦源售楼处电话:400-8377-020☑️☑️
编辑

编辑

☑️☑️海玥黄浦源售楼处电话:400-8377-020☑️☑️
项目周边介绍
【顶尖区位】
海玥黄浦源地处上海坐标原点,绝对中心的黄浦人民广场板块,“一江一河”世界级规划的苏州河畔,下一个“新天地”——东斯文里在侧,潜力无限。
编辑

☑️☑️海玥黄浦源售楼处电话:400-8377-020☑️☑️
【完善配套】
项目所在人民广场商圈为中心,南至新天地,西至南京西路项目所在人民广场商圈为中心,南至新天地,西至南京西路梅恒泰商圈,静安寺商圈,淮海路商圈,东至外滩,开车5-10分钟可达。
编辑

☑️☑️海玥黄浦源售楼处电话:400-8377-020☑️☑️
【便捷交通】
轨交:地铁1、2、4、8、13号线 | 距离1号线新闸路地铁口约200米 | 距离13号线自然博物馆站约500米;
快速交通:南北高架、延安路高架、南浦大桥、卢浦大桥、复兴路隧道、西藏南路隧道;
编辑

☑️☑️海玥黄浦源售楼处电话:400-8377-020☑️☑️
编辑

☑️☑️海玥黄浦源售楼处电话:400-8377-020☑️☑️
诚邀品鉴!
·——↖↖ 关注我们,获得更多好房信息——·
9月2日的上海高端住宅市场,因海玥黄浦源的一场创新发布会而焕发出别样活力。
当地产界首部墅享家主题微电影《上海色味》的镜头在众人眼前流转,当四大实景样板间同步揭开神秘面纱,一场关于风貌别墅的革新正式启幕——
海玥黄浦源不仅以“微电影+实景样板间” 的组合拳打破行业常规,更用极具感染力的内容,将墅居生活从冰冷的户型图、效果图中解放出来,让“生活”本身成为高端住宅的核心主角,或也将引领地产营销正式从“空间时代”迈向“生活时代”。
☑️☑️海玥黄浦源售楼处电话:400-8377-020☑️☑️
均价14.56W【海玥黄浦源】面积195-237-277-400㎡精装现房 直接可定!丨附一房一价表、线上预约看房!
置房经验论已关注
分享点赞在看已同步到看一看写下你的评论
视频详情
那在微电影、在墅居具象化的背后,是海玥黄浦源风貌别墅销售的高歌猛进,在2025年 上半年,它劲销33套,一举夺得上海风貌界销冠。
这或许是大家难得看到风貌与热销挂钩。
而在我看来,此次 热销的含金量 比其它红盘来得更高。
编辑

☑️☑️海玥黄浦源售楼处电话:400-8377-020☑️☑️
一方面,大部分风貌上半年销售成绩是“个位数”或“十几套”,海玥黄浦源一枝独秀,足见高净值人群对于项目地段、产品、预期的高度认可;
另一方面,项目 成交总价基本自6000万起步,亿元级成交亦屡见不鲜,多套成交达到1—1.64亿。在高总价门槛下,依然赢得高净值人群的广泛认可,更显其稀缺价值与圈层共鸣。
我先总结一下海玥黄浦源风貌产品的优势:
1、约1.3容积率,市面难得纯风貌墅区,圈层纯粹, 邻居都是亿级大佬 ;
2、人民广场板块,市中心中的“中心”,且处在张园-东斯文里-海玥黄浦源- 新闸路/厦门路地块这条黄金风貌带上;
3、出门就是静安雕塑公园、自然博物馆,北侧近苏州河,还能走到南京西路,很少有风貌能同时触达水系、休闲资源;☑️☑️海玥黄浦源售楼处电话:400-8377-020☑️☑️
4、已是 准现房,预计今年交房,基本所见即所得,占用资金成本少;
5、 风貌庭院特殊设计 ,且 拥有风貌别墅中更宽敞的楼间距, 保证私密性;
6、买3层享5层空间,超高附赠;
7、产品建筑形态多样,堪称石库门博物馆;
值得关注的是,项目近期全新推出少量建面约180㎡山海墅产品,采用“外市内里”格局与“上宅下铺”设计,此类产品在当前市场中极为罕见;
更令人惊喜的是,其总价仅约3800万起,给予更多高端购房者入住风貌别墅的机会!
2025年上海风貌界销售TOP1
海玥黄浦源
☑️☑️海玥黄浦源售楼处电话:400-8377-020☑️☑️
在售建面约180-660㎡风貌别墅
风貌180、360、550户型全新样板间开放
编辑

☑️☑️海玥黄浦源售楼处电话:400-8377-020☑️☑️
☑️☑️海玥黄浦源售楼处电话:400-8377-020☑️☑️
编辑

☑️☑️海玥黄浦源售楼处电话:400-8377-020☑️☑️
土拍越狠
市中心风貌越稳
当下上海市中心土地价格的迅猛攀升,本质上是在为海玥黄浦源这类核心风貌住宅“抬升价值天花板”——地价越贵,占据稀缺土地资源的项目,其价值就越凸显!
分享几点:
①、土拍爆红背后:土地价值才是房价的「底层逻辑」
内环土拍价格的持续走高,表面看是房价数字的被动攀升,实则是城市核心土地资源的“价值重估”。
尤其像海玥黄浦源这类风貌别墅,不仅占据着上海中心的稀缺土地,更承载着城市独特的历史风貌与人文价值,其土地属性的不可复制性,让项目在土地价值不断升级的背景下,拥有更稳固的价值支撑。
编辑

☑️☑️海玥黄浦源售楼处电话:400-8377-020☑️☑️
②、2.7亿别墅成交背后:土地占有量决定财富高度
日前,上海一花园别墅以单价约50万/㎡,总价2.7亿元成交,建面约535㎡,独占约1.5亩城市核心土地。
这印证了,土拍越狠,别墅越稳!买别墅才是「与土地共生」,是穿越市场周期的终极答案。
编辑

☑️☑️海玥黄浦源售楼处电话:400-8377-020☑️☑️
③、黄浦高层冲破20万/㎡,徐汇风貌地王楼板价破20万/㎡,市中心风貌越来越值钱!
新的房价格局下,黄浦高层已捅破20万/㎡,徐汇更是拍出全国单价地王,预计建造风貌,楼板价已经20+万/㎡。
事实上,风貌和高层之间有一个近似的定价比例,大概是1.5倍溢价。
那按照黄浦高层20万/㎡算,市中心风貌至少值30万/㎡,且随着地价越来越高,它愈值钱!
编辑

☑️☑️海玥黄浦源售楼处电话:400-8377-020☑️☑️
因为风貌供应总量先天“锁死”,它本身是稀缺的!
风貌住宅不是随便一块宅地都能开发的,必须在具有历史价值的地块上才能打造, 它主要来源成片二级以下旧里旧改,截止2022年基本结束。
示意图仅供参考,数据来源公众号上海发布
编辑

☑️☑️海玥黄浦源售楼处电话:400-8377-020☑️☑️
二级旧里普遍建于1920-1950年, 历经近百年才有这么一次城市更新,也就近期有阶段性供应,往后大概率无增量。
何况是像海玥黄浦源这样的风貌,不仅在市中心,更是处在上海更具价值的黄金风貌带上。
从已成熟的张园、丰盛里,到即将开发的东斯文里,再到即将交房的海玥黄浦源风貌,再到待开发的新闸路/厦门路地块, 一路上都是风貌,这些风貌建筑串联起的是一条连贯的城市文脉, 更悄然确立一个亿级TOP级圈层,进一步放大了项目的稀缺价值。
编辑

☑️☑️海玥黄浦源售楼处电话:400-8377-020☑️☑️
☑️☑️海玥黄浦源售楼处电话:400-8377-020☑️☑️
编辑

☑️☑️海玥黄浦源售楼处电话:400-8377-020☑️☑️
产品力解码:
纯风貌墅区+超高附赠+强私密性
再看产品:
首先,在海玥黄浦源的一众产品中,180山海墅堪称风貌界的稀缺孤品,其 “外市内里,上宅下铺”的独特形制,让商业空间和住宅空间相互融合,在当前市场中难寻第二个。
更难得的是,在核心风貌产品里, 180户型极为少见,而3800万起的总价,也给予更多购房者拿下市中心头部风貌的机会!
从空间形制来看,180山海墅完美复刻了老上海“前店后院”的经典格局,实现了 “门外烟火、门内静谧”的理想生活场景。☑️☑️海玥黄浦源售楼处电话:400-8377-020☑️☑️
推门而出,即是充满艺术潮流气息的山海食光街区,高级烟火气触手可及;推门而入,瞬间切换至独属自己的私密天地,这种“入世”与“避世”的无缝衔接,在整个风貌产品领域都堪称稀缺。
室内空间的分层设计,更将居住舒适度拉满。地上三层规划清晰,满足多代同堂的居住需求:
一楼采用LDK通厅设计,直面街区景致,保留了与烟火气的亲近感,临街空间可以是花艺工作室、精品买手店或小而美的咖啡店,日常下楼采购后也能直接归家; 对于有的业主更都能实现“工作+生活”的无缝融合,外面经营,转身就回家。
编辑

☑️☑️海玥黄浦源售楼处电话:400-8377-020☑️☑️
编辑

☑️☑️海玥黄浦源售楼处电话:400-8377-020☑️☑️
样板间实景图
二楼可作为子女的独立居住层,保障年轻人的生活隐私;
编辑

☑️☑️海玥黄浦源售楼处电话:400-8377-020☑️☑️
样板间实景图
三楼则是整层主卧套房,为业主打造专属的休憩奢享区。
编辑

☑️☑️海玥黄浦源售楼处电话:400-8377-020☑️☑️
样板间实景图
而超高挑高的地下室,更是这款产品的“点睛之笔”。其格局方正完整, 利用率远超常规地下室,业主完全可以根据喜好自由规划:摆满专业器材的健身区、铺满镜子的舞蹈室、保障静谧的私人钢琴房、放松身心的SPA区,甚至是收藏爱好者梦寐以求的私人酒窖、雪茄室…… 所有关于理想生活的想象,都能在这里落地。
编辑

☑️☑️海玥黄浦源售楼处电话:400-8377-020☑️☑️
样板间实景图
编辑

☑️☑️海玥黄浦源售楼处电话:400-8377-020☑️☑️
阁楼利用率也很高,不管做收纳空间、孩子的娱乐空间或书房皆可。
样板间实景图
编辑

☑️☑️海玥黄浦源售楼处电话:400-8377-020☑️☑️
其次, 我们通过550传世墅,给大家总结一下项目特性,项目圈层、空间、隐私、品质四大维度确实直接高净值大家庭需求。
①、纯风貌墅区:圈层高定,私密无扰
市面风貌社区,多数是高低配,高层对别墅有视线干扰和采光影响。
而海玥黄浦源十八里是难得一见的纯风貌别墅,没有一丝小高层和高层,圈层更纯粹、更高端,私密性得到严格保证。
编辑

☑️☑️海玥黄浦源售楼处电话:400-8377-020☑️☑️
项目效果图,以实际交付为准
②、宽境空间规划:楼距拓宽,采光升级
项目在保留原有风貌肌理的基础上, 特意拓宽社区道路与楼间距。更开阔的楼间距离,不仅减少了邻里间的生活干扰,更让别墅一层的采光面大幅增加。
编辑

☑️☑️海玥黄浦源售楼处电话:400-8377-020☑️☑️
项目效果图,以实际交付为准
③、风貌庭院特殊设计:更好阻隔外部视线
区别其它别墅,你路过就能把庭院看遍,隐私欠佳, 海玥黄浦源的围墙比一般别墅高很多,内部生活,外部无人能窥见。
编辑

☑️☑️海玥黄浦源售楼处电话:400-8377-020☑️☑️
样板间实景图
④、超高附赠空间:买3层享5层空间,还带露台及顶层空间,生活情境拉满!
✔一层:庭院+LDK 横厅,家庭互动主场
前庭花园,既是父母的“园艺天地”,可栽种四季花木;也是主人的“休闲茶室”,午后品茗观景;更是孩子的“欢乐派对场”,生日聚会、亲子游戏皆可承载。
同时LDK大横厅打造出通透开阔的互动场域;再加上充足的采光面,室内明亮通透。
编辑

☑️☑️海玥黄浦源售楼处电话:400-8377-020☑️☑️
样板间实景图
✔二层:三套房+家庭厅,分层私密共存
可以是三个子女的套房,满足多孩/多代同堂需求。
楼上楼下分层而居,各享私密,让「青年子女的私密主场」与「父母的静谧天地」互不干扰,即使青年业主举办小party玩到深夜,也不会打扰长辈休息。
双开窗的卧室,让四季美景尽收眼底。
同时还专门设置家庭厅,是家人专属的”轻互动空间“,可围坐闲聊日常,分享趣事,增进感情。
编辑

☑️☑️海玥黄浦源售楼处电话:400-8377-020☑️☑️
样板间实景图
✔三层:超大主卧+露台,主人仪式感拉满
主人套间将私密性与生活仪式感推向极致。
你能拥有带起居室、长廊阳台、超大衣帽间和卫浴间的超级主卧。
编辑

☑️☑️海玥黄浦源售楼处电话:400-8377-020☑️☑️
编辑

还带专属露台,在增加使用面积的同时更亲近自然,眼前就是花草树木的绿意和四季变换。
编辑

☑️☑️海玥黄浦源售楼处电话:400-8377-020☑️☑️
样板间实景图
✔顶层空间:多功能拓展,想象无界
可作为藏品陈列室或星空观景台,实际实用空间远超想象!
编辑

☑️☑️海玥黄浦源售楼处电话:400-8377-020☑️☑️
样板间实景图
✔方正采光地下室:超高挑高,功能百变
你可以安排一间布满书架的家庭图书馆,为孩子营造浓浓的书香气;也足够你铺开自助餐与鸡尾酒会的长桌,甚至请来一支小型乐队现场助兴,在烛光与灯光中,尽情歌,尽情舞。
编辑

☑️☑️海玥黄浦源售楼处电话:400-8377-020☑️☑️
编辑

☑️☑️海玥黄浦源售楼处电话:400-8377-020☑️☑️
样板间实景图
或者,打造成一座时髦艺术的社交场,陈列上你从世界各地搜罗而来的艺术品,惊艳每一位到访者。
得益于超高挑高,它能把更多的功能"装进来",健身厅、影音室、棋牌室、儿童玩乐区......;甚至可以把家政空间、储藏空间、卧室等空间集中到地下。
且每一户地下室,都有超大面积采光井,大大提升通风采光度,无需100%依赖灯光照明。
编辑

☑️☑️海玥黄浦源售楼处电话:400-8377-020☑️☑️
样板间实景图
✔直连车库+独立电梯厅:归家尊崇仪式
B2地下车库的设置,为家族成员的归家提供了尊崇的仪式感。独立私家电梯厅则保障了出行的便捷与私密,从下车到进入家中,每一个细节都彰显尊贵。
值得一提,项目产品建筑形态多样,几乎每一栋都有不同的海派立面,大量老外立面砖的使用,复古还原,使其色彩更加生动,更好满足了高净值客户个性化的选择。
编辑

☑️☑️海玥黄浦源售楼处电话:400-8377-020☑️☑️
项目效果图,以实际交付为准
总结一下: 当多数项目还在“造房子”时,海玥黄浦源早已在“造生活藏品”—— 从纯粹圈层到通过风貌庭院特殊设计保护隐私,从超高附赠空间到定制化立面,每一处细节都围绕 “让别墅回归大家族舒适生活载体”的核心目标。
☑️☑️海玥黄浦源售楼处电话:400-8377-020☑️☑️
编辑

☑️☑️海玥黄浦源售楼处电话:400-8377-020☑️☑️
踞市中心“心脏”地带,全维配套环伺
更享东斯文里焕新红利
地段无需多言,标准市中心中的”中心“。
海玥黄浦源十八里直线距离人广约800米,是上海近年来离人广更近的新盘。
直线距离约1公里范围不仅有南京西路“恒梅泰”,还有南京东路商圈、上海来福士广场等繁华商业;
新天地、淮海路等商圈也在约2公里范围内;
静安寺、外滩、陆家嘴商圈都在直线距离约3公里内;
北侧则是苏河湾,业主可以从容下楼骑着自行车享受苏州河滨水慢生活。
编辑

☑️☑️海玥黄浦源售楼处电话:400-8377-020☑️☑️
示意图
丰盈的物质生活之外还有精彩的文化盛宴,上海自然博物馆、上海博物馆、上海城市规划馆、上海大剧院等高端市政配套一路连缀。
项目3公里生活半径内浓缩一城之繁华,不是其它新贵板块可以比的。
另外,东斯文里地块已正式落槌,苏州河畔这一沪上最大石库门群落即将迎来全新焕新——未来这里将引入石库门风貌酒店、创意办公、合院办公、艺术街坊、斯文绿谷等多元业态,不仅会让项目周边的城市界面大幅提升,更将形成一个集文化、艺术、商业、休闲于一体的全新高端生活圈。
这意味着,海玥黄浦源的业主不仅能享受当下的城芯繁华,更能坐享未来周边板块升级带来的价值红利,无论是居住舒适度还是资产保值增值能力,都将得到进一步提升。
东斯文里规划图,来源上海静安
最后,项目除7号地块在售风貌别墅外, 1号地块还有主力建面约198-400㎡超高层产品火热销售中,196㎡全新样板间也于近期同步开放,可直观呈现空间格局与居住质感,方便客户实地感受细节。
需要注意的是超高层 仅剩少量高区房源,想买的客户要抓紧了!另外超高层当前也已 实景呈现,所见即所得,预计 今年年底交付,欢迎现场参观!