云澜湾(售楼处) 首页 - 招商云澜湾销售中心 - 环境 -云澜湾户型 - 价格 - 地址 - 楼盘详情 - 配套 - 电话 - 交房时间 - 配套 - 电话 - 交房时间

搜狐焦点宿州站

2025-11-18 13:37:32

购房群

买房如何避坑,加入购房群,看看他们怎么说

立即进群

项目基本信息

项目名称:招商云澜湾

所属区位:上海·松江新城

产权年限:70年产权

总建筑面积:超7.2万方

可售住宅套数:617套(高层477套,叠加140套)

车位:约860个(地上85个,地下775个)

容积率:约1.6

绿地率:约35%

☑️☑️招商云澜湾售楼处电话:400-8377-020☑️☑️

产品类型:高层(总高13F直通地下车库;一梯两户北向无连廊)、叠加(总高4F带电梯;下叠带地下室、上叠带露台)

建面约:96㎡ 三房两厅两卫(高层)

100㎡ 三房两厅两卫(高层)

126㎡ 四房两厅两卫(高层)

135-141㎡(叠加)

均价:高层约4.5万/平,毛坯约3.9万/平(96平毛坯),叠加约6万/平

总价:约337-862万

总高:高层13层

叠加:下叠 1复2带地下室,上叠 3复4带露台

层高:高层 3米

叠加 首层3.3米,第二层3.1米

得房率:96/100平 约75%

126平 约80%

☑️☑️招商云澜湾售楼处电话:400-8377-020☑️☑️

装修标准:高层 装修交付(中央空调+地暖+新风系统,除17幢是毛坯交付)

叠加 毛坯交付

拿地时间:2023年7月

交房时间:2025年12月31日

约1.6容积率低密墅区

打造松江新城品质住宅

在产品规划布局上,项目更是 匠心打造罕见的纯4F叠墅,只有上下两叠的真叠墅,产品更加纯粹;以及 全部无连廊的13F小高层,得房率更高,通透性更好!不管是中间套还是边套,舒适性、隐私性都更好~

效果图,仅供参考

☑️☑️招商云澜湾售楼处电话:400-8377-020☑️☑️

☑️☑️招商云澜湾售楼处电话:400-8377-020☑️☑️

项目南北地块坐拥 双滨水景观带,居家即可享受自然滨水风光。在此基础上,项目更规划打造 “两轴一林多重花巷”景观组团,让业主尽情拥抱自然生活。

效果图,仅供参考

☑️☑️招商云澜湾售楼处电话:400-8377-020☑️☑️

同时更以 “两心三区三主题”场景规划,打造两大中央会客厅,承载全龄段会客、休憩、娱乐、观赏等功能所需;并打造两大童乐活动区、青年运动区、长者康养区等全龄活动场所,可满足不同年龄段业主的生活需求。

效果图,仅供参考

☑️☑️招商云澜湾售楼处电话:400-8377-020☑️☑️

☑️☑️招商云澜湾售楼处电话:400-8377-020☑️☑️

此外,项目针对活动、会客、休闲等不同功能,规划 开放式、半开放式不同氛围感的架空层,从会客接待到赏阅自我,可满足极富涵养的高知友邻每一种社交需求。

☑️☑️招商云澜湾售楼处电话:400-8377-020☑️☑️

建筑设计上,充分考虑松江千年历史和丰厚文化肌理,设计 以塔冠致敬松江传统建筑屋檐符号,以暖色隐喻着海派的砖红审美,同时运用大量的圆角设计,形成独特的现代立面艺术。

效果图,仅供参考

☑️☑️招商云澜湾售楼处电话:400-8377-020☑️☑️

项目还规划了 3重定制公区,以酒店式社区大堂、臻装楼栋门厅&地下车库,开启尊崇归家仪式感。

效果图,仅供参考

☑️☑️招商云澜湾售楼处电话:400-8377-020☑️☑️

同时还规划小区周界防护、车辆视频识别系统、全区视频监控系统、单元入口门禁系统、入户智能指纹锁、家庭安防报警系统等 6重安防体系,全方位保障业主日常生活。

这样的高定品质,对于区域改善购房者来说,是不容错过的进阶之选!

另外,不可忽略的是招商·云澜湾还是“价格洼地”!

☑️☑️招商云澜湾售楼处电话:400-8377-020☑️☑️

数据来源网上房地产公示信息/百度地图

☑️☑️招商云澜湾售楼处电话:400-8377-020☑️☑️

项目推售详情

【招商·云澜湾】加推建面约96-126㎡小高层&约135-141㎡叠加户型!满足低总价上车到终极改善各类置业需求。

首开户型落位示意图

☑️☑️招商云澜湾售楼处电话:400-8377-020☑️☑️

项目带来小户型面积段,较大程度上控制了总价,降低了置业门槛;飞机户型的设计,让每1㎡空间都在重现居住的价值!

☑️☑️招商云澜湾售楼处电话:400-8377-020☑️☑️

建面约96㎡户型,性价比极高,是一个低总价上车3房的优质选择。经典飞机户型+三房两厅两卫设计,照顾家人的起居隐私;更有客餐厨一体化贯通设计,使得空间不设限更显大;主卧“小家化”,悦享静谧自由生活;进门处设置独立玄关空间,增加收纳的同时,也保护了业主隐私。

☑️☑️招商云澜湾售楼处电话:400-8377-020☑️☑️

建面约100㎡的三房两厅两卫户型,可以说是约96㎡3房的升级版,空间更加延展,整体横厅面宽约5.2米(轴中距),形成更大的南向采光面,且搭配南向观景阳台,直接做到了3.5面宽朝南,这在同类产品中是比较少见的。

此外,干湿分离卫浴设计+南向套房主卧+全卧飘窗设计,生活舒适度拉满。

☑️☑️招商云澜湾售楼处电话:400-8377-020☑️☑️

建面约126㎡四房两厅两卫,更大限度保留了南向房间,四开间朝南,并且是LDKG一体化设计,全飘窗设计,更大大增加了室内尺度感和实用空间。

☑️☑️招商云澜湾售楼处电话:400-8377-020☑️☑️

项目高层的装修标准,更是令人动心。不仅 中央空调、地暖、新风等大件一样不少,洗碗机、玄关柜全部是交付标准,户内客餐厅卧室交付时均配置墙布;在厨卫品牌方面,甄选 科勒、方太或同等品牌,主卫额外配置卫洗丽,诚意十足。

展示空间实景图

☑️☑️招商云澜湾售楼处电话:400-8377-020☑️☑️

另外细节上,还有不少打动人心的加分项。如卫浴空间配置 防水插座、防臭地漏,阳台配置防水插座、防滑地砖、专用地漏等,细节之处贴心入微!

除了小高层产品, 项目此次还推出约135-141㎡叠加户型,作为只有上下两叠的真叠墅,无论居住尺度感和尊贵感都上了一个LEVEL,带来一步到位的理想改善生活。

建面约135㎡叠拼别墅▼

☑️☑️招商云澜湾售楼处电话:400-8377-020☑️☑️

☑️☑️招商云澜湾售楼处电话:400-8377-020☑️☑️

建面约141㎡叠拼别墅▼

☑️☑️招商云澜湾售楼处电话:400-8377-020☑️☑️

☑️☑️招商云澜湾售楼处电话:400-8377-020☑️☑️

☑️☑️招商云澜湾售楼处电话:400-8377-020☑️☑️

建面约96㎡样板间展示▼

☑️☑️招商云澜湾售楼处电话:400-8377-020☑️☑️

☑️☑️招商云澜湾售楼处电话:400-8377-020☑️☑️

☑️☑️招商云澜湾售楼处电话:400-8377-020☑️☑️

☑️☑️招商云澜湾售楼处电话:400-8377-020☑️☑️

☑️☑️招商云澜湾售楼处电话:400-8377-020☑️☑️

项目区位配套

项目地处松江新城永丰街道。松江新城板块位于松江区中心位置,成熟的配套和交通已成为松江的核心。加快建成松江枢纽,规划中地铁9号线和23号线,快线东西联络线和嘉青松金线,共计4条轨交在此交汇。再加上12号线西延伸段将也将于今年开始动工。

☑️☑️招商云澜湾售楼处电话:400-8377-020☑️☑️

据悉,松江未来有望在嘉松公路以35号线将9号线与17号线南北贯通,届时将有可能升级为六轨交汇的松江新城。永丰是松江主城区的核心位置,而项目地块更是主城区最后一块优质土地。

☑️☑️招商云澜湾售楼处电话:400-8377-020☑️☑️

总体看来,松江老城(永丰街道)油墩港以南界面和北面相比,无论是配套、学校、商业、城市界面还是居住氛围,都完全不能相比。我们都知道,即使是同一个单元,不同的地块,因为位置不同,价格也会出现不同,比如二批次出让的宅地:

△ 宝山南大地块,保利海上臻悦,6.3万/㎡;二批次金茂地块则6.7万/㎡;

△ 徐泾双联路北侧地块,绿城宅地,6.2万/㎡,隔壁虹桥公馆,6.4万/㎡;

△ 桃浦智创城,最新指导价8.55万/㎡,而之前位置处在智创城边缘一些的【象屿&交控桃浦项目】,指导价仅7.9万/㎡。

☑️☑️招商云澜湾售楼处电话:400-8377-020☑️☑️

而22年的H17-02号地块,联动价4.9万/㎡,容积率1.5;23年7月,三盛颐景园东面招商双地块,容积率1.6,联动价同样是4.9万/㎡...容积率差不多,但是各方面配置都提高了不止一个等级的情况下,招商的宅地,竟然没有涨价。

☑️☑️招商云澜湾售楼处电话:400-8377-020☑️☑️

交通配套方面:小区门口50m配有有轨电车T1、T2线、长途汽车客运站;4km到9号线醉白池站,自驾沪昆高速,转换沪闵高架、中环、南北高架、内环高架等,可快速到达上海市区,也可通过S32申嘉湖高速,可以快速到达浦东机场;

☑️☑️招商云澜湾售楼处电话:400-8377-020☑️☑️

教育资源方面:七大高校+上海师范大学附属外国语中学、松江区仓桥学校、上海对外经贸大学附属松江实交通验学校、第三实验小学、华亭第二幼儿园;私立学校或者国际学校有包玉刚实验学校、松江西外外国语学校、赫德国际学校。

☑️☑️招商云澜湾售楼处电话:400-8377-020☑️☑️

商业配套方面:家门口新理想广场、2km泰晤士小镇、2km飞航广场,开车约20分钟可到万达、印象城等大型商圈。

☑️☑️招商云澜湾售楼处电话:400-8377-020☑️☑️

☑️☑️招商云澜湾售楼处电话:400-8377-020☑️☑️

医疗资源方面:松江区中心医院、上海市第一人民医院南院(三级甲等)、永丰街道社区卫生服务中心、方塔中医院、松江妇幼保健院(二级甲等)

☑️☑️招商云澜湾售楼处电话:400-8377-020☑️☑️

休闲娱乐方面:永丰城市公园、三新体育场、永丰社区文体中心(在建)、仓城历史文化风貌保护区。

2023年招商蛇口回归“上海之根”,以央企责任感和雄厚的品牌实力,再一次,激荡松江下一程!

☑️☑️招商云澜湾售楼处电话:400-8377-020☑️☑️

【招商-云澜湾】,烟火中的自然静谧,让美好迭新成诗!

当永丰主城飘出氤氲香气,唤醒沉睡的街巷

当仓城老街在暮色四合之际,诉说岁月的故事。

【招商·云澜湾】,于丰收河岸,以主城难得的双水岸墅居姿态,在城市烟火与自然诗意间,勾勒出改善进阶的理想生活画卷。

☑️☑️招商云澜湾售楼处电话:400-8377-020☑️☑️

【招商·云澜湾】,踞守中桥港湾与丰收河交汇处,匠心营造一方静谧生态栖居。

这里摒弃刻意雕琢,尽享丰收河岸的温柔馈赠。

滨水栈道蜿蜒舒展,清晨慢跑,清风拂面,傍晚凭栏,看夕阳浸染一河金辉。

周末携家人漫步,听流水潺潺,看孩童嬉戏。

☑️☑️招商云澜湾售楼处电话:400-8377-020☑️☑️

生活的诗意,于每一次呼吸间悄然流淌。作为永丰主城内少有的滨水墅居, 【招商-云澜湾】不负土地臻贵,低谧设计,兑现滨水生活的静谧与尊荣。

☑️☑️招商云澜湾售楼处电话:400-8377-020☑️☑️

水岸,不仅是迷人的风景线,更是生活舞台的优雅延伸。在【招商·云澜湾】,水岸的闲适意趣被巧妙引入社区深处。南北两大林下会客厅,浓荫蔽日,清风徐来,成为邻里相聚、品茗畅谈的绝佳所在。树影婆娑中,笑语盈盈,情谊在此悄然升温,社区生活洋溢着不息的活力与温情。

☑️☑️招商云澜湾售楼处电话:400-8377-020☑️☑️

归家的路途,亦是心灵的归途。云澜湾深谙此道,以银杏大道铺就归家主轴,开启温暖的序章。

金秋时节,两侧银杏盛装以待,落叶织就一条璀璨的金毯,每一步,都仿佛踏响时光的诗行。

无论是白昼的壮阔,抑或夜晚在柔光映衬下的静谧,皆温柔指引每一位业主,走向那盏等候的灯火。

家的温暖与尊崇,在每一次归家时分,被深刻感知。

☑️☑️招商云澜湾售楼处电话:400-8377-020☑️☑️

【招商-云澜湾】以对生活的自然赤诚之心,匠心筑造

建面约96-100-126㎡3-4房

建面约135㎡-141㎡叠墅

过会均价45769元/m²

高层总价398万起、叠墅总价788万起

认购可享折扣+补贴,今年买今年住(2025年12月)!

☑️☑️招商云澜湾售楼处电话:400-8377-020☑️☑️

户型图赏鉴

☑️☑️招商云澜湾售楼处电话:400-8377-020☑️☑️

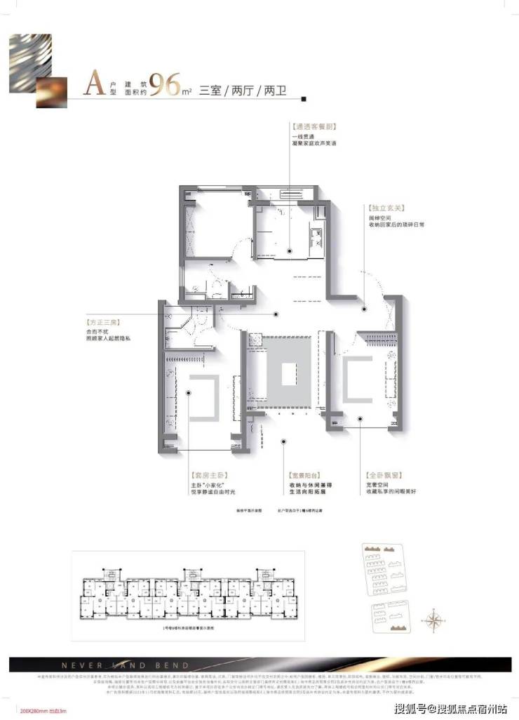
建面约96㎡精质三房,一步到位舒适人居:该户型方正格局、南北通透无连廊,既容纳二人世界的浪漫,也可将三口之家的幸福一并珍藏。

在这里,随心拓展家庭社交空间,孩子们在客厅里玩乐,三五挚友围席对饮,或全家人坐在沙发上观影,其乐融融;

在空间功能的叠加与随心转换中,轻松满足未来居家生活的变化趋势,及家庭成员增长的需求,让欢乐尽情释放。

☑️☑️招商云澜湾售楼处电话:400-8377-020☑️☑️

实景图

☑️☑️招商云澜湾售楼处电话:400-8377-020☑️☑️

☑️☑️招商云澜湾售楼处电话:400-8377-020☑️☑️

建面约100㎡宽厅三房,改善家庭至优选:在南向三开间的基础上,该户型“创新横向宽厅,营造百平米少有的客厅尺度“打造3.5南向面宽。

餐客公共空间由经典竖厅创新演变为“横向宽厅”,大开间短进深,扩大视觉观感,增加采光面,营造温暖舒适的家庭空间。

家庭成员可处于同一场域,实现更多情感互动,陪伴交流。

☑️☑️招商云澜湾售楼处电话:400-8377-020☑️☑️

实景图

☑️☑️招商云澜湾售楼处电话:400-8377-020☑️☑️

☑️☑️招商云澜湾售楼处电话:400-8377-020☑️☑️

建面约126㎡真四房,进一步强化功能性,户型方正,四开间朝南,南北通透,南向卧室均带有大飘窗设计,拓宽了室内景观视野的同时,增加了实际空间使用率,有效避免面积浪费。

主卧带独立卫生间,预留了衣帽间空间,私密性加强,保护业主隐私。对于当代二胎家庭来说,是一步到位的首选。

☑️☑️招商云澜湾售楼处电话:400-8377-020☑️☑️

叠加户型图:

☑️☑️招商云澜湾售楼处电话:400-8377-020☑️☑️

建面约135m²上叠户型的 星空露台,可以是孩子探索浩瀚星河的专属基地,满足他们对宇宙的好奇与向往;也可以是太太的 空中花园,莳花弄草或呼朋引伴, 在星空下举办烧烤派对

☑️☑️招商云澜湾售楼处电话:400-8377-020☑️☑️

☑️☑️招商云澜湾售楼处电话:400-8377-020☑️☑️

建面约141m²下叠户型, 尊享挑高多功能空间,可作为书房,工作室,孩子的童趣空间、私人影院、酒窖等,满足全家人的个性化生活所需,自然流露出高雅不凡的墅居品味。

☑️☑️招商云澜湾售楼处电话:400-8377-020☑️☑️

☑️☑️招商云澜湾售楼处电话:400-8377-020☑️☑️

土拍回顾及规划

2023年7月11日,第二轮土拍,招商蛇口以总价184790万元价格,竞得松江区永丰街道SJC10011单元H02-16、H02-18号地块,地块占地面积45160㎡,容积率1.6,楼板价25574元/㎡,溢价率10%, 房地联动价4.9万/m²

☑️☑️招商云澜湾售楼处电话:400-8377-020☑️☑️

项目四至范围:东至三新路,南至荣乐西路,西至中桥港,北至H02-15地块。

项目由两幅小地块组成(H02-16、H02-18),根据设计方案显示, 项目总共将建17幢4-13F的商品住宅,以及1幢配套用房,其中:

H02-16地块(北地块)容积1.66, 拟建5幢13F小高层,6幢多层住宅(大概率是叠加别墅),共计449套(含保障住房65套)。

H02-18号,容积1.43, 拟建3幢13F小高层,3幢4F多层,共计233套房源。两幅地块,高层间最大栋距约34.5米。

☑️☑️招商云澜湾售楼处电话:400-8377-020☑️☑️

☑️☑️招商云澜湾售楼处电话:400-8377-020☑️☑️

自然是天生的设计师。当繁华的都市满足了人们物质上的需求,却让纯粹而静谧的自然生活变得疏远,如何让都市的生活回归自然的空间,是招商·云澜湾“启幕更好的松江”的设计追求。

项目南北地块坐拥两大滨水景观,依水而建,与邻为伴,以梦幻油画般的色彩,辉映千年松江古韵,呈现一片更加具象的自然景观。沿着蜿蜒曲折的林下空间漫步,心情随着潺潺河水流动,喧闹与寂静沉淀于此,一帧一画都是惬意。

☑️☑️招商云澜湾售楼处电话:400-8377-020☑️☑️

效果图

☑️☑️招商云澜湾售楼处电话:400-8377-020☑️☑️

自然的情绪在“都荟慢生活园林”中流动:在园林的构筑中,将城市千年底蕴和当代审美艺术元素融合,营造城市与家庭生活之间自然的过渡地带。

一座“都荟慢生活园林”蕴含了五大主题空间,滨水的静谧与都市的繁华于此交融,自然的美感被纳入社区的设计中,让生活的感知与触动因自然而起,唤起居者心中的向往与共鸣。

示意图

☑️☑️招商云澜湾售楼处电话:400-8377-020☑️☑️

礼序归家大道,层层过滤喧嚣:南北地块以不同的归家礼序层层递进,以艺术化呈现具备仪式感的归来空间。 两大主入口各具特色的礼制空间,以雅致艺术的手法,将自然的活力美好与空间的互动场景融合,让每一次归来即是心灵的放松与生活的享受。

效果图

☑️☑️招商云澜湾售楼处电话:400-8377-020☑️☑️

林下会客厅,沉浸静谧的社交氛围:南北地块分别规划“中央组团会客厅”。有随风舒展的阔叶植物和冠树,微风草坪和风雨廊亭,恰到好处的尺度,向林间谧境展开,无论是交谈、会客、还是独处,都会让人沉浸于岛屿谧境的私享情绪中。

效果图

☑️☑️招商云澜湾售楼处电话:400-8377-020☑️☑️

漫步巷道,穿过四季漫步归家:通过种植不同的主题植物,利用高低错落的布局,于天地间,自由绘成多重意境的大地艺术画,充分展现巷道的四季韵味,在漫步与驻足间,自然的惬意在这里被扩大。

效果图

轻氧运动场,发现生活中的志同道合:社区内运动社交空间,让需要缓解工作疲劳与压力、渴望身心放松和酷爱健身的成年人,在运动中缓解身心疲惫。

童趣游乐场,守护儿童愉悦成长:南北地块各打造一处童梦活动区,将游戏的功能融入自然场景,让不同成长阶段的孩子,都可以近距离找到自己喜欢的娱乐天地。特别打造的“植物认知角”,可帮助孩童更好地了解植物,收获自然美育和认知能力。

效果图

☑️☑️招商云澜湾售楼处电话:400-8377-020☑️☑️

☑️☑️招商云澜湾售楼处电话:400-8377-020☑️☑️

以空间艺术,高定入户大堂:定制品质入户空间,以“情绪体验”为驱动力,让未来业主置身其中,回归到舒适与松弛的状态,在自然而尊崇的仪式中,迈向家的美好。

☑️☑️招商云澜湾售楼处电话:400-8377-020☑️☑️

生活配套

交通方面:小区门口50m配有有轨电车T1、T2线、长途汽车客运站;4km到9号线醉白池站,自驾沪昆高速,转换沪闵高架、中环、南北高架、内环高架等,可快速到达上海市区,也可通过S32申嘉湖高速,可以快速到达浦东机场。

☑️☑️招商云澜湾售楼处电话:400-8377-020☑️☑️

教育方面:七大高校+上海师范大学附属外国语中学、松江区仓桥学校、上海对外经贸大学附属松江实交通验学校、第三实验小学、华亭第二幼儿园;私立学校或者国际学校有包玉刚实验学校、松江西外外国语学校、赫德国际学校。

☑️☑️招商云澜湾售楼处电话:400-8377-020☑️☑️

商业方面:家门口新理想广场、2km泰晤士小镇、2km飞航广场,开车约20分钟可到万达、印象城等大型商圈。

☑️☑️招商云澜湾售楼处电话:400-8377-020☑️☑️

医疗方面:松江区中心医院、上海市第一人民医院南院(三级甲等)、永丰街道社区卫生服务中心、方塔中医院、松江妇幼保健院(二级甲等)

☑️☑️招商云澜湾售楼处电话:400-8377-020☑️☑️

休闲方面:永丰城市公园、三新体育场、永丰社区文体中心(在建)、仓城历史文化风貌保护区。

☑️☑️招商云澜湾售楼处电话:400-8377-020☑️☑️

☑️☑️招商云澜湾售楼处电话:400-8377-020☑️☑️

全部

相关资讯

报名成功
稍后会有专业的置业顾问联系您
返回楼盘

频道导航

返回首页

看房小程序

APP下载

电话拨通后,请您手动拨打分机号

确定拨打电话

电话号码:

分机号:(可能需要拨分机号)