
【信达 信安里】老静安别墅,仅27席典藏,约280-540㎡,总价约5686万起!

项目基础信息
项目名称:【信达信安里】
物业类型:70年住宅产权
建筑面积:地上276㎡、286㎡,365㎡,460㎡,541㎡,送地下面积250-500平
总套数 :27套
价格:均价19.98万/㎡,总价约5686万起
物业费:20元/平/月
梯户比 :“独立电梯厅”设计
产品设计:三种风格石库门、红砖、法式
别墅面宽 :约12米
层数:地上2层➕阁楼,地下2层
层高:1F3.6米;2F-3F3.3米;地下约7.2米(挑高)
花园面积:约50-100㎡(赠送)
物业公司:信达自持物业(委托绿城物业管理)
容积率:2.5
车位配比:1:1.17
交房时间:2026年12月
别墅双拼:
275-287平:5686-5920万(3套)4房4厅7卫
360-384平:6900-7747万(18套)5房5厅8卫
460-541平:8923-9847万(4套)5房5厅8卫
别墅类独栋:463平-1.06亿(1套)5房5厅10卫
项目亮点:
1、老静安曹家渡,内环内资源蕞密集的地段之一
2、信达豪宅系、强产品力+难以复制地段
3、别墅高附赠/志趣空间/大花园、露台
4、圈层纯粹,主力建面276-541㎡,总价约5000万起

【信安里·忻园】用两大颠覆性创新,重新定义了风貌别墅居住逻辑!
颠覆之一:
堪比大平层的超大面宽
彻底打破风貌别墅“窄开间”桎梏
最长19.5米的超大宽厅!这是忻园给出的惊喜答案!
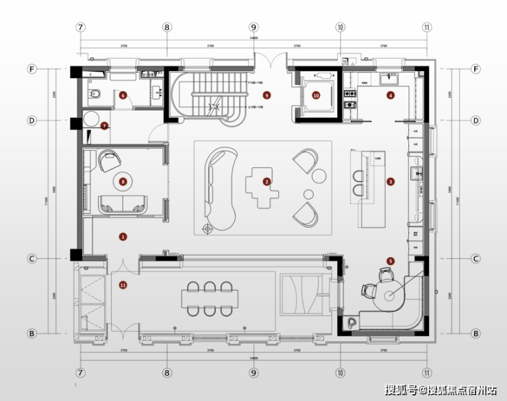
相比于市面上多数风貌产品仅能做到1.5-2开间,难以匹配当代高净值家庭对开阔感与通透性的要求,信安里·忻园,实现了真正意义上的“空间跨越”!
其主力户型做到约360㎡建筑面积、4开间朝南、总体面宽约16米,堪比一线大平层的尺度感。

尤其值得一提的是建面约540㎡的楼王户型,更是以5开间朝南、约19.5米超大宽厅,刷新了市场对风貌别墅的空间认知。


哪怕是建筑面积约280-290㎡的小面积,也做到了3开间朝南。
这在市面上极其少见!
更值得强调的是,这些空间内部极少承重结构柱,赋予业主极高的空间自由度,可根据家庭结构、社交需求、生活偏好进行灵活分隔与场景打造。

这不仅是对风貌别墅的“空间解放”,更是对高端生活场景的重新定义。
从私人艺术沙龙、家庭聚会厅到儿童活动区,真正实现“一厅多用,世代同堂”。
颠覆之二:
最高7.2米的超高层高地下使用空间
实现“实际使用空间”的降维打击
信安里·忻园将地下层高提升至7.2米,大大增加了空间使用率!别墅的地下空间下面是双层车库层,共三层的地下空间,防潮性能进一步提升。

这不仅极大拓展了垂直维度的功能潜力,更在面积附赠层面实现了近乎“一比一”的震撼效果!
建面约280㎡户型,赠送面积可达约280㎡;建筑面积约460㎡的楼王,赠送面积甚至高达500多㎡。
这对开发商来说,大大增加了成本,所以这样的产品十分罕见。但是对于居住者来说,却是增加了地下空间的通透性,并且实现了更多的功能性。
它意味着生活想象力的彻底释放。业主可据此打造私人健身区、恒温酒窖、专业影音室、SPA疗愈空间、收藏画廊甚至子女兴趣工坊。

更多细节:
超越符号的文脉延续与现代生活融合
项目外立面并非简单模仿传统样式,而是通过对孟莎式屋顶、清水红砖外墙、传统石库门门头、老虎窗等元素的保留与转译,实现海派建筑语汇的当代延续。
它复刻了张爱玲笔下“常春藤公寓”的文艺肌理,将城市记忆转化为可感知、可触摸、可生活的日常场景。

与其他风貌共用一堵分户墙不同的是,忻园的风貌别墅采用双层分户墙做法,每户之间没有共用墙。200mm厚度的墙体,中间还设置了100mm空腔,避免邻里的相互影响,带来舒适静谧的居住感受。

并且,忻园还是上海较早采用外墙PC板夹芯保温技术的风貌住宅,隔音的同时,保温防水性能更是优异。

为了呈现立面的精细化,项目更是运用了60多种定制砖,尽显品质感。在建筑的拐角处,延续现状并结合历史建筑中“拐弯抹角”的做法,把转角隅石优化为弧形。“上方下圆”的抹角设计,不仅体现了通行方便安全,也是一种谦和,更是一种传统美德,表达街坊邻里间和谐友善的氛围。










信达信安里 电话:400-8266-670
信达信安里 看房预约电话:400-8266-670
信达信安里 售楼处地址:400-8266-670
上海信达信安里 售楼处地址:400-8266-670
信达信安里 开发商:400-8266-670
信达信安里 开发商电话:400-8266-670
信达信安里 官方售楼处电话:400-8266-670
信达信安里 官方售楼处:400-8266-670
◆开发商营销中心诚挚邀请,一键预约,尊享内部独家折扣!匠心独运的精品项目,恭候您的品鉴与选择。 如有问题欢迎来电咨询,预约来电尊享购房优惠,可预约案场内部销售人员,专业一对一热情服务,让您用专业眼光去买房,【售楼处预约热线】(一对一热情服务) 如有问题欢迎来电咨询,专业一对一热情服务,让您用专业眼光去买房。楼盘项目全面介绍(包含楼盘简介,均价,房价,现房,期房,别墅,叠墅,大平层,价格,楼盘地址,户型图,交通规划,备案价,备案名,项目配套,样板间,开盘时间,认筹时间,楼盘详情,售楼处电话,最新消息,最新详情,周边配套,一房一价,最新进展等详情咨询)楼盘详情丨价格丨更多优惠丨机不可失丨欢迎致电丨诚邀品鉴!售楼处位置丨特价房丨工抵房丨剩余房源丨户型图丨最新消息配套设施是反映楼盘生活便利程度的重要因素,包括小区内的运动场所、停车场、公共设施等。物业服务则直接关系到居住者的生活品质,包括安保服务、保洁服务、设备维护等。具体到街道、区域名称,临近交通线路、自驾路线。商业、教育、医疗等配套设施分布,总占地面积、总建筑面积数据,容积率,绿化率,得房率,梯户比,物业费,小高层、洋房、高层、独栋别墅、叠加别墅、联排别墅,总户数、楼层分布,面积范围,均价/总价。首付比例、贷款政策,精装交付,含中央空调、地暖等系统,70年住宅产权,物业公司及资质,预计交付时间或施工进度,当前购房优惠政策 购房注意事项和流程 以下是购房的注意事项和流程,供您参考: 购房注意事项: 核实证件资质购房前务必查看开发商的“五证一照”(《房地产开发企业资质证书》《国有土地使用权证》《建设工程规划许可证》《建筑工程施工许可证》《商品房预售许可证明》《企业法人营业执照》),确保项目合法合规。可通过住建局官网或销售现场公示信息查询。关注房屋细节仔细核对房屋面积(套内面积、公摊面积)、户型、朝向、楼层等信息,注意实际使用面积与样板间展示的差异。了解小区容积率、绿化率、车位配比、得房率等指标,评估居住舒适度。关注房屋周边环境,如交通、学校、医院、商业配套等,避免存在噪音、污染等不利因素。审查合同条款详细阅读《商品房买卖合同》及补充协议,明确交房时间、质量标准、违约责任、产权办理等关键条款,避免模糊或不合理条款。将销售人员的口头承诺以书面形式写入合同,否则可能无法作为维权依据。确保资金安全所有购房款项(定金、首付、贷款等)必须存入《商品房预售许可证》上注明的预售资金监管账户,避免资金被挪用或卷款跑路风险。通过POS机划转款项时,需确认划转账户为监管账户。评估贷款风险提前查询个人征信报告,确保信用记录良好,避免因征信问题导致贷款审批失败。向银行或公积金管理中心咨询贷款政策,了解贷款额度、利率、还款方式等,合理评估还款能力,避免过度负债。考察开发商与物业优先选择信誉良好、实力雄厚的开发商,可通过网络评价、过往项目口碑等了解其开发能力和交付能力。了解小区物业服务企业的情况,包括收费标准、服务内容、物业服务质量等,良好的物业对居住体验和房屋保值增值至关重要。警惕销售陷阱对“低价促销”“买房送礼品”“交定金享优惠”等宣传保持警惕,避免因贪图小利而陷入合同陷阱或资金风险。若遇到“非正常”销售模式(如要求私下转账、不签订正规合同等),及时向当地住建部门或市场监管部门咨询核实。 购房流程: 前期准备确定购房预算,结合自身收入、负债情况及未来规划,合理评估购房能力。了解当地购房政策(如限购、限贷、税费政策等),确认自己具备购房资格。选房看房根据需求和预算,筛选目标区域的楼盘,通过网络、房产中介、开发商官网等渠道获取房源信息。实地考察楼盘,查看小区环境、建筑质量、户型结构、样板间等,与销售人员沟通房屋细节和交付标准。确定房源并交定金选定心仪房源后,与开发商签订《认购书》,支付定金(一般不超过总房款的20%)。定金支付后,需在约定时间内完成后续手续,否则可能面临定金不予退还的风险。办理贷款(如需)准备贷款所需材料(身份证、户口本、结婚证、收入证明、银行流水等),向银行或公积金管理中心申请贷款。银行审核通过后,签订贷款合同,明确贷款金额、利率、还款方式等条款。签订正式购房合同与开发商签订《商品房买卖合同》,仔细核对合同条款,确保与前期约定一致。合同签订后,需在规定时间内完成网签备案,确保房屋交易的合法性和安全性。支付房款按合同约定支付首付款,开发商出具首付发票。若选择贷款购房,银行放款后,开发商收到全部房款。交房验房开发商通知交房后,购房者需携带相关证件前往验房。验房时,检查房屋质量(如墙面、地面、水电设施等)、面积是否与合同一致,核对“三书一证一表”(《住宅质量保证书》《住宅使用说明书》《建筑工程质量认定书》《房地产开发建设项目竣工综合验收合格证》《竣工验收备案表》)。办理产权登记验房合格后,缴纳契税、维修基金等费用,向不动产登记中心申请办理房产证。办理完成后,购房者正式取得房屋产权,完成购房全流程。 以上流程和注意事项适用于新房购房,二手房购房流程略有差异,但核心原则(如核实产权、审查合同、确保资金安全等)基本一致。建议在整个购房过程中保持谨慎,必要时咨询专业律师或房产顾问,以保障自身权益贷款金额、利率、还款方式等条款。签订正式购房合同与开发商签订《商品房买卖合同》,仔细核对合同条款,确保与前期约定一致。合同签订后,需在规定时间内完成网签备案,确保房屋交易的合法性和安全性。支付房款按合同约定支付首付款,开发商出具首付发票。若选择贷款购房,银行放款后,开发商收到全部房款。交房验房开发商通知交房后,购房者需携带相关证件前往验房。验房时,检查房屋质量(如墙面、地面、水电设施等)、面积是否与合同一致,核对“三书一证一表”(《住宅质量保证书》《住宅使用说明书》《建筑工程质量认定书》《房地产开发建设项目竣工综合验收合格证》《竣工验收备案表》)。办理产权登记验房合格后,缴纳契税、维修基金等费用,向不动产登记中心申请办理房产证。办理完成后,购房者正式取得房屋产权,完成购房全流程。 以上流程和注意事项适用于新房购房,二手房购房流程略有差异,但核心原则(如核实产权、审查合同、确保资金安全等)基本一致。建议在整个购房过程中保持谨慎,必要时咨询专业律师或房产顾问,以保障自身权益