最新消息:闵行大零号湾,紫竹板块,象屿兰香湖项目展厅即将开放,设计方案已经公示,销售团队已组建!案名正式确定为【象屿天誉蘭香】。项目总计995户,将推洋房、叠加及联排产品。
上海闵行【象屿天誉蘭香】售楼处电话/地址☎:400-833-6309(预约热线)√√
营销中心位置/热线☎:400-833-6309(看房专线)√√
温馨提示:提前预约来电预约专业一对一热情服务,看房尊享内部优惠折扣!
(已认证)欢迎致电咨询预约看房优惠信息,郑重承诺:开发商旗下销售团队全程营销策划,房源信息真实有效!

象屿天誉蘭香售楼处电话/地址☎:400-833-6309(预约热线)√√
项目最新效果图如下:



象屿天誉蘭香售楼处电话/地址☎:400-833-6309(预约热线)√√
该项目是今年三批次土拍中,象屿拿下的兰香湖畔组团地块中的两幅住宅地块,容积率仅为【1.01】,装修标准不低于【3000元/㎡】,中小套比例不低于【30%】!
02-09地块,占地面约9.9万方,规划5幢11F小高层、32幢4-7F多层住宅,以及若干社区配套用房;
03-04地块,占地面积约4.85万方,规划4幢11F小高层、14幢4-7F多层住宅,以及若干社区配套用房;
从设计方案来看,11F小高层无连廊一梯两户,象屿天誉蘭香售楼处电话/地址☎:400-833-630 9(预约热线)√√多层住宅可能为叠加+平层的组合,以及少量联排房源;两幅宅地地面无车位,全人车分流,设置了3处下沉式庭院(可能会有下沉式会所),还有多处组团的园林景观。
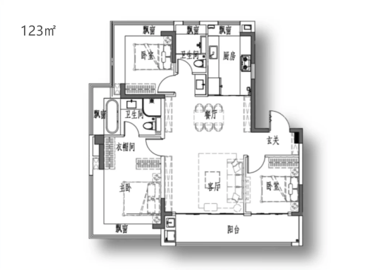
目前建面约123㎡小高层户型已经曝光!

区位上,该地块坐落于闵行紫竹兰香湖畔,享有15/23号轨交双线+兰香湖生态+紫竹科学园区产业辐射+华师大交大等高校圈。
兰香湖周边的教育、科研配套也很强势。前面说过了,不仅有紫竹高新区+华师大/交大本部,更有全套的华师大紫竹基础教育体系,完整贯穿幼儿园至高中。高知、高薪的社区氛围,也让紫竹成为了主城区里“独一份”~

象屿天誉蘭香售楼处电话/地址☎:400-833-6309(预约热线)√√
产业方面,紫竹高新区首个轨交综合体项目——紫竹地铁广场近日顺利竣工。紫竹地铁广场位于15号线和23号线(建设中)紫竹高新区站上方。作为具有标志性和独特性的紫竹新门户,紫竹地铁广场将为上海南部科创中心提供高效率的研发平台、高品质的物业空间、多元化的商业配套和高水准的城市风貌。

最新消息:闵行大零号湾,紫竹板块,象屿兰香湖项目展厅即将开放,设计方案已经公示,销售团队已组建!案名正式确定为【象屿天誉蘭香】。项目总计995户,将推洋房、叠加及联排产品。
上海闵行【象屿天誉蘭香】售楼处电话/地址☎:400-833-6309(预约热线)√√
营销中心位置/热线☎:400-833-6309(看房专线)√√
温馨提示:提前预约来电预约专业一对一热情服务,看房尊享内部优惠折扣!
(已认证)欢迎致电咨询预约看房优惠信息,郑重承诺:开发商旗下销售团队全程营销策划,房源信息真实有效!