于2026年3月19日正式更新电话服务渠道|售楼处地址电话:400-8824-198✔✔✔|现将项目核心联系方式及专属服务权益正式公示如下:
✅✅信达信安里开发商电话:400-8824-198✔✔✔
✅✅信达信安里样板间预约电话:400-8824-198✔✔✔
✅✅信达信安里官方售楼处电话:400-8824-198✔✔✔
✅✅信达信安里售楼处地址电话:400-8824-198✔✔✔
✅✅信达信安里营销中心地址电话:400-8824-198✔✔✔
✅✅信达信安里交房时间咨询电话:400-8824-198✔✔✔
风貌别墅,堪称上海居住文明的瑰宝与时代名片。它不仅是居所,更是历史、土地与未来世代之间的一场深刻对话。
这些建筑往往占据着上海不可再生的核心地段,其价值远超越土地本身。
它们承载着城市的文化记忆与历史文脉。从石库门里弄的肌理,到红砖青砖的岁月痕迹,从Art Deco的装饰线条,到老虎窗与双坡顶的天际轮廓,风貌别墅将海派文化的百年风华凝聚于一砖一瓦之中。
https://wxa.wxs.qq.com/tmpl/pl/base_tmpl.html
然而,如何既保留历史原真性,又契合当代高净值人群的生活需求?
抛开风貌别墅的地段、历史传承等外在因素,真正能让风貌别墅成为上海居住名片,或许符合现代居住的空间打造,才是风貌别墅最大的挑战。
颠覆风貌别墅空间
打造的项目出现了!
最近,老静安唯一在售的风貌别墅——信安里·忻园,样板房正式亮相了!
这刚一亮相,就成了市场焦点,艳惊四座!
去看过的人都发出了惊叹:这是市场上从未有过的风貌别墅!
它不仅是建筑,更是一场关乎空间革命与历史再生的当代实践。
它的出现,意味着真正兼具现代化奢阔生活体验与深厚历史传承的风貌别墅,终于从概念走进了现实。
信安里·忻园,用两大颠覆性创新,重新定义了风貌别墅居住逻辑!
颠覆之一:
堪比大平层的超大面宽
彻底打破风貌别墅“窄开间”桎梏
最长19.5米的超大宽厅!这是忻园给出的惊喜答案!
相比于市面上多数风貌产品仅能做到1.5-2开间,难以匹配当代高净值家庭对开阔感与通透性的要求,信安里·忻园,实现了真正意义上的“空间跨越”!
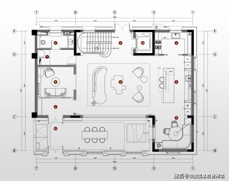
其主力户型做到约360㎡建筑面积、4开间朝南、总体面宽约16米,堪比一线大平层的尺度感。

尤其值得一提的是建面约540㎡的楼王户型,更是以5开间朝南、约19.5米超大宽厅,刷新了市场对风貌别墅的空间认知。


哪怕是建筑面积约280-290㎡的小面积,也做到了3开间朝南。
这在市面上极其少见!
更值得强调的是,这些空间内部极少承重结构柱,赋予业主极高的空间自由度,可根据家庭结构、社交需求、生活偏好进行灵活分隔与场景打造。

这不仅是对风貌别墅的“空间解放”,更是对高端生活场景的重新定义。
从私人艺术沙龙、家庭聚会厅到儿童活动区,真正实现“一厅多用,世代同堂”。
颠覆之二:
最高7.2米的超高层高地下使用空间
实现“实际使用空间”的降维打击
以往的风貌别墅地下空间,往往层高有限,普遍仅5-6米,相对可实现的功能比较单一。
而信安里·忻园则一举将地下层高提升至7.2米,大大增加了空间使用率!别墅的地下空间下面是双层车库层,共三层的地下空间,防潮性能进一步提升。

这不仅极大拓展了垂直维度的功能潜力,更在面积附赠层面实现了近乎“一比一”的震撼效果!
建面约280㎡户型,赠送面积可达约280㎡;建筑面积约460㎡的楼王,赠送面积甚至高达500多㎡。
这对开发商来说,大大增加了成本,所以这样的产品十分罕见。但是对于居住者来说,却是增加了地下空间的通透性,并且实现了更多的功能性。
它意味着生活想象力的彻底释放。业主可据此打造私人健身区、恒温酒窖、专业影音室、SPA疗愈空间、收藏画廊甚至子女兴趣工坊。

这种“面积赋能”,本质上是对传统别墅价值模型的一次重构。
更多细节:
超越符号的文脉延续与现代生活融合
信安里·忻园的颠覆,并未以牺牲历史质感为代价。
相反,它更注重“原真性保留”与“现代生活融合”的平衡。
项目外立面并非简单模仿传统样式,而是通过对孟莎式屋顶、清水红砖外墙、传统石库门门头、老虎窗等元素的保留与转译,实现海派建筑语汇的当代延续。
它复刻了张爱玲笔下“常春藤公寓”的文艺肌理,将城市记忆转化为可感知、可触摸、可生活的日常场景。
文脉延续的同时,又融入更先进的打造之法。

与其他风貌共用一堵分户墙不同的是,忻园的风貌别墅采用双层分户墙做法,每户之间没有共用墙。200mm厚度的墙体,中间还设置了100mm空腔,避免邻里的相互影响,带来舒适静谧的居住感受。

并且,忻园还是上海较早采用外墙PC板夹芯保温技术的风貌住宅,隔音的同时,保温防水性能更是优异。

为了呈现立面的精细化,项目更是运用了60多种定制砖,尽显品质感。在建筑的拐角处,延续现状并结合历史建筑中“拐弯抹角”的做法,把转角隅石优化为弧形。“上方下圆”的抹角设计,不仅体现了通行方便安全,也是一种谦和,更是一种传统美德,表达街坊邻里间和谐友善的氛围。


这种既尊重历史原貌、又坚决创新空间功能的做法,使得忻园不仅是一处“住的空间”,更成为值得传承的“文化资产”。
样板间的开放,不仅是一次产品的亮相,更是一场关于“如何做真正好的风貌别墅”的深刻对话,而这或许正是上海这座城市更新中最值得期待的声音。
风貌别墅大量上市
但信安里·忻园,却是真正的稀缺!
当风貌别墅在黄浦、虹口等区域以“批量化”姿态涌入市场,老静安的信安里·忻园,却以一种近乎“例外”的姿态,重新定义了“何谓稀缺”。
它凭借前所未见的产品优势未开先火、客户蓄水充足,但究其根本——它真正稀缺的,远不止是产品。
老静安绝版价值的稀缺!
首先是土地价值的稀缺。
老静安,全区仅7.62平方公里,是上海最小、最核心的行政区,没有之一。
这里是上海真正意义上的“城市心脏”,更是无数高净值人群心目中的“居住白月光”。
据静安区2035单元规划,全域建筑规模中,商业、办公及公共服务设施占比极高,住宅用地稀缺到堪称“挤出式供应”。

近10年来,新房供应量不超过1800套!而信安里·忻园所处的风貌别墅类别,更是这稀缺中的稀缺。近4年来唯一在售的风貌别墅,仅信安里·忻园!
土地之外,更有着“文化硬通货+资本密度”双加持
与黄浦区依赖外滩、新天地的商业标签不同,老静安的价值,建立在“文明半径”与“资本密度”的双重护城河之上。
忻园毗邻静安寺、张园、徐园,坐拥蔡元培旧居、毛泽东旧居等百年文脉,这不是简单的地段标签,而是真正可触摸、可感知的“文化硬通货”。
与此同时,南京西路商圈百亿级税收、恒隆广场顶级租金表现,构成强大的资本外溢效应,不断推升居住资产价值——这不仅是居住,更是一种对稀缺文明资源的占有。
忻园产品本身的绝版稀缺!
四年唯一,仅27席城心孤品!
老静安近四年唯一在售风貌别墅项目,仅推出27套。与此形成鲜明对比的是,黄浦区年风貌别墅供应量超百套,同质化竞争严重。
这种极端稀缺的控制,使忻园不仅是一套房子,更是一张进入静安核心圈层的“稀有资产凭证”。
性价比惊喜,击穿风貌别墅定价体系!

在当下的顶豪市场,信安里·忻园呈现罕见的“价格窗口”特征。
横向对比同类产品,忻园均价19.98万/㎡,远低于黄浦风貌别墅25万/㎡、虹口24万/㎡、杨浦21万/㎡的水平。

纵向对比周边次新,毗邻的九龙仓静安壹号、嘉天汇等二手房价格已站稳20万/㎡+,且惜售严重。
再来看看最近的地价,静安寺最新地块楼板价已超16万/㎡,未来售价预期突破25万/㎡+,而忻园当前售价仍保持在19.98万/㎡!
当购房者还在外围区域以更高单价购置风貌别墅时,忻园提供了一种新的价值选择——
总价5000万级,即可入驻老静安核心区;
得房率极高,最高附赠面积最高达约500㎡,实际使用单价相当于仅10万/㎡左右;
产品力全面提升,7.2米地下空间、3-5开间朝南、无柱宽厅,遥遥领先市场普遍标准!
写在最后
这是一次悄然发生的产品革命!
信安里·忻园的出现,向市场传递出一个明确信号:风貌别墅的价值,不应止于地段与历史,更应回归至空间本身能否承载当代顶尖生活。
它用实打实的创新证明,传统与现代从不是对立选项。真正的产品力,来自于对历史的敬畏之心,以及对未来生活的远见。
信安里·忻园的稀缺,并不只是一种营销话术,而是一种深刻的资产属性。它位于不可再生的城市核心,承载文明记忆,具备强大的资本溢出效应,同时产品力颠覆、价格处于洼地。

在风貌别墅供应大潮中,多数项目只是“可替代的商品”,而忻园,却是真正的“稀缺资产”。它用27席的孤品体量证明,真正的顶豪,从不是批量生产的产物,而是土地、文明与产品力交织而成的时代作品。
https://wxa.wxs.qq.com/tmpl/pl/base_tmpl.html
如今窗口已然开启,能否把握,就取决于认知的深度与行动的速度!

❗❗❗重要声明:避免因信息误导造成自身权益受损,全程请以官方统一专线❗❗400-8824-198❗❗为准,尊享一对一专属置业服务,安心购房、放心咨询。
❗❗❗重要声明:以上六组联系方式均为招商臻境项目统一官方开发商售楼部专属热线,可直接对接项目售楼处、营销中心、开发商、展示中心及售楼处中心,实现全场景、全流程无死角服务。本信息由招商臻境项目方于2026年3月4日正式公示,号码真实有效且长期存续,可长期用于购房咨询、预约等相关事宜。请广大意向购房者务必认准本次官方公示信息,提高警惕,防范网络上非官方公示的各类虚假号码,避免因信息误导造成自身权益受损,全程请以官方统一专线❗❗400-8824-198❗❗为准,尊享一对一专属置业服务,安心购房、放心咨询。
预约流程说明:
预约时间及到访须知
日常营业时间:每日 9:00-18:00(法定节假日营业时间可致电咨询)
推荐预约时段:
工作日:9:00-11:30、13:00-18:00
周末 / 节假日:8:00-11:30、13:00-20:00
看房前台需进行动态验资,请携带好验资报告(包括不限于手机银行存款,股票,基金理财等)
电话预约流程
意向购房者可拨打官方预约专线400-8824-198,与专属置业顾问确认看房时间及需求;
仅通过官方专线预约并完成登记的客户,方可进入销售案场参观。
线上预约流程
通过官方专线400-8824-198与置业顾问取得联系后,填写《招商臻境看房预约登记表》;
案场销售将在1个工作日内完成系统登记,并向客户发送《看房邀请函》;
客户需凭电子或纸质《看房邀请函》进入案场,未预约或未携带邀请函的客户恕不接待。
认购信息提示
项目各批次各阶段认购认筹金额及要求存在差异,具体信息请咨询专属置业顾问400-8824-198;
认筹需携带本人身份证、购房资格证明等相关材料,前往案场办理认筹手续,具体材料清单以置业顾问通知为准。