
☑️☑️保利世博天悦售楼处电话:400-8377-020☑️☑️
浦东世博滨江100亿地王
一线奢阔江景,现房状态
【保利世博天悦】直接认购!
少量约175-240-500㎡3-5房
总价2500万起!精装交付
售楼处样板间线上预约中!
☑️☑️保利世博天悦售楼处电话:400-8377-020☑️☑️
上海土地市场、豪宅市场的上涨趋势已经是明牌,买进迫在眉睫!新房供应同质化、产品差异化不足,盲目上车的风险同样不容忽视!
上海第三次土拍落幕,绿城拍下北蔡地块,预示中环进入12+时代,市区宅地彻底杀疯!回首上一次土拍,老静安拍出16.2万新中国单价地王,预示内环核心即将进入30万+时代!
☑️☑️保利世博天悦售楼处电话:400-8377-020☑️☑️
具体到总价3000万以上豪宅新盘来讲,初步统计下来,上海核心区总价3000万以上的新盘超过90个,黄浦、徐汇、虹口、杨浦、浦东皆有供应!
☑️☑️保利世博天悦售楼处电话:400-8377-020☑️☑️
大家比较熟悉的徐汇滨江核心、董家渡、北外滩甚至是杨浦滨江,未来都再难有真正的一线滨江宅地供应!而保利世博天悦临江仅约80米,是一线临江中硕果仅存的纯宅地,这样的地块天赋堪称“绝无仅有”
☑️☑️保利世博天悦售楼处电话:400-8377-020☑️☑️
地块位置如下图所示,直观来看,是块好地,临江无遮挡。
☑️☑️保利世博天悦售楼处电话:400-8377-020☑️☑️
【保利世博天悦】容积率2.0,绿化率35%。西侧沿江布置6栋8层住宅(其中靠世博大道5栋为保留建筑),东侧沿雪野路布置19~22层住宅,形成西低东高两道天际线,最大程度利用江景资源。

☑️☑️保利世博天悦售楼处电话:400-8377-020☑️☑️
在2024年“豪宅大年”的异常激烈竞争下,世博天悦以80亿首开开局,到年末四期推售的洋房基本售罄,紧接着在年前最后一周再度过会。
项目首开一周年热销200亿,全上海能卖这么高货值的豪宅屈指可数!也是上海罕见均价17万/m²以上,单盘能卖到200亿的项目,大幅跑赢同期市面上绝大多数豪宅项目;
☑️☑️保利世博天悦售楼处电话:400-8377-020☑️☑️
2025上海豪宅单价超20万/m²的成交量排行中,保利世博天悦甚至力压新天地、外滩、陆家嘴、苏河湾、徐汇滨江等一众热门板块新盘,问鼎上海豪宅之巅!
别墅产品未统计;网签有滞后,仅供参考
☑️☑️保利世博天悦售楼处电话:400-8377-020☑️☑️
最新消息!黄浦江核芯大宅现房「保利世博天悦」最后1栋小洋房18万/㎡收官发售!即将交付的实景准现房,项目分多次推盘:往期在售面积:174㎡、195㎡、190㎡、205㎡、239㎡、252㎡、399㎡、500㎡;在售总价:2500-1.2亿!3#楼建面240-251㎡4-5房;主力总价4000-5000万;更有建面约500㎡“隐藏户型”,建面约400㎡顶楼复式!售楼处样板间线上预约中!
交房时间:7#8#9#10#11#12#13#于2025年9月30日交房;1#2#3#4#5#6#14#于2026年4月30日交房
共14栋—其中6栋洋房、8栋小高层,共836户;已开楼栋12栋已去化约80%,剩余1栋未开;一年的时间保利世博创造了上海豪宅多项记录;全上海新房单价最高30.27万/平;全上海20万+单价成交套数最多;全上海连续开盘次数最多七次开盘,总销200亿+!
据悉,今年的新房房源单价天花板很快要被保利世博天悦自己打破!6月5日开启认购的3#楼王中,房源单价将再度刷新今年上海顶豪房源单价,达到302666元/㎡;“隐藏款”建面约500㎡天幕平层,总价一亿起,真正的“一亿一宅”!
☑️☑️保利世博天悦售楼处电话:400-8377-020☑️☑️
270°江景视野,将S湾尽收眼底!论江景质量绝对是滨江顶豪中独一档!

☑️☑️保利世博天悦售楼处电话:400-8377-020☑️☑️
☑️☑️保利世博天悦售楼处电话:400-8377-020☑️☑️
☑️☑️保利世博天悦售楼处电话:400-8377-020☑️☑️
项目实景图
☑️☑️保利世博天悦售楼处电话:400-8377-020☑️☑️
☑️☑️保利世博天悦售楼处电话:400-8377-020☑️☑️
保利世博天悦将往期1#6#8#10#14#楼两幢景观洋房楼王!上海CAZ内,唯一真正贴江(约80米)8层洋房,建面约176-195㎡3-4房准现房,高区可看江、中区看陆家嘴三件套、低区赏园。得房率高达约82-83%;自然也是上海2500万到3900万级高端改善首选。目前还有少量房源直接认购!
☑️☑️保利世博天悦售楼处电话:400-8377-020☑️☑️
☑️☑️保利世博天悦售楼处电话:400-8377-020☑️☑️
☑️☑️保利世博天悦售楼处电话:400-8377-020☑️☑️

☑️☑️保利世博天悦售楼处电话:400-8377-020☑️☑️

☑️☑️保利世博天悦售楼处电话:400-8377-020☑️☑️
2600w可享受190-205平体验奢阔园林生活
3000万以内有机会选到190-205平看江房源
4000万有机会享受240-252平奢阔看江的震撼
近日,保利·世博天悦启动VIP预约接待,近8000平方米的超大实景体验区,断层领先的超级产品力赢得业内外超级好评。
入住滨江纯粹豪宅点最佳机会就在保利·世博天悦!纯改善产品,豪宅属性明确,目标客户也是比较明确,针对改善而来!
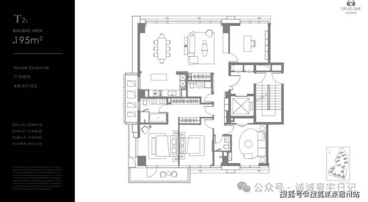
往期全套户型图如下
☑️☑️保利世博天悦售楼处电话:400-8377-020☑️☑️

☑️☑️保利世博天悦售楼处电话:400-8377-020☑️☑️



☑️☑️保利世博天悦售楼处电话:400-8377-020☑️☑️
☑️☑️保利世博天悦售楼处电话:400-8377-020☑️☑️
☑️☑️保利世博天悦售楼处电话:400-8377-020☑️☑️
11#户型图如下:


☑️☑️保利世博天悦售楼处电话:400-8377-020☑️☑️
⬇️专业销售一对一咨询⬇️
耐心等待官方VIP客户经理回电
样板间展示如下
☑️☑️保利世博天悦售楼处电话:400-8377-020☑️☑️
☑️☑️保利世博天悦售楼处电话:400-8377-020☑️☑️
☑️☑️保利世博天悦售楼处电话:400-8377-020☑️☑️
☑️☑️保利世博天悦售楼处电话:400-8377-020☑️☑️
☑️☑️保利世博天悦售楼处电话:400-8377-020☑️☑️
具体装标如下:
☑️☑️保利世博天悦售楼处电话:400-8377-020☑️☑️
☑️☑️保利世博天悦售楼处电话:400-8377-020☑️☑️
耐心等待官方VIP客户经理回电
上期11#一房一价表如下
☑️☑️保利世博天悦售楼处电话:400-8377-020☑️☑️

☑️☑️保利世博天悦售楼处电话:400-8377-020☑️☑️
一线滨江实景豪宅,品质看得见!
全上海独一无二的“类幕墙设计”立面,搭配上海首例“开放式铝板设计”,打造黄浦江畔地标新名片!
☑️☑️保利世博天悦售楼处电话:400-8377-020☑️☑️
实景图
凭借最近约80米的一线江景优势,将黄浦江天然水资源引入社区,打造约3000㎡水景,并规划约6万㎡社区景观,力求每一寸土地都能发挥出最大的生态效益和观赏价值!

而谈及江景,直线距离黄浦江约80米的保利世博天悦堪称“江景之王”!从地图来看,项目与汤臣一品和中粮海景壹号等顶豪住区享有相同的视野与距离,同频一线黄浦江景。
☑️☑️保利世博天悦售楼处电话:400-8377-020☑️☑️
实景图
项目配备了约2600㎡双首层地下会所,只对小区业主开放。以下沉式布局拓展双层立体空间,让内部得以容纳私宴厅、半标恒温泳池(配4条泳道)、健身房、会客厅等多功能场景,并结合叠水、树阵、庭院等园林景观,实现内外空间的交互,拉近人与自然的距离。

☑️☑️保利世博天悦售楼处电话:400-8377-020☑️☑️

☑️☑️保利世博天悦售楼处电话:400-8377-020☑️☑️
实景图
无论你在泳池游泳,还是跑步机上奔跑,抬眼就能欣赏到下沉式庭院的四季美景,生活在这里,一切美得像一曲爵士乐。并在会所中定制打造了以“文明之海、时间之轮、永恒之光”为主题的艺术品。仿佛置身于一个艺术博览馆,为这座黄浦江畔超级豪宅注入有趣且独特的灵魂。



☑️☑️保利世博天悦售楼处电话:400-8377-020☑️☑️
还有最后也是最重要的一环,那就是高端物业服务!保利联合金钥匙国际联盟打造的首个“管家学院”,以“黑标服务DNA+东方礼遇基因”双螺旋结构,颠覆传统豪宅服务体系,重构顶豪服务的「东方范式」
☑️☑️保利世博天悦售楼处电话:400-8377-020☑️☑️

☑️☑️保利世博天悦售楼处电话:400-8377-020☑️☑️
在这里,每一位业主都能享受到量身定制的尊崇礼遇,从日常起居到休闲娱乐,每一个细节都经过精心设计与考量;
保利物业通过不断点、不断代、不断线的精心服务,打造出更懂中国人分寸和服务的居住体验,无惧时间的磨砺,助力业主资产穿越周期!
⬇️专业销售一对一咨询⬇️
耐心等待官方VIP客户经理回电
现场实景照片
☑️☑️保利世博天悦售楼处电话:400-8377-020☑️☑️
☑️☑️保利世博天悦售楼处电话:400-8377-020☑️☑️


☑️☑️保利世博天悦售楼处电话:400-8377-020☑️☑️

☑️☑️保利世博天悦售楼处电话:400-8377-020☑️☑️

☑️☑️保利世博天悦售楼处电话:400-8377-020☑️☑️
☑️☑️保利世博天悦售楼处电话:400-8377-020☑️☑️
☑️☑️保利世博天悦售楼处电话:400-8377-020☑️☑️
作为保利28年全球最高端作品,品牌重金邀请SCDA、诗加达(CICADA)、雅布(Yabu Pushelberg)、Kelly Hoppen等国际一线大师,联手打造黄浦江核心段一线滨江国际地标豪宅。
项目近享世界级滨江艺术带、上海最大开放式绿地——2平方公里世博文化公园(内含上海大歌剧院、马术中心)、五国金砖银行、央企总部等国际级配套

☑️☑️保利世博天悦售楼处电话:400-8377-020☑️☑️
满级规划+全维度塔尖资源荟萃世博!保利世博天悦位于浦东世博滨江板块,这里拥有两大满级“BUFF”叠加:世博滨江CAZ+世博-前滩城市主中心,未来期待值拉满!

中央活动区:“世博-前滩-徐汇滨江地区”
中央活动区作为上海未来发展的重要代表,将承担起全球城市核心功能的重要角色,成为城市形象的集中展示区域,为城市的发展注入新的活力和动力,堪称“市中心的中心”。
保利世博天悦不仅位于规划中的黄浦江核心段,而且地处与外滩、陆家嘴同能级的“世博-前滩-徐汇滨江地区”。

☑️☑️保利世博天悦售楼处电话:400-8377-020☑️☑️
示意图
城市主中心:“世博-前滩城市主中心”同时,保利世博天悦所在的世博滨江已经全面升级为城市主中心!
3月26日,浦东新区土地市场座谈会公布:至2035年,浦东还将新增“世博-前滩城市主中心”,新增张江、金桥、川沙3个城市副中心。
城市主中心,从字面意义上来看,规划能级与南京西路、人民广场、新天地、外滩、陆家嘴等传统核心区并驾齐驱,使世博滨江能级进一步升级,将成为具备全球影响力的世界级滨水区。

☑️☑️保利世博天悦售楼处电话:400-8377-020☑️☑️
示意图
如果说地段能级决定保利世博天悦的下限;板块内难以复制的满级资源,才是项目真正的价值护城河,无一不是汇聚了上海文化生活的精髓。
曾经的万国博览的盛会为区域注入了世界文化汇聚的底色,如今的世博板块不仅包含文化、艺术、博览、国际体育等多元化中心,还受益于CAZ集聚总部经济的功能定位,发展成为央企总部、国际企业聚集区和浦东第二政务办公中心,目前已有26家央企的近80家公司集聚世博片区。

☑️☑️保利世博天悦售楼处电话:400-8377-020☑️☑️
实景图
作为上海唯一具备沿江演艺带集聚的地区,保利世博天悦项目周边坐拥13座世界顶级大型文化场馆,展演空间体量超过6万坐席。包括:梅德塞斯奔驰文化展示中心、BMW汽车文化体验中心、中华艺术宫、上海世博展览馆、上海大歌剧院、世博大舞台、万国体育中心、世界花卉园、温室花园以及中国首座国际顶级赛事标准的永久性马术赛场馆——国际马术中心等生态功能场馆等高能级文化场馆串珠成链。

效果图
据统计,世博地区每年承办的大型文体活动场次超过700场,占据浦东总活动数量的40%,占据全上海总活动数量的18%,每年吸引客流超千万人次!

示意图 ☑️☑️保利世博天悦售楼处电话:400-8377-020☑️☑️
值得一提的是,世博对岸的徐汇滨江将集中建设20多座艺术美术馆,与世博滨江隔江相望。更重要的是,上海市正积极筹划建设首条跨江缆车,该缆车将横跨黄浦江,连接徐汇西岸与世博滨江板块,从而打造一条世界级的顶奢艺术带,展现黄浦江畔的独特魅力与艺术风采。

示意图
目前,世博片区已集聚了新开发银行(NDB)、世界核电运营者协会(英国)上海代表处(WANO)、法国国际商会上海代表处(ICC)等16家国际经济组织,主要集中在经贸规则、资源配置、国际仲裁三大领域,占浦东国际经济组织总数50%以上,为浦东提升国际形象和影响力、增强城市软实力等方面发挥了积极作用。

☑️☑️保利世博天悦售楼处电话:400-8377-020☑️☑️
实景图
保利世博天悦南侧占据上海中心城区唯一一个“有山有水”的宝地:世博文化公园。
世博文化公园占地200公顷,已经是上海中心城区最大的城市公园。
从距离来看,项目直线距离世博文化公园仅约1.5公里,可直接俯瞰整个公园。
从规模来看,世博文化公园的占地面积是伦敦海德皇家花园的1.25倍,是世纪公园的1.42倍,是大宁公园的2.94倍!

实景图
更重要的是,世博文化公园还拥有上海中心城区内唯一“山景”。公园内最大标志性景观“双子山”,由两座高度不等的山体组成,最高峰约48米,也是国内第一座高度超过40米的空腔人工仿自然山林。
☑️☑️保利世博天悦售楼处电话:400-8377-020☑️☑️
实景图
交通方面:周边路网成熟,两桥两隧四地铁(南浦大桥、卢浦大桥、西藏南路及打浦路隧道、6、7、8、19号线);北侧比邻世博洲际酒店、南侧比邻上海地产集团、西侧比邻世博大道、东侧比邻雪野路。项目距离19号线华丰路站仅约300多米,可链接陆家嘴、北外滩等上海其他地标方向,便捷通勤处处快人一步。
商业方面:近享世界级滨江艺术带、上海最大开放式绿地——2平方公里世博文化公园(内含上海大歌剧院、马术中心)、五国金砖银行、央企总部等国际级配套。
☑️☑️保利世博天悦售楼处电话:400-8377-020☑️☑️
周边学校:浦东南路小学、上海市上南中学、上南中学东校邹平校区、上海市南洋中学、上海市第八中学、上海纽洋大学等。
☑️☑️保利世博天悦售楼处电话:400-8377-020☑️☑️
医疗方面:上海市浦东新区浦南医院、上海儿童医学中学、第九人民医院浦东分院、上海交通大学医院附属瑞金医院等。
☑️☑️保利世博天悦售楼处电话:400-8377-020☑️☑️
一线江景现房【保利世博天悦】少量建面约174-500㎡3-5房;总价2500万起!
☑️☑️保利世博天悦售楼处电话:400-8377-020☑️☑️
·建面约251㎡中间套,整体瞰江面高达约14米,独有双层挑高露台,未来业主可以将其打造成为私家空中花园,在繁华都市中独享静谧自然。
☑️☑️保利世博天悦售楼处电话:400-8377-020☑️☑️

☑️☑️保利世博天悦售楼处电话:400-8377-020☑️☑️

☑️☑️保利世博天悦售楼处电话:400-8377-020☑️☑️


☑️☑️保利世博天悦售楼处电话:400-8377-020☑️☑️

☑️☑️保利世博天悦售楼处电话:400-8377-020☑️☑️
☑️☑️保利世博天悦售楼处电话:400-8377-020☑️☑️
☑️☑️保利世博天悦售楼处电话:400-8377-020☑️☑️
☑️☑️保利世博天悦售楼处电话:400-8377-020☑️☑️
☑️☑️保利世博天悦售楼处电话:400-8377-020☑️☑️