西安「首创中心写字楼」
租售中心:029-88866618(营销中心)
租售地址:029-88866618(致电发送详情地址)
在售户型图丨项目详情介绍丨剩余房源丨项目周边配套丨详细在线解答
售楼中心_欢迎来电咨询!预约尊享优惠折扣_匠心钜制恭迎品鉴!
如需了解最新房源信息_在售房源价格_请拨打上方售楼部电话!

【首创中心】5A甲级写字楼+五星级酒店

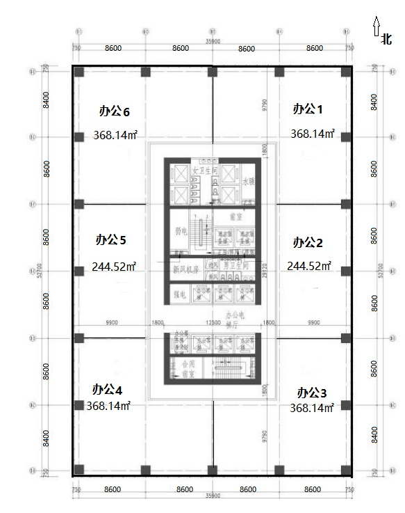
2、项目在售产品 61#整栋(5A甲写+酒店)
酒店配套:
一楼、层高6米,宴会厅入口、前厅、 办公大堂高(10.4m)酒店门厅、 宴会厅(560人)
二楼、行政区高4.4米,行政办 公、物业用房,大型宴会厅;
三楼、层高6米,特色餐厅及厨房; 4小2大多功能会议室配套用房;四楼、层高(7.6-2米管道),休闲 娱乐、健身房、瑜伽馆等功能





【首创中心写字楼】租售中心TEL:029-88866618【售楼中心】
了解最新优惠折扣价格——请拨打租售中心