西安「金辉城君澜河景别院」
售楼处:029-86117888(营销中心)
售楼部地址:029-86117888(致电发送详情地址)
在售户型图丨项目详情介绍丨剩余房源丨项目周边配套丨详细在线解答
【金辉城君澜,让河流为家族作传】
一城丰盛,一世风情;世界在岸,河流入怀,
金辉城君澜,于此天人厚土上,
以河为镜,立家族繁盛之基。
西安北心,泾河之畔
建面约181-434㎡河景联排 不限购
中国 西咸新区 泾河大道

【品牌实力】
25载金辉 质感生活美学引领者
金辉集团,中国房地产开发企业综合实力36强,中国房地产开发企业综合发展10强。深耕全国33座核心城市,臻心服务30余万业主,为约10万户家庭筑造幸福生活。

【产品价值】
西安北心,城市热土之上
在新一轮的发展中,城市提速更迭,续写一个又一个流动的城市史诗。项目位居西咸新区五大组团之一,大西安北跨战略核心区,2021年一季度区域生产总值(GDP)同比增长26.9%,位列西咸新区第一(数据来源:西咸新区泾河新城)劳动密集型+人才密集型等众多优质企业聚焦,大西安腾飞热土。
文旅高地,执掌一城繁华所向
国家地理坐标经纬度起点和基准点--大地原点,中国第一高砖塔--崇文塔;国家4A级景区--约2200亩茯茶镇,恒大童世界、乐华欢乐世界等大型主题乐园环伺
文旅资源加持,繁华所向,丰盈日常生活。


国家一级物业 让生活更有温度
北京金辉锦江物业,国家一级资质,19年发展经验,服务全城30余座核心城市
秉承“温暖,等您回家”服务理念,守护每一位业主居家幸福生活。
托斯卡纳风格 意式浪漫居境
托斯卡纳建筑,源于意大利中西部托斯卡纳地区,世界四大园林风格之一。其建筑风格很高雅浪漫,符合千百年来人居一致审美,尽享异域风情。
(君澜A三层平面图)
君澜B
建面约182㎡ 三室两厅四卫

(君澜B一层平面图)

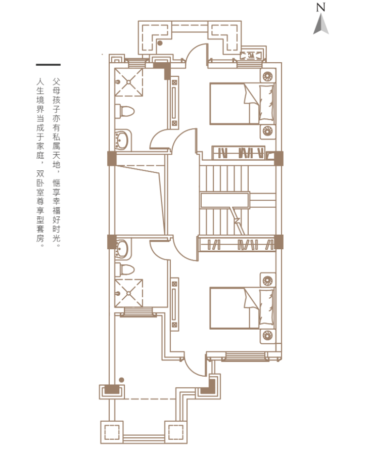
(君澜B二层平面图)

(君澜E负一层平面图)
君澜F
建面约249㎡ 三室三厅五卫

(君澜F一层平面图)

(君澜F二层平面图)

(君澜F三层平面图)

【金辉城君澜河景别院】售楼处TEL:029-86117888【售楼中心】
了解最新优惠折扣价格——请拨打售楼处