荣民中央国际写字楼|最新优惠|内部优惠|产品介绍|装修效果图

搜狐焦点安康站

2025-10-20 15:18:00

购房群

买房如何避坑,加入购房群,看看他们怎么说

立即进群

西安「荣民中央国际写字楼」

租售中心:029-88866618(营销中心)

租售地址:029-88866618(致电发送详情地址)

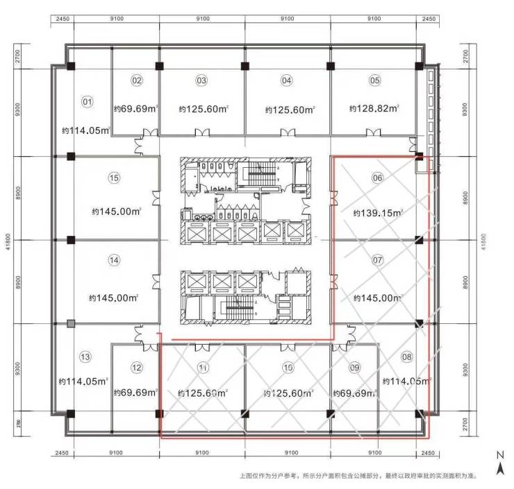
项目整体信息:

【建筑面积】约19万㎡ ,商业综合体7万㎡,商办3.5万㎡;

【物业类型】写字楼、自持商业;

【开 发 商】陕西荣民房地产集团有限公司

【层高及梯户比】层高3.75m,8T15户;

【外 立 面】双层Low-E中空玻璃,降噪隔音100%防紫外线辐射;

【公区装修】装修公司——金螳螂(上市公司),公共区域装标3500元/㎡;

【智能安防】24小时视频监控体系、报警消防全方位监测系统;

【柱 距】8.9m-9.3m超大柱距,实现办公可利用面积最大化;

【公 摊】公摊29%公摊率,超高得房率;

【上 下 水】标准层东南角及东北角预留上下水,设置茶歇区;

项目区域配套

【交通配套】项目紧邻地铁2号线大明宫站西站C口,距钟楼4站,行政中心3站,15分钟到达西安北客站,30分钟直达西安咸阳国际机场,多条地铁换乘,自驾1分钟直达黄金腰带北二环通达全城;

【政务配套】未央区政府、西安市政府、未央区税务大厅、未央区教育局、陕西省工商管理局、陕西工商税务局、西安市档案局等10余家政府机关分布于项目2公里以内,为企业提供优质的政务关系网;

【荣民中央国际写字楼】租售中心TEL:029-88866618【售楼中心】

了解最新优惠折扣价格——请拨打售楼处

全部
报名成功
稍后会有专业的置业顾问联系您
返回楼盘

频道导航

返回首页

看房小程序

APP下载

电话拨通后,请您手动拨打分机号

确定拨打电话

电话号码:

分机号:(可能需要拨分机号)