西安「金辉城君澜河景别院」
售楼处:029-86117888(营销中心)
售楼部地址:029-86117888(致电发送详情地址)
在售户型图丨项目详情介绍丨剩余房源丨项目周边配套丨详细在线解答
售楼中心_欢迎来电咨询!预约尊享优惠折扣_匠心钜制恭迎品鉴!
如需了解最新房源信息_在售房源价格_请拨打上方售楼部电话!
小区情况
建筑类型:小高层,高层
产权年限住宅:70年
容积率住宅:3.34
绿化率:40%
规划户数:16000户
楼层状况:高层、小高层
工程进度:已封顶
物业管理费住宅:2.2元/m²/月
物业公司:北京金辉锦江物业服务有限公司泾河新城分公司
车位数:16085
车位比:1:0.8
金辉产品系
[铭著系]
七大美学构建质感人居
聚合城市生活资源
定位高净值人群的顶级住宅
[优步系]
U+LIFE有机生长共享生态社区
深谙城市菁英所需
定位都会“中心“生活住区

【产品价值】
西安北心,城市热土之上
在新一轮的发展中,城市提速更迭,续写一个又一个流动的城市史诗。项目位居西咸新区五大组团之一,大西安北跨战略核心区,2021年一季度区域生产总值(GDP)同比增长26.9%,位列西咸新区第一(数据来源:西咸新区泾河新城)劳动密集型+人才密集型等众多优质企业聚焦,大西安腾飞热土。
文旅高地,执掌一城繁华所向
国家地理坐标经纬度起点和基准点--大地原点,中国第一高砖塔--崇文塔;国家4A级景区--约2200亩茯茶镇,恒大童世界、乐华欢乐世界等大型主题乐园环伺
文旅资源加持,繁华所向,丰盈日常生活。


一线滨水,直观泾河景致
区域难得河景资源叠院用地,君澜直观泾河一线景致,17公里大河宏阔空间,不止容载万物气度,更容纳宽天阔院所有想象,对水岸资源的占有,天生稀贵。宽境尺度,进阶人居理想
一席宽奢之境,承载从容生活,郎阔厅堂,谈笑风生的会客场;巨幕阳台,生活倾心悦其境;上下三境,和而不扰,志趣场、社交场、休憩场有序分层,生活不被空间所限,尽享舒适高雅领地。
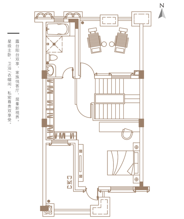
【金辉城君澜河景别院户型品鉴】
君澜A
建面约177㎡ 三室两厅四卫

(君澜A一层平面图)

(君澜A二层平面图)

实景图
【金辉城君澜河景别院】售楼处TEL:029-86117888【售楼中心】
了解最新优惠折扣价格——请拨打售楼处