西安「金辉城君澜河景别院」
售楼处:029-86117888(营销中心)
售楼部地址:029-86117888(致电发送详情地址)
在售户型图丨项目详情介绍丨剩余房源丨项目周边配套丨详细在线解答
售楼中心_欢迎来电咨询!预约尊享优惠折扣_匠心钜制恭迎品鉴!
如需了解最新房源信息_在售房源价格_请拨打上方售楼部电话!
基本信息
楼盘名称:金辉城 在售
楼盘特点:现房 一房一价 客餐厅相连 私密性好 低总价
参考价格:8200元/m²
物业类型:住宅
开发商:陕西枫泓房地产开发有限公司
区域位置:三环外- 西咸新区- 泾河新城
楼盘地址:茶马大道与泾河大道交汇处向西约3公里
最新开盘:2021年12月15日
交房时间:2023年9月25日
售楼处地址展厅地址:文景路与凤城八路向西100米
金辉产品系
[云系]
5C轻奢云生态理想改善人居
[大城系]
荟一城璀璨 纳世界生活
自造城市来来中心
定位“国际大城”醇魅功能区

优质医疗,时刻护佑家人健康
健康是感知美好的必须。项目周边西安交大附属泾河医院(签约落地)等优质医疗资源环绕在侧,时刻护航家人健康,大小麻烦无焦虑。
全生态艺术园林,城现乐活舒居
景观规划以多国艺术元素,打造全生态复合艺术园林,将雅致、自然、现代、时尚的气质融入每一个角落,成就现代都市 生活艺术之旅,全龄乐活社区,竞藏万般美好。


河岸盛境,安放自在闲情
亲水别院,人类向往的诗意居所。四时风景流转,拥有喧闹都市难能可贵的一方净土。绿树、碧水、鲜氧环绕,于此漫步垂钓,仰观云起云落,感天地之悠悠,享岁月之静好。
诗意庭院,独享自在天地
君澜低密院落,敬呈向往诗意栖居,一步一景,四季如画,田园生活自在想象,举步沐晨光,轻嗅草木芬芳,落霞映彩 窗,闻得鸟鸣蛙唱,阖家共乐,理想归依。
(君澜A三层平面图)
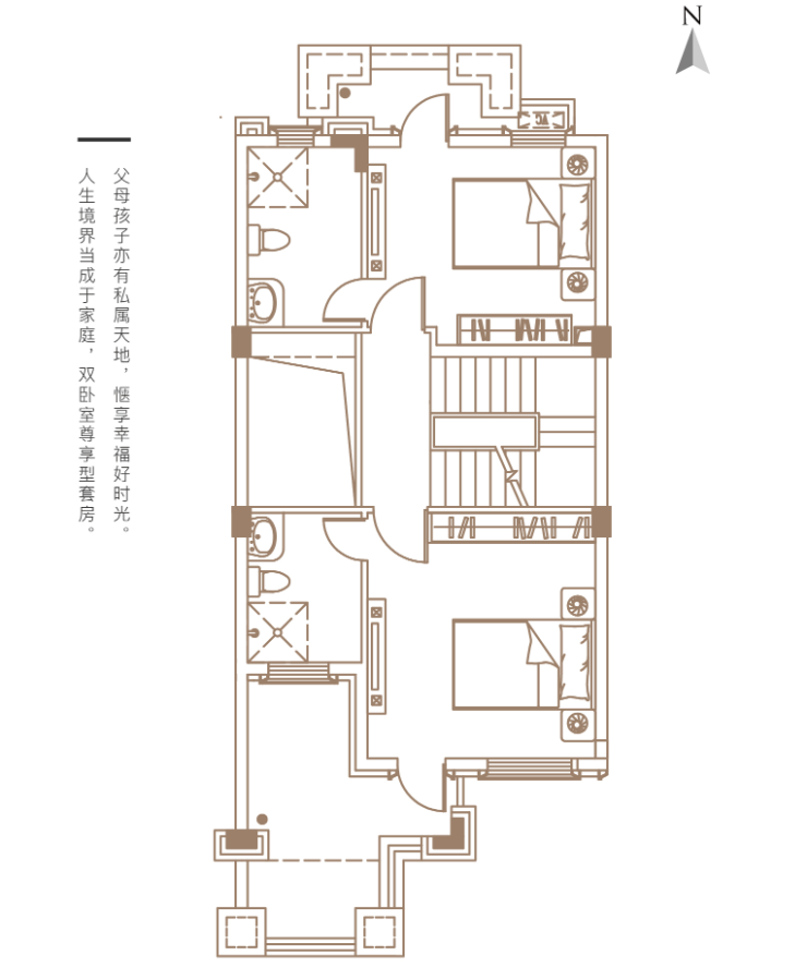
君澜B
建面约182㎡ 三室两厅四卫

(君澜B一层平面图)

(君澜B二层平面图)

(君澜D三层平面图)
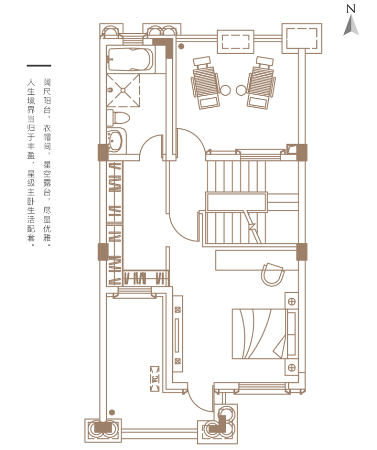
君澜E
建面约216㎡ 三室三厅四卫

(君澜E一层平面图)

(君澜E二层平面图)

(君澜E三层平面图)

【金辉城君澜河景别院】售楼处TEL:029-86117888【售楼中心】
了解最新优惠折扣价格——请拨打售楼处