(营销中心)莱安中心写字楼→租售中心→产品介绍→2号线→配套图

搜狐焦点安康站

2026-01-21 17:48:00

购房群

买房如何避坑,加入购房群,看看他们怎么说

立即进群

西安「莱安中心写字楼」

服务热线:029-88866618(咨询中心)

项目地址:029-88866618(致电发送详情地址)

莱安中心T5-1203号 403.87㎡

【项目名称】:莱安中心&万象天地

【项目地址】:西安市曲江CCBD核心区位

【项目亮点】

1. 曲江新区门户位置,长安路中轴线,曲江,城南性价比最高的写字楼

2. 从项目出发2分钟至三环,20分钟至钟楼,40分钟至机场

3. 地铁2号线,8号线(会展中心站)上盖物业,50余条公交线路

4. 12万方商业配套,美食城,购物中心,精装公寓,健身中心,高端公寓一应俱全

5. B2、B3停车场,停车位超2000+,保证客户停车无忧

6. 定制/精装灵活交付,企业省心省时省成本

【写字楼T5概况】

单层体量:1800㎡

楼层:共18层

层高:4.2米

停车:3元/小时

电费:约0.81元/度(浮动电价)

物业费:21元/㎡/月(含税6%)

交付标准:遗留装修/定制装修

签约年限:2年起(2年内租金不递增)

付款方式:押2付6

T5大堂-五星装标 300㎡建面,近12米挑高

电梯厅 8部国际一线品牌电梯,1.6吨载客量

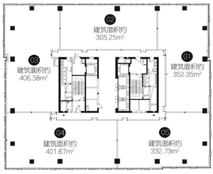
户型平面图 户内中央无柱设计,高实用面积,双层low-e中空玻璃

【莱安中心写字楼】服务热线TEL:029-88866618【咨询中心】

了解最新优惠折扣价格——请拨打服务热线

全部
报名成功
稍后会有专业的置业顾问联系您
返回楼盘

频道导航

返回首页

看房小程序

APP下载

电话拨通后,请您手动拨打分机号

确定拨打电话

电话号码:

分机号:(可能需要拨分机号)