一亿中流·启迪科技园/实景图/二至三环/地址-地铁

搜狐焦点安康站

2025-12-17 20:00:00

购房群

买房如何避坑,加入购房群,看看他们怎么说

立即进群

西安「一亿中流·启迪科技园」

租售中心:029-88866618(营销中心)

租售地址:029-88866618(致电发送详情地址)

如需了解最新房源信息_在售房源价格_请拨打上方售楼部电话!

一亿中流·启迪科技园

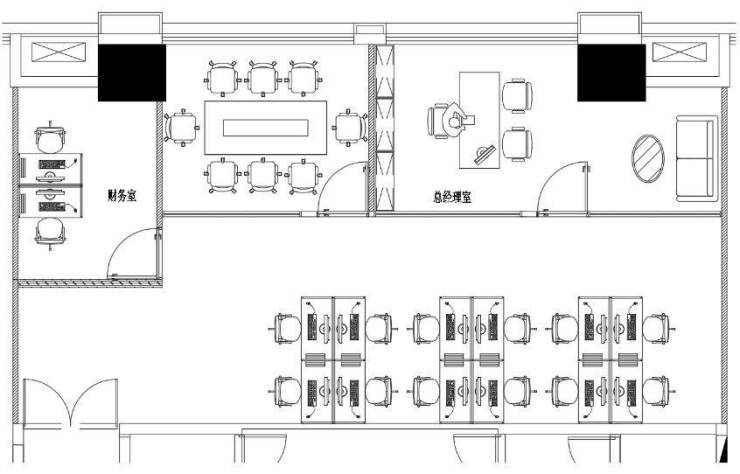
【房号】K座503

【面积】194㎡

【租金】70元/㎡/月(含税)

【物业费】13.5元/㎡/月(含税)

【朝向】北

【格局】3办公室+12工位

【交付标准】精装带家具

【签约年限】2年起签

【付款方式】押二付六

【车位】包年500元/月,临停3元/小时

【电费】0.75元/度

【空调】中央空调,购电自控

【电梯】6部日立高速电梯

【共享配套】休闲区、水吧、会议室 、茶室、多功能厅等共享区域

【地址】西安市高新区科技二路67号

【一亿中流·启迪科技园】售楼处TEL:029-88866618【售楼中心】

了解最新优惠折扣价格——请拨打售楼处

全部
报名成功
稍后会有专业的置业顾问联系您
返回楼盘

频道导航

返回首页

看房小程序

APP下载

电话拨通后,请您手动拨打分机号

确定拨打电话

电话号码:

分机号:(可能需要拨分机号)