西安「金辉城君澜河景别院」
售楼处:029-86117888(营销中心)
售楼部地址:029-86117888(致电发送详情地址)
在售户型图丨项目详情介绍丨剩余房源丨项目周边配套丨详细在线解答
小区情况
建筑类型:小高层,高层
产权年限住宅:70年
容积率住宅:3.34
绿化率:40%
规划户数:16000户
楼层状况:高层、小高层
工程进度:已封顶
物业管理费住宅:2.2元/m²/月
物业公司:北京金辉锦江物业服务有限公司泾河新城分公司
车位数:16085
车位比:1:0.8
金辉产品系
[铭著系]
七大美学构建质感人居
聚合城市生活资源
定位高净值人群的顶级住宅
[优步系]
U+LIFE有机生长共享生态社区
深谙城市菁英所需
定位都会“中心“生活住区

优质医疗,时刻护佑家人健康
健康是感知美好的必须。项目周边西安交大附属泾河医院(签约落地)等优质医疗资源环绕在侧,时刻护航家人健康,大小麻烦无焦虑。
全生态艺术园林,城现乐活舒居
景观规划以多国艺术元素,打造全生态复合艺术园林,将雅致、自然、现代、时尚的气质融入每一个角落,成就现代都市 生活艺术之旅,全龄乐活社区,竞藏万般美好。


河岸盛境,安放自在闲情
亲水别院,人类向往的诗意居所。四时风景流转,拥有喧闹都市难能可贵的一方净土。绿树、碧水、鲜氧环绕,于此漫步垂钓,仰观云起云落,感天地之悠悠,享岁月之静好。
诗意庭院,独享自在天地
君澜低密院落,敬呈向往诗意栖居,一步一景,四季如画,田园生活自在想象,举步沐晨光,轻嗅草木芬芳,落霞映彩 窗,闻得鸟鸣蛙唱,阖家共乐,理想归依。
(君澜B三层平面图)
君澜C
建面约189㎡ 三室两厅四卫

(君澜C一层平面图)

(君澜C二层平面图)

(君澜D三层平面图)
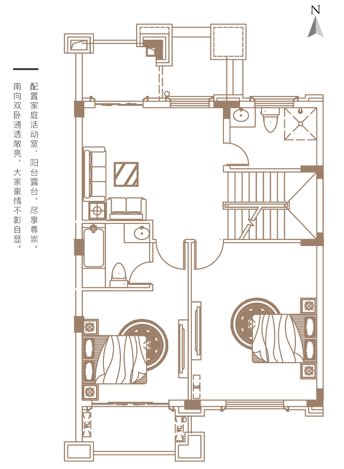
君澜E
建面约216㎡ 三室三厅四卫

(君澜E一层平面图)

(君澜E二层平面图)

(君澜E三层平面图)

【金辉城君澜河景别院】售楼处TEL:029-86117888【售楼中心】
了解最新优惠折扣价格——请拨打售楼处