西安「莱安中心写字楼」
租售中心:029-88866618(咨询中心)
租售中心地址:029-88866618(致电发送详情地址)
在售户型图丨项目详情介绍丨剩余房源丨项目周边配套丨详细在线解答
莱安中心T5-1203号 403.87㎡
【项目名称】:莱安中心&万象天地
【项目地址】:西安市曲江CCBD核心区位
【项目亮点】
1. 曲江新区门户位置,长安路中轴线,曲江,城南性价比最高的写字楼
2. 从项目出发2分钟至三环,20分钟至钟楼,40分钟至机场
3. 地铁2号线,8号线(会展中心站)上盖物业,50余条公交线路
4. 12万方商业配套,美食城,购物中心,精装公寓,健身中心,高端公寓一应俱全
5. B2、B3停车场,停车位超2000+,保证客户停车无忧
6. 定制/精装灵活交付,企业省心省时省成本
【写字楼T5概况】
单层体量:1800㎡
楼层:共18层
层高:4.2米
停车:3元/小时
电费:约0.81元/度(浮动电价)
物业费:21元/㎡/月(含税6%)
交付标准:遗留装修/定制装修
签约年限:2年起(2年内租金不递增)
付款方式:押2付6
T5大堂-五星装标 300㎡建面,近12米挑高

电梯厅 8部国际一线品牌电梯,1.6吨载客量

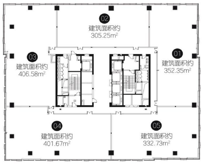
户型平面图 户内中央无柱设计,高实用面积,双层low-e中空玻璃

【户型概括】
面积:403.87㎡
装修:遗留装修
格局:6+1
层高:4.2米
租金:110元/㎡/月
物业费:21元/㎡/月(包含物业服务费,空调费,市政暖气费,垃圾费,电梯费,公共区域水电费等)
空调:中央空调,周一至周六,8:30-18:30开放,市政热源。


【莱安中心写字楼】租售中心TEL:029-88866618【租售中心】
了解最新优惠折扣价格——请拨打服务热线