开发商:西安汉墨置业有限公司
地 址:高新五路4号5A甲级写字楼
交 通:地铁3号线,延平门地铁口步行8分钟,地铁8号线科技二路站(预计2024年底开通)
餐 饮:员工食堂、T11、大都荟等核心商圈
绿色健康:鲁班奖、美国LEED金级认证
总建面:5.2万㎡
总层数:地上24层,地下4层
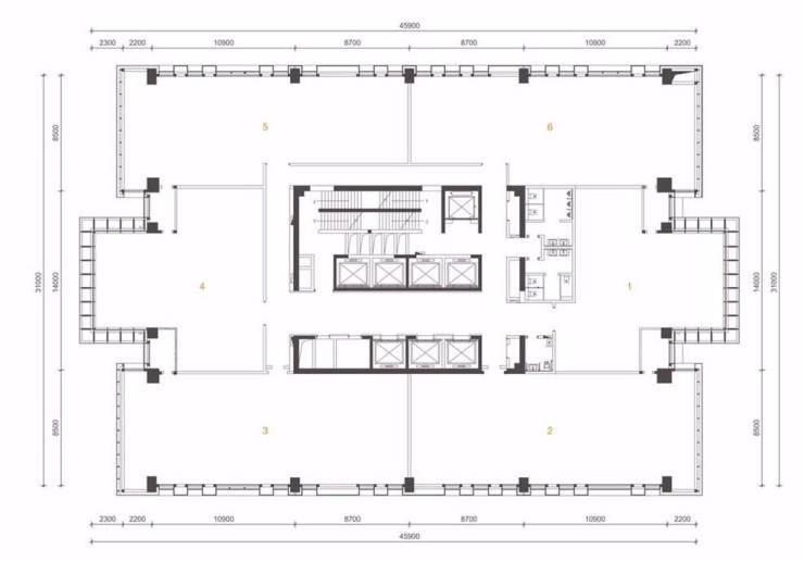
面积区间:201平米-1507平米
层 高:4.1m净高3m
格 局:方正户型无柱空间高利用率
特 色:每层4个露天阳台可加装空调
车 位:地下4层全平层,配比充足
楼内公共配套:淋浴间、会议室、阅览区、母婴室、羽毛球场、乒乓球场、篮球场、咖啡厅、员工食堂
电 梯:德国蒂森克虏伯电梯 低区3部,高区4部,转换梯2部,消防电梯1部
交付标准:天花、架高地板、墙面乳胶漆+壁纸、窗帘
物业费:24元/平米/月(含夏天周一至周六空调,冬天周一至周五空调)
电 费:供电局每月公布电价+0.04元/度
水 费:6.26元/吨
车位租赁费:600元/个,一次性缴纳半年以上450元/月
外观图:
大堂及公共区域:
健身场所:
员工餐厅:
二楼休息区:
共享会议室(小):
共享会议室(大):
户型图:

交付标准:(不含家具)