西安「金辉城君澜河景别院」
售楼处:029-86117888(营销中心)
售楼部地址:029-86117888(致电发送详情地址)
小区情况
建筑类型:小高层,高层
产权年限住宅:70年
容积率住宅:3.34
绿化率:40%
规划户数:16000户
楼层状况:高层、小高层
工程进度:已封顶
物业管理费住宅:2.2元/m²/月
物业公司:北京金辉锦江物业服务有限公司泾河新城分公司
车位数:16085
车位比:1:0.8

16载19盘深耕西安 耀领都会版图
2006年城拓西安,至今匠筑19盘,始终以质感产品辉耀城市生活梦想。


优质医疗,时刻护佑家人健康
健康是感知美好的必须。项目周边西安交大附属泾河医院(签约落地)等优质医疗资源环绕在侧,时刻护航家人健康,大小麻烦无焦虑。
全生态艺术园林,城现乐活舒居
景观规划以多国艺术元素,打造全生态复合艺术园林,将雅致、自然、现代、时尚的气质融入每一个角落,成就现代都市 生活艺术之旅,全龄乐活社区,竞藏万般美好。


人生大境,河院犒赏生活
河流为幕,家族始兴。上有高堂颐养天年,下有儿女承欢膝下,人生大境成,以一河院犒赏自己,是对自我的奖励,也是对家族成员的最好慰藉。在泾河岸畔,得以众所仰望的河院大境,为当代中国家族立基。
托斯卡纳风格 意式浪漫居境
托斯卡纳建筑,源于意大利中西部托斯卡纳地区,世界四大园林风格之一。其建筑风格很高雅浪漫,符合千百年来人居一致审美,尽享异域风情。
【金辉城君澜河景别院户型品鉴】
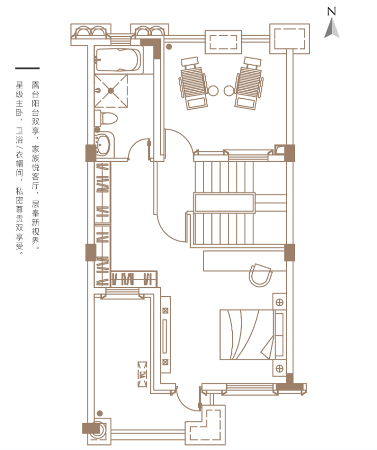
君澜A
建面约177㎡ 三室两厅四卫

(君澜A一层平面图)

(君澜A二层平面图)

实景图
【金辉城君澜河景别院】售楼处TEL:029-86117888【售楼中心】
了解最新优惠折扣价格——请拨打售楼处