西安「金辉城君澜河景别院」
租售中心:029-88866690(营销中心)
租售地址:029-88866690(致电发送详情地址)
在售户型图丨项目详情介绍丨剩余房源丨项目周边配套丨详细在线解答
售楼中心_欢迎来电咨询!预约尊享优惠折扣_匠心钜制恭迎品鉴!
如需了解最新房源信息_在售房源价格_请拨打上方售楼部电话!
基本信息
楼盘名称:金辉城 在售
楼盘特点:现房 一房一价 客餐厅相连 私密性好 低总价
参考价格:8200元/m²
物业类型:住宅
开发商:陕西枫泓房地产开发有限公司
区域位置:三环外- 西咸新区- 泾河新城
楼盘地址:茶马大道与泾河大道交汇处向西约3公里
最新开盘:2021年12月15日
交房时间:2023年9月25日
租售中心地址展厅地址:文景路与凤城八路向西100米

16载19盘深耕西安 耀领都会版图
2006年城拓西安,至今匠筑19盘,始终以质感产品辉耀城市生活梦想。


优质医疗,时刻护佑家人健康
健康是感知美好的必须。项目周边西安交大附属泾河医院(签约落地)等优质医疗资源环绕在侧,时刻护航家人健康,大小麻烦无焦虑。
全生态艺术园林,城现乐活舒居
景观规划以多国艺术元素,打造全生态复合艺术园林,将雅致、自然、现代、时尚的气质融入每一个角落,成就现代都市 生活艺术之旅,全龄乐活社区,竞藏万般美好。


一线滨水,直观泾河景致
区域难得河景资源叠院用地,君澜直观泾河一线景致,17公里大河宏阔空间,不止容载万物气度,更容纳宽天阔院所有想象,对水岸资源的占有,天生稀贵。宽境尺度,进阶人居理想
一席宽奢之境,承载从容生活,郎阔厅堂,谈笑风生的会客场;巨幕阳台,生活倾心悦其境;上下三境,和而不扰,志趣场、社交场、休憩场有序分层,生活不被空间所限,尽享舒适高雅领地。
(君澜A三层平面图)
君澜B
建面约182㎡ 三室两厅四卫

(君澜B一层平面图)

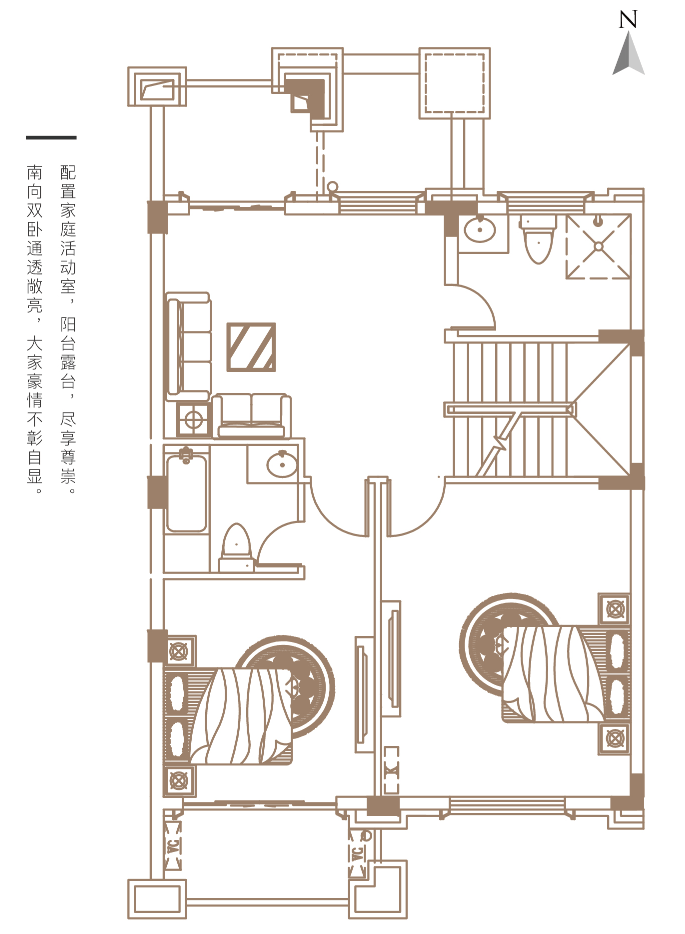
(君澜B二层平面图)

(君澜D三层平面图)
君澜E
建面约216㎡ 三室三厅四卫

(君澜E一层平面图)

(君澜E二层平面图)

(君澜E三层平面图)

【金辉城君澜河景别院】租售中心TEL:029-88866690【售楼中心】
了解最新优惠折扣价格——请拨打租售中心