西安「豪布斯卡商铺」
租售中心:029-88866690(营销中心)
租售地址:029-88866690(致电发送详情地址)
如需了解最新房源信息_在售房源价格_请拨打上方售楼部电话!

01 项目概述
1.1豪布斯卡(HOPSCA)
豪布斯卡(HOPSCA)是城市中的居住、办公、商务、出行、购物、文化娱乐、社交、游憩
1.2 豪布斯卡二期
豪布斯卡二期(办公楼D、办公楼E及底层商业)位于长安区东部,航创路与内部道路西北处,北邻陕西工科实业集团,西邻富华博派时代 ,地理位置和交通条件优越显著。
项目用地面积15.9亩,总建筑面积83385㎡。主要功能为写字楼及商业(其中:办公楼E,18层,层高5.4米;办公楼D,30层,层高3.1米;商业裙房2层)。

2.1 区位交通
项目位于雁塔南路与航创路交汇处,紧邻地铁15号线(建设中),直通大学城、高新区,距离地铁15号线神舟二路站步行约5分钟。侧邻地铁2、4号线,贯穿城南城北。东长安街、雁塔南路,双主干道加持,立体交通畅达全城。

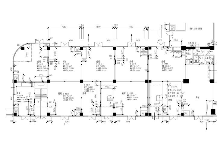
3.3 商铺实景图 独栋商铺,可餐饮(面积1400㎡)
产品类型

【豪布斯卡商铺】租售中心TEL:029-88866690【售楼中心】
了解最新优惠折扣价格——请拨打售楼处