西安「金辉城君澜河景别院」
售楼处:029-86117888(营销中心)
售楼部地址:029-86117888(致电发送详情地址)
基本信息
楼盘名称:金辉城 在售
楼盘特点:现房 一房一价 客餐厅相连 私密性好 低总价
参考价格:8200元/m²
物业类型:住宅
开发商:陕西枫泓房地产开发有限公司
区域位置:三环外- 西咸新区- 泾河新城
楼盘地址:茶马大道与泾河大道交汇处向西约3公里
最新开盘:2021年12月15日
交房时间:2023年9月25日
售楼处地址展厅地址:文景路与凤城八路向西100米

【品牌实力】
25载金辉 质感生活美学引领者
金辉集团,中国房地产开发企业综合实力36强,中国房地产开发企业综合发展10强。深耕全国33座核心城市,臻心服务30余万业主,为约10万户家庭筑造幸福生活。

优质医疗,时刻护佑家人健康
健康是感知美好的必须。项目周边西安交大附属泾河医院(签约落地)等优质医疗资源环绕在侧,时刻护航家人健康,大小麻烦无焦虑。
全生态艺术园林,城现乐活舒居
景观规划以多国艺术元素,打造全生态复合艺术园林,将雅致、自然、现代、时尚的气质融入每一个角落,成就现代都市 生活艺术之旅,全龄乐活社区,竞藏万般美好。


人生大境,河院犒赏生活
河流为幕,家族始兴。上有高堂颐养天年,下有儿女承欢膝下,人生大境成,以一河院犒赏自己,是对自我的奖励,也是对家族成员的最好慰藉。在泾河岸畔,得以众所仰望的河院大境,为当代中国家族立基。
托斯卡纳风格 意式浪漫居境
托斯卡纳建筑,源于意大利中西部托斯卡纳地区,世界四大园林风格之一。其建筑风格很高雅浪漫,符合千百年来人居一致审美,尽享异域风情。
(君澜A三层平面图)
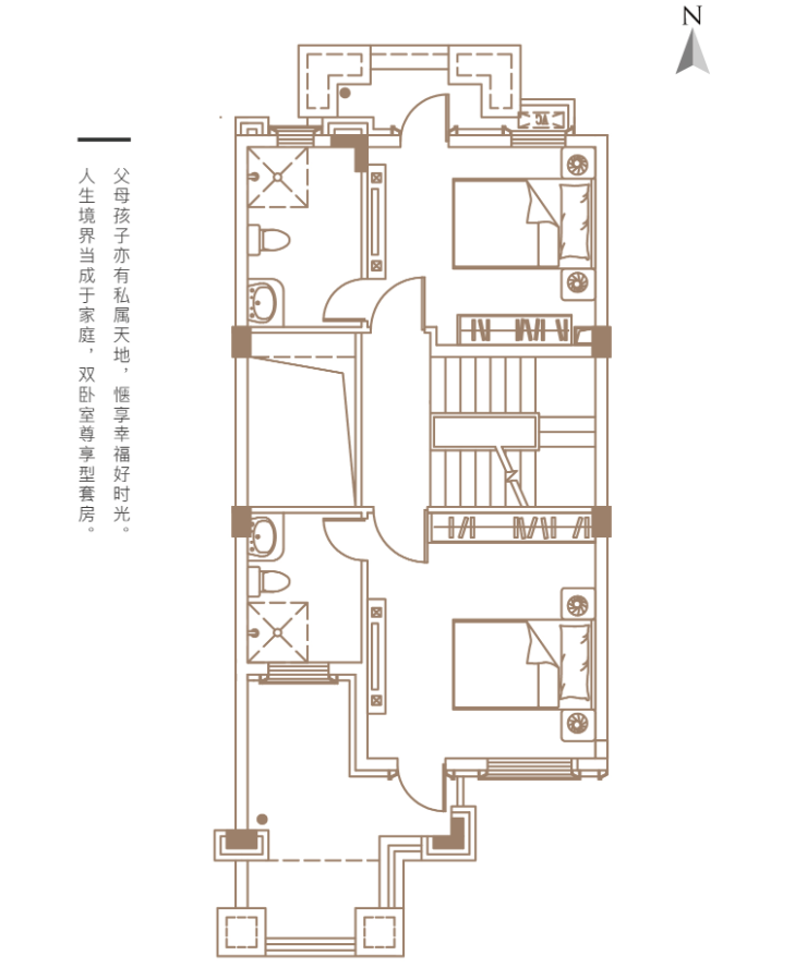
君澜B
建面约182㎡ 三室两厅四卫

(君澜B一层平面图)

(君澜B二层平面图)

实景图
【金辉城君澜河景别院】售楼处TEL:029-86117888【售楼中心】
了解最新优惠折扣价格——请拨打售楼处