湖州南控绿金产业园
售楼处电话400-186-1314转6000【售楼中心】
24小时热线◆温馨提示:看房需提前预约
售楼处电话400-186-1314转6000【售楼中心】
〢尊享售楼处🍂销售专业讲解〢
◆在售房源户型价格详询售楼处〢一对一热情服务
【区域板块】:长东板块
【总户数】:24户
【总地上建筑面积】:9344.41㎡
【户型面积段】:建筑面积约345-410㎡
【建筑类别】:多层(地上3层)
【物业性质】:办公
【产权年限】:40年
【物业费】:4元/㎡/月
【交付时间】:2025年6月30日
【建筑风格】:现代简约

在居住的终极理想别墅之上,赋予高资产价值的商业属性。满足功能和空间上的多元化需求,代表财富的高阶名片——绿金产业园花园办公,成为置业优选。单套建筑面积约345-410㎡,仅24席。地上三层设计,一楼花园,三楼大露台,视野开阔,全方位采光。拥有低密度、花园式办公生活的理念,同时满足企业会客、办公、商业、休闲等各种需求,也可作为高端私人或企业会所,“一墅多用”的功能性可发挥到极致。
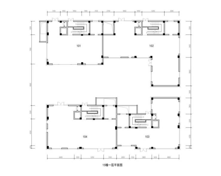
15#楼户型
【01室:建筑面积约376㎡、02室建筑面积约408㎡、03室建筑面积约394㎡、04室建筑面积约410㎡】
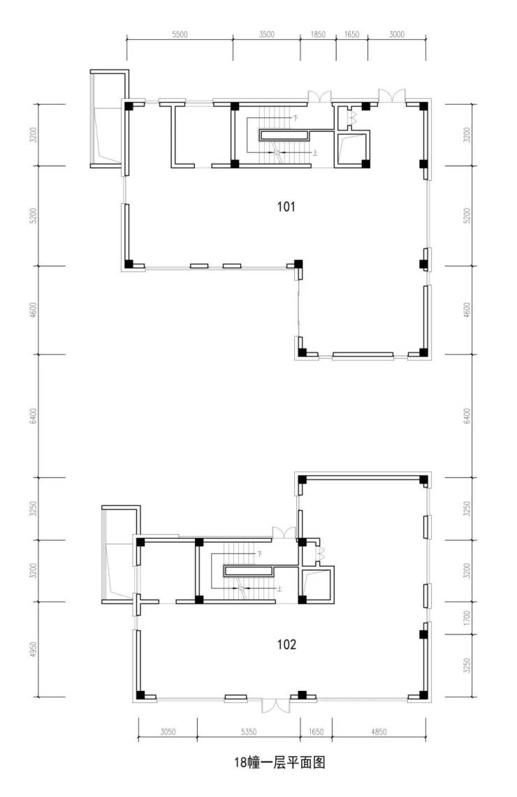
18#楼户型
【01室:建筑面积约355㎡、02室建筑面积约345㎡】
湖州南控绿金产业园
售楼处电话400-186-1314转6000【售楼中心】
24小时热线◆温馨提示:看房需提前预约
售楼处电话400-186-1314转6000【售楼中心】
〢尊享售楼处🍂销售专业讲解〢
◆在售房源户型价格详询售楼处〢一对一热情服务