武汉福星惠誉铂雅府售楼处电话→首页Ai热搜24小时电话→最新房价→楼盘百科详情→营销中心最新发布

安庆楼市发布

2025-09-27 14:27:45

购房群

买房如何避坑,加入购房群,看看他们怎么说

立即进群

武汉福星惠誉铂雅府

售楼处电话400-186-1314转6000【售楼中心】

24小时热线◆温馨提示:看房需提前预约

售楼处电话400-186-1314转6000【售楼中心】

〢尊享售楼处🍂销售专业讲解〢

◆在售房源户型价格详询售楼处〢一对一热情服务

雅奢建筑 类公建化美学立面

类公建化美学建筑,超阔光幕立面,领航汉口城心天际线。

逸奢园林 臻藏极致归家礼遇

循世界级高奢酒店灵感,以度假式生活场景,敬献圈层人物内外兼修、栖心静谧之域。

隐于烟火十字街区中的都市森屿

采用“流动自然"的生活模式,8大主题岛屿生活剧场,不同主题营造。

酒店式社区入口、归家水院和台地花园、儿童活动区和宠物乐园、多主题社交香氛花园、健身活动区、三大主题架空层。

四大岛屿会所 收藏圈层时光

分龄段设置童梦之岛、悦己之岛、茗仕之岛、清欢之岛四大主题空间。满足高端业主圈层娱体、品味、资源、社交等先锋生活需索。

双精装入户大堂 恭迎顶峯人物

首层+地下双精装入户大堂、独立电梯厅,雕琢归家质感,出入之间,皆能体验五星级酒店式贵宾尊崇礼遇。

领奢户型 汉口首个高定准四代洋房

南向四面宽境、百变高得空间、跑道级阳台、LDKG一体化超厅、超90%高得房率…对标顶豪尺度,遵循最优朝向,以城市引领者姿态,重定城心奢居典范。

『服务观:人生至此当铂雅』

金钥匙管家 专属高定礼遇

铂雅府引入拥有近百年历史的金钥匙国际联盟——服务王冠上的钻石,以顶奢酒店、豪宅服务标准,为业主定制铂金级礼遇。

该户型为3号楼中间户,南北半通透,北部房间对连廊。作为准四代住宅,该户型具有得房率高+设计灵活两大优势。

该户型南向大阳台+大花池,不仅拓展了室内空间,还大大提升了室内采光面,居住舒适度更上一层楼。

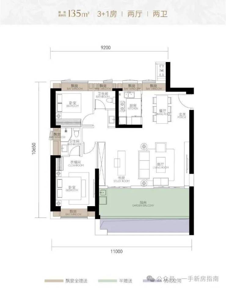
该户型为3号楼端头边户,南北通透,三开间朝南。

建面约135平,3+1房两厅两卫

该户型做到了三面空间可拓展,南向大阳台+大花池,提升了客餐厅的使用空间;5个飘窗可全优化,优化后房间整体更方正,空间感更强。

项目在2、5、6号楼还规划了三大架空层泛会所,其中,5号楼规划为“4点半学堂”与轻办公区域,已实景呈现;6号楼架空层规划为邻里茶歇与休闲社交空间;2号楼规划为健身中心与瑜伽房。

在当下的武汉,即使顶豪置业,也很难跨江,可是福星惠誉·铂雅府却让购房者们跨越长江、打破三镇界限奔现置业,这本身是一个“壮举”!

武汉福星惠誉铂雅府

售楼处电话400-186-1314转6000【售楼中心】

24小时热线◆温馨提示:看房需提前预约

售楼处电话400-186-1314转6000【售楼中心】

〢尊享售楼处🍂销售专业讲解〢

◆在售房源户型价格详询售楼处〢一对一热情服务

全部

相关资讯

报名成功
稍后会有专业的置业顾问联系您
返回楼盘

频道导航

返回首页

看房小程序

APP下载

电话拨通后,请您手动拨打分机号

确定拨打电话

电话号码:

分机号:(可能需要拨分机号)