绍兴禹州印樾府售楼处电话→绍兴禹州印樾府营销中心→售楼处首页网站→线上售楼处接待中心-户型价格配套

安庆楼市发布

2025-09-05 09:05:27

购房群

买房如何避坑,加入购房群,看看他们怎么说

立即进群

绍兴禹州印樾府

售楼处电话400-186-1314转6000【售楼中心】

24小时热线◆温馨提示:看房需提前预约

售楼处电话400-186-1314转6000【售楼中心】

〢尊享售楼处🍂销售专业讲解〢

◆在售房源户型价格详询售楼处〢一对一热情服务

【地块用途】城镇住宅用地

【土拍编号】柯桥城区G-08地块

【基本信息】总用地面积61767㎡,容积率1.92-2.07,计容建筑面积127857.69㎡

2

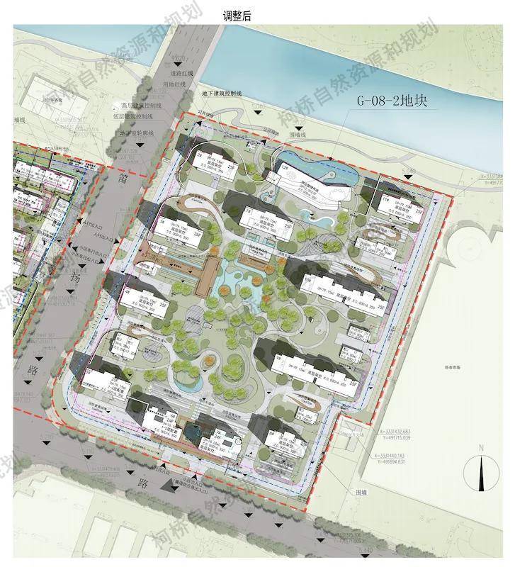
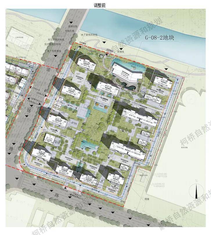
控规修改

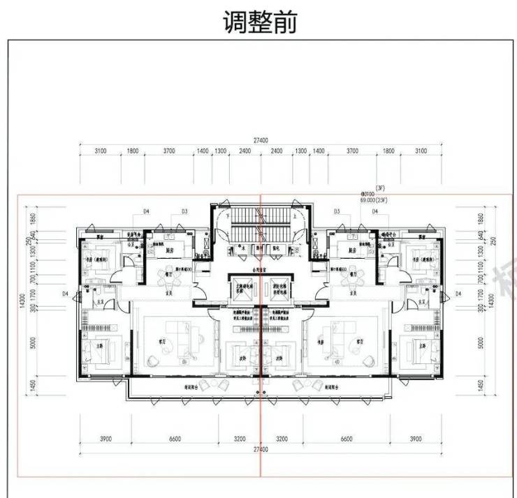
本次调整内容如下:

1、6#、7#楼户型由一梯两户调整为一梯三户;位于6#楼一层、二层的居家养老服务用房以及6#、7#楼所在地下室区域作相应调整。调整后,户数由608户调整至653户,机动车位由1219个调整至1213个,非机动车位由1059个调整至1192个。

2、8#、9#、10#楼的165方户型内部分隔作调整。

3、场外景观方案局部调整。

具体细节为:

6#、7#号楼三层至二十四层住宅调整:大平层变小户型

8#、9#、10#号楼165方户型调整:空间分割调整

景观调整:

绍兴禹州印樾府

售楼处电话400-186-1314转6000【售楼中心】

线上预约——尊享优价——售楼处中心——线上唯一售楼处

售楼处电话400-186-1314转6000【售楼中心】

专业的顾问 ——1对1的服务讲解——让您至享而归

售楼处电话400-186-1314转6000【售楼中心】

免责声明::本人如无意中侵犯了某方知识产权,告诉即删

告之即删

全部
报名成功
稍后会有专业的置业顾问联系您
返回楼盘

频道导航

返回首页

看房小程序

APP下载

电话拨通后,请您手动拨打分机号

确定拨打电话

电话号码:

分机号:(可能需要拨分机号)