
会展湾·南岸即将首发的国际甲级商务写字楼,从建设初就备受企业精英的关注。写字楼位于会展新城核心地段,总建筑面积约为7万㎡,往西是大空港世界级枢纽中心,往北是世界级会展中心,可以说是真正的“与世界为邻”,未来价值可期。
【会展湾南岸广场】
深圳国际会展中心旁,整栋写字楼出售
独栋产品:1800-8000㎡
散售面积:100-2580㎡
销售价格:散售2.28万㎡起,整栋3.4万/㎡起
整栋出售:有冠名权
交付时间:现楼交付
会展总部办公,全球贸易平台
自成一城,会展新城门户核心
现楼全球发售,即买即用即收租
100㎡-2580㎡自由组合商务空间
1800㎡-8000㎡低密独栋总部
会展湾·南岸,左会展右枢纽,真正核心区腹地。
会展湾·南岸享区域发展政策利好与会展经济效应,占粤港澳大湾区优势区位,揽一线纯水岸资源,未来国际会展活力的始发地,悦享自然,对接世界,展望更高的未来。
◎效果图
会展湾·南岸位处深圳市重点规划片区会展新城,华侨城&招商蛇口在会展新城合力打造总建面约300万㎡会展主题综合体,稳踞全球最大新会展中心首席,是千亿会展经济圈首发之作。
△
量身定制的稀缺总部独栋
湾区封面的双首排地标办公
全维配套生活圈,构筑城市未来的核心领域
低密度组团:T4A栋,现楼整栋发售
T4A栋—享有最佳视野的总部独栋建筑
建筑面积约为:2224.28平方米
一层面积为417.67平方米
二层面积为823.29平方米
三层面积为983.32平方米
总售价约为:1.2亿元



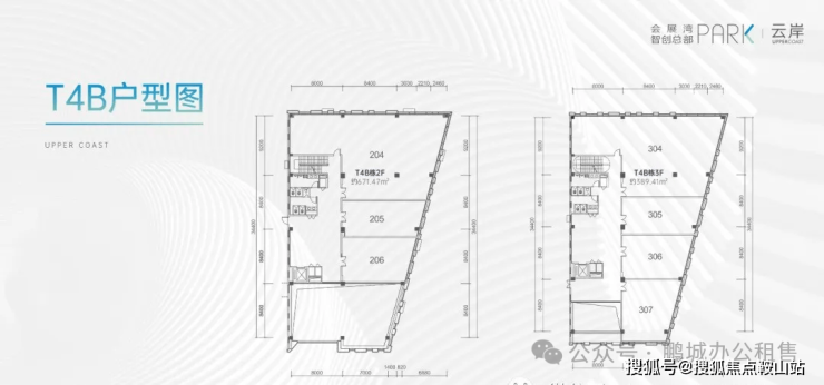
T4B栋—首个映入眼帘的总部独立建筑
建筑面积约为2073.03平方米
首层面积为557.52平方米
二层面积为673.76平方米
三层面积为841.75平方米
总售价约为1.25亿元



T5栋—位于会展南大门首排,具备封面级的昭示性
建筑面积约为:2321.52平方米
一层面积为:757.31平方米
二层面积为:854.39平方米
三层面积为:709.82平方米
总售价约为:1.32亿元



T7B栋—宁静之选,总部专属独栋
建筑面积约1840.59平方米
首层空间,509.58平方米
次层空间,574.4平方米
顶层空间,756.61平方米
总价值约1.05亿元



T9A栋—效益最大化之总部专属独栋建筑
建筑面积约1974.3平方米
首层空间为520.05平方米
二层空间为651.08平方米
三层空间为803.17平方米
总价值约为1.04亿元
